查看完整案例


收藏

下载
空间 光影 自然 人文 尺度
FUZHOU | 2020
BCLZ DESIGN
-----
有限的空间无限想象
Limited space, infinite imagination
项目位置 | Project area:福建 福州
项目面积 | Project area :50
㎡
设计时间 | Design time :2020.07
设计机构
| Studio
: 北城梁筑设计
项目类型 |
Property
: 私宅
【草图模拟空间】
▼
▲
客餐厅部分
▲
卧室部分
▲
餐厅部分
▲
卧室部分
【
效果图部分
】
▼
客厅
部分
采用地台与楼梯踏步结合的方式
取代了传统的沙发形式,形成多用的功能
The living room part adopts the way of combining terrace and stair step
It has replaced the traditional sofa form, forming a multi-purpose function
餐厨一体式设计解放了厨房空间,增加空间延展性.
地面统一木地板色调协调,干净利落
Kitchen integrated design liberates the kitchen space and increases the space extensibility
The ground is unified, the tone of wood floor is harmonious, clean and tidy
二楼空间部分做了两个区域用来作为卧室,为了使空间不会压抑且不通透
楼梯位置还是做挑空设计,靠窗的卧室有抬高了一部分
作为榻榻米来使用,保证卧室的高度
The two bedrooms are not used as a space for two floors
The position of the stairs is still designed to be empty, and the bedroom by the window has dropped a part
Stair position or do pick empty design, the bedroom by the window has dropped a part as tatami to use, ensure the height of the bedroom
楼梯部分采用美岩板,一层贯穿到二楼部分
极大地增强空间感且在使用过程中不易磨损,维护起来方便
三联动玻璃移门解决了空间私密性问题,空间光线也得到满足
The staircase is decorated with cement panel, and the first floor runs
through the second floor
It greatly enhances the sense of space and is not easy to wear and tear in the process of use, and is convenient to maintain
The triple moving glass sliding door solves the problem of space privacy, and the space light is also satisfied
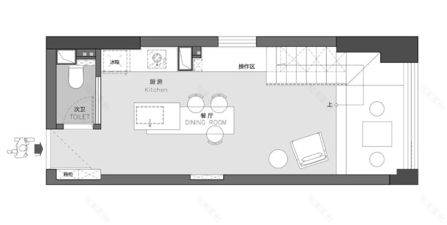
【
方案布置图
】
▼
|关于北城梁筑|
Abou BCLZ DESIGN
由几位青年设计师共同创立,主要服务于精品住宅领域,致力于雕琢每件作品特有的鲜明特质。服务内容涵盖室内设计、施工、软装陈设等领域,打造全案落地完美效果。
“北城梁筑”四字蕴意为学习时期学习到梁思成先生为保护北京城的古建筑故事产生的理想。多年后自己创业依然对此产生情愫,希望自己能对设计保持初心,依然对理想保持热情,这份对家国事业,爱国情怀,能不断提醒自己对事业的初衷。
|主创团队|
OUR TEAM
客服
消息
收藏
下载
最近













