查看完整案例


收藏

下载
都会生活在它忙碌与繁华的背后,也常常给人带来一种“透不过气”的感觉,人们难免会厌倦城市中那些喧嚣和浮华,向往尘世外的山居生活,渴望亲近自然,渴望自由自在。
区位
月印万川位于中部杜坝区,距离景区入口10公里,距市中心约5公里,北侧为规划中的山林海公园,西侧紧邻山体生态带,是武夷山度假慢生活的重点板块。
将在地自然文化优势转化为设计的思想源泉,以武夷山下的度假小院和完整的配套空间服务心灵,礼遇每一个依山卷水的人们。
月印万川在场所营造的过程中,深挖武夷丰厚的内涵底蕴,将项目整体与武夷山水融为一体,自然而然地成为武夷的一部分。
规划
项目设计灵感来源于武夷山九曲溪景色,旨在于园区内重塑隐屏九境,营造生于山水间的幽居秘境。项目空间布局分为前街、后府两大部分,前街为商业广场,一派繁华络绎之景;后府为住宅园区,抒写拥山卧水的静谧禅意生活。
项目依山而建,整体规划49栋商墅,7栋公寓,10栋商铺,将生态宜居雅致生活延续至此,营造世外桃源般的生活。
风格
建筑结构选用仿古街现代新中式的设计风格,立面大量采用武夷丹霞地貌的红色岩石,就地取材根据材料特性进行原生规划,使其与当地自然风貌高度融合。在行山涉水之间,身交万物,建筑与山水融合,相得益彰。
在商业造型立面上,设计通过对武夷传统建筑的中式元素提取,以现代的建筑构成手法和现代建筑材料进行重新结合,以现代审美的
深咖啡色金属格栅和仿夯土外墙质感涂漆等材质延续了传统的韵味,
营造出轻松、愉悦的民俗商业氛围体验。
景
设计从月与武夷山川的自然山水中寻找景观符号,月印万川社区整体以“两轴线、一环、九境”的景观结构,营造了一处生于山水间的幽居秘境。
“开门见山、翠竹弄月、秋水映月、九曲山庭、栖山戏月、月舞青鸾、芳草茶庭、傍草怡石、望霖沐雨”几个景观节点,容纳了各个功能空间,讲述出山居生活的境界。
设计强调的是一种独特的、纯粹的生活方式,一种“溪花与禅意,相对亦忘言”的精神回归。
示范区打造成充满禅意的「山居生活体验馆」,再一次将匠心情怀融入产品和生活本身,给人们带来沉浸式体验。
在这里,你可以找寻到适合自我的生活方式,在消隐的建筑里感悟山水自然、感受在地的文化、体验多样融合的生活。
示范区建筑依山而建,设计上借鉴国际建筑大师隈研吾“让建筑消失”的建筑主张,让建筑融入自然,于山中消隐。
天地一月,月印万川。当“圆”被运用于生活中时,其淡然的意境背后,体现的更是传承,对“圆融、圆满”精神原型的传承。设计从月与武夷山川的自然山水中寻找景观符号的设计匠心。
“新月印溪山、茶竹禅清境”的设计理念及四重秘境的空间规划,让人们在这里释放灵魂,感受在地文化、体验多样融合的生活。
生活
让心灵归于自然,洽谈区宁静、素雅,窗格营造虚实相交的疏离感,书香馥郁之中,竹韵灵动,一室清幽,卷走都市中的浮躁。
户型
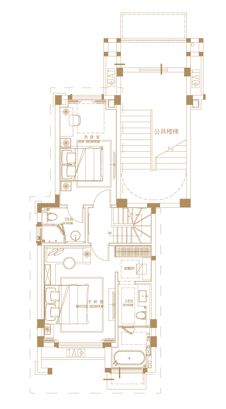
建筑面积约83㎡的上叠户型
以上叠三层的优势实现功能空间的百变,满足家庭成长的多重需求。
全明设计,客餐厨功能分区明确,内部空间和视野拥有充足的流动性。
超大的卧室空间,自带飘窗,依窗观景,藏纳万千山水,涵养精致生活;当自然的微光铺洒进阳台,室内便能衍生出种种温馨的情绪体验。
阁楼多空能空间,既可成为孩童成长的天地,亦可当做娱乐舒享的休闲空间。在人与人、人与环境的空间关系转换中,呈现出一种张弛感,也体现着山水中的至刚至柔。
建筑面积约55㎡的下叠户型【映山墅】
拥有约6米的层高,改造后使用面积可达100㎡以上,人性化的动线设计使空间界限更加明确的空间界限。院墅栖居,享受有天有地的生活情境,给人们带来更多自由的空间。
空间除了满足功能性的需求,更透出休闲自在的舒愜感,
延续东方智慧与现代空间的自然对话,设计清淡雅静,原木茶桌还原自然本真的气息,带来一层温暖的意绪。邀三五好友,品读
书香茶韵,静观人文,感受隐于自然的悠闲度假氛围。
建筑面积约49㎡的公寓户型【邀月居】
南北通透,拥有独立的厨卫配置和时尚个性的空间,一线品牌精装修,可拎包入住,以自如舒适的尺度,适享武夷全线资源。
项目名称:月印万川·隐屏
项目位置:武夷山武夷街道大布村右侧
用地面积:110467.22m²
容积率:≤1.0
绿地率:≥35%
END
:地产线、
FUN游学
等。
客服
消息
收藏
下载
最近


















































