查看完整案例


收藏

下载
缘起 | Background
云南省文山壮族苗族自治州丘北县普者黑村
,
一个
拥有全国
最多的荷花品种,湿地景观与喀斯特岩溶地貌相结合的世外桃源。
▼
湖面远眺
但就是这样一个美丽的地方,却有着它的尴尬现状。普者黑村自然地貌旖旎,但由于本地经验欠缺、粗放开发,风貌保护薄弱,措施难以落实、控制,大拆乱建横行,
成为了资本走向农村后,形成破坏式发展的典型。
传统的土坯民居大量被粗劣的钢筋混土建筑取代,大多仅以涂料对土坯墙体拙劣模仿,村落的原始面貌几近消亡,
村落被吞噬的现状让人唏嘘不已,也激发了设计师探索平衡发展与传承的策略方式。
两个房子 | Double House
踏勘村内诸多片区后,最终选定了一处位于水岸村中的宅基。
场地背山临湖,虽然交通略有不便,但反而因此免于破坏式开发的劫难,保留了部分传统土坯民居。
这个选址赋予脱离普者黑村大环境重新思考的机会,同时也带来了探索新平衡模式的压力。
▼
总平图
▼
总平面航拍
大多数游客来到普者黑村是希望逃离城市喧嚣,寄情乡土山水,放空身心。
虽然身处乡村,但他们依然希望可以享受舒适便捷的现代生活。
“乡土度假”的升级趋势为在乡村营造现代生活提出了更高要求,也是设计的基础需求。
▼
建筑外景
设计没有采用本地建造普遍使用的院落布局。
院落布局中,客房大多向内院开敞,客房单元之间相互干扰,而且部分房间必然朝向内院或村道,景观体验大打折扣。
项目地块朝向普者村黑荷花水面大范围开敞,拥有270度的景观资源,若采用院落布局即是对资源巨大的浪费。
同时院落布局的功能分区往往为竖向叠加,通常公共区域在一层,客房叠放在二层以上,公共区域仅仅满足功能需求、面积局促,空间舒适性较差,且动静区域相互干扰。
▼
建筑外景
所以根据使用行为需求的不同将公区与客房二分处理,充分利用景观资源支撑核心产品价值,形成“两个房子”的设计概念。
▼
概念草图
客房部分是居住体验的主要场所,客人从都市来到普者黑村大多数是希望体验到当地风土民俗,因此客房的房子采用了传统民居的建筑材料、风貌形式。
将南向临湖的景观面完全给予客房,14间客房全部是面向水面的景观房,超强的景观视野有力地支撑了营销价值。
▼
模型一
公区部分承担包括接待、用餐、厨房以及客人的交往等服务功能,是一个功能为主导的部分,因此公区的房子则以现代的功能主义形式所呈现。
公共区域一改常规酒店民宿中各部分统一集中的布局方式,将大堂与餐厅拉开,中间嵌入两个庭院,打破室内和自然的边界,人的活动与自然的变化合二为一,创造出不同于都市生活的自然体验。
▼
模型二
设计利用公区房子的平屋顶,设置了不同标高的两处屋顶露台。
二层露台面朝村落,升起的露台在提供传统体验感观的同时,避免了农村地面脏乱差对客人的干扰。
三层露台通过抬高完成面的方式将体验者视点升高,可在客房坡屋顶以上无遮挡地远眺湖景,露台、瓦屋顶、荷花水面形成远近丰富的景观层次。
▼
二层屋顶露台
▼
三层屋顶露台眺望二层
▼
三层屋顶露台眺望湖面
“两个房子”分别满足了客人来到普者黑追求的乡土体验和在民宿中感受的现代舒适。
内与外 | In and Out
公区部分从外到内分为入口庭院-大堂-中庭院-餐厅-厨房。
从东侧主入口进入口庭院,对景一簇翠竹,经景墙一转进入大堂,大堂内外通透,可以望见中心庭院与餐厅。
大堂和餐厅两部分面向庭院方向可以完全打开,以全玻璃折叠推拉门分隔。
▼
入口庭院
▼
入口庭院
当折叠推拉门关闭时,接待、用餐以及内院活动互不干扰。
当折叠推拉门全部打开时,公共区域可以形成贯通的大空间,入口庭院、大堂、中心庭院和餐厅共同营造出完整开阔的公区空间,可灵活容纳更多活动,同时内部走道保证雨雪天气的便利通行。
▼
公区空间序列
▼
入口庭院
▼
入口庭院
▼
大堂与中庭院、餐厅贯通
▼
大堂回往入口庭院
▼
中庭院回望大堂
▼
中庭院
▼
餐厅
设计希望“两个房子”空间上相互独立,同时又有所交流,因此在客房与公区之间嵌入一条缝隙空间。
缝隙空间的一层景观水池将公区部分与客房部分相对隔离,水面反射天空将外部自然纳入进建筑内部。
同时,水池侧边墙面上开设长6M的水平长窗,适度地联系了两个区域空间,且形成了一条动态的水平画轴,空间中的人物活动成为了画轴的动态影像,增添了体验的趣味性。
二层客房走廊砌筑镂空砖墙,行走间透过镂空砖墙可以看到若隐若现的青山村落景致。
▼
景观水池
▼
景观水池与水平长窗
▼
景观水池与水平长窗
▼
景观水池与水平长窗
▼
景观水池与水平长窗
▼
楼梯间与镂空砖墙
新与旧 | Modern and Tradition
普者黑村的民居墙面大多以传统土坯砖砌筑,土坯墙在阳光下肌理丰富,塑造了强烈的本土气息。
由于传统土坯材料在结构、耐候、抗震多方面不能满足现代建造要求,因此完全被时代抛弃。
当地对新建建筑的风貌管控中没有要求使用土坯砖,仅规定建筑外墙使用类似土坯砖颜色的红色或黄色色调,导致大部分建筑使用了千差万别的红黄外墙涂料,传统的普者黑村俨然成为了一个农村的城中村。设计师希望探索以现代的建造方式营造空间,以适当的方式传承本土风貌。
▼
建筑与周边土坯民居融合
客房部分的东西山墙采用了复合的土坯砖墙面做法。
土坯砖由本地工匠采用传统工艺取土、脱模、晾晒,待建筑主体土建完工后逐层砌筑并锚固在墙面预留的角钢上,增强两层材料间的整体性,而土坯砖本身良好的热工性能也对建筑保温隔热起到了辅助作用。
▼
土坯山墙
面对公区房子的材料选择,设计师希望以现代的方式诠释土坯,创造一种“新的旧”。
最后选择了与土坯颜色相近的灰泥,因为灰泥的肌理可以充分表达原有土坯砖的材料属性。
在建筑的不同部分,设计选择不同的灰泥工艺,建筑外部采用较为粗粝的灰泥拉毛工艺,强化阳光照射下的墙面光影肌理;
在内院则采用较为细腻的灰泥肌理,增加建筑与人的亲近感和使用的舒适感。
▼
大堂灰泥墙面
▼
新旧墙面
对比
▼
新旧墙面
对比
设计希望在“新”的公共部分中依然有“旧”的故事延续,把周边民居拆迁遗留下的废旧木楼板搜集起来,经过表层处理后,密拼在中心庭院的对景墙面上。
旧木凹凸不平的肌理和深浅不一的颜色,营造了区别于土坯砖的另一种乡土体验,塑造了建筑中一处极具故事性的环境空间。
▼
墙面旧木拼贴
屋顶 | Roof
普者黑村传统民居的另一特色在于土瓦坡屋顶。
因为受到传统工艺限制,坡屋顶在防水、节能上都不及混凝土平屋顶。
设计没有直接采用传统坡屋顶做法,而是选择平屋顶与坡屋顶相结合的形式。
平屋顶承担维护功能,有效地规避了传统坡屋顶构造在使用观感上的不足。
从防水、保温等功能负担中解放出来的坡屋顶,延续了传统工艺做法,外形更加轻盈美观。
同时平坡双层屋面也有效降低了建筑能耗。
在施工中,希望完全复现普者黑村落屋顶的肌理效果,以重木搭建结构,采用拆迁时回收的土瓦与新瓦混合铺设。
最终,建筑在满足现代使用空间需求的同时,最大程度还原了周边传统建筑的屋顶效果。
▼
二层屋顶露台与坡屋顶
平坡屋面之间的空间被有效利用,放置空调、水箱等设备,避免了设备外挂在建筑外墙的尴尬。
由于屋顶设备需要预留一定尺寸的检修空间,所以设计将双坡屋面中间部分抬升变为单坡,增加屋顶下的空间净高,单坡和双坡交接处的山墙面恰好可以作为检修口,不仅满足了检修空间的需求,而且使屋顶形式更加灵活有趣。
▼
坡屋顶与周边民居融合
客房 | Guest Room
客房更大程度上是一种产品化的空间。
为保证每间客房都向景观最大程度的开敞,阳台采用三扇推拉门,天气晴好的时候可以完全打开,客房、阳台和自然,室内与室外完全贯通。
二层东西两侧客房山墙开设一米见方的景窗,将远山与荷塘的景色以框景画面的形式呈现,与落地窗形成了不同的景观视觉体验。
▼
客房景窗与阳台
▼
客房远眺湖景
辅助空间的设置充分考虑到使用行为的不同属性,根据隐私与开放的不同程度处理各细节空间。
淋浴与便器最为私密,分别独立设置在房间最内侧,深色磨石贴面增强隐私性和安全感。
盥洗则是半私密行为,因此洗手台设置为半开敞,盥洗时可望见户外自然美景。
精品酒店中的浴缸则是侧重休闲属性,设置在客房靠近阳台一侧,让浸浴也成为一种观景体验。
▼
客房内景
▼
客房内景
尾声 | End
基于此前在农村建造的经验,设计师从建筑整体到结构构造都力求逻辑清晰、实施简单,以标准化替代复杂化,避免不切实际的过度设计,提升在农村建房子的品质保障。
清晰的策略逻辑也为建造带来了很多操作便捷,包括批量选材、施工监管、设备对接等。
最终,整个项目以350万总价完成了从土建到软装的全周期投入。
竣工验收时,本地部门相关领导不禁感慨,这个看上去很时髦的房子却有浓厚的普者黑村的味道。
客人从村口一路颠簸来到酒店门前,再逐步走入庭院、大堂、水院、客房,一系列惊喜被娓娓展现。
而我们从湖岛远眺朴里,也会禁不住感叹是普者黑村衍生了朴里,而朴里也尝试探索了普者黑村的未来。
▼
一层平面
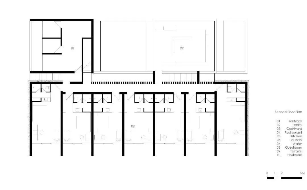
▼
二层平面
▼
屋顶平面
▼
剖面 I
▼
剖面 II
项目名称:
朴里精品酒店
项目地址:
中国,云南,普者黑
建筑面积:
1020㎡
完成时间:
2019.07
业主:
个人
设计单位:
TAG建筑设计
主创建筑师:
汪妍泽
摄影版权:
吴冠中
· END ·
客服
消息
收藏
下载
最近
















































