查看完整案例


收藏

下载
本项目位于山东省曲阜市,毗邻曲阜高铁东站,用地东至仁居路道路红线,南临孔子大道,北至盛开路道路红线,西临高速东路。地块共分为四个部分:养老住区,养老院,医院,春秋书院。地块总用地面积为232007平方米,其中地上总建筑面积313438平方米,地下总建筑面积19107平方米。建筑高层住宅耐火等级为一级,洋房、多层住宅耐火等级为二级,商业建筑耐火等级为一级, 幼儿园耐火等级一级,医院和养老院耐火等级一级,独立建造终端式配电站耐火等级一级。
▲春秋书院
设计理念
打造曲阜市首个全龄适老住区
孝养城项目作为九巨龙曲阜项目集群的龙头,蕴含了对养老产业和房地产业发展的战略思考, “全龄适老社区”的先进概念,深化完善成为一套完整的集社区规划、建筑设计、景观设计、室内设计、物业管理配套、养老护理和医疗服务为一体的系统理论与操作实务,其主要特色理念:
落实养老社区所必需的护理和医疗设施。
为了真正实现养老的各项功能,在地块西侧,配备了养老院和医院,使其可以充分便捷地服务曲阜孝养城地块及周边人群。
▲
医院透视图
▲
养老院透视图
在规划上实行人车分流、三级物管和开放式社区。
在北、东、南三侧设置了小区的3个出入口,结合不同类型建筑的布局,合理组织内部环形路网结构。实现车流沿骨干路网行驶,就近入库,人流沿社区步行入口和步行系统通行,进入二级小区和三级组团,减少人车交汇点,实现花园式入户。同时,社区主路有限度地对社会开放,实现开放社区理念与安心居住的有机统一。
▲规划结构图
海绵社区和“四小”的规划理念。
在规划之初,就充分考虑海绵社区的设计理念,采用分区地下车库而非全底盘地下车库,结合园林化的景观设计和坡地起伏,按照自然生态的方法建设,同时,在社区周边设置小游园、小绿地、小广场和小停车场,将内部和外部沟通起来,实现对社会友好型的和谐社区。
注重营造城市山林般的居住环境。
结合利用周边道路的高差关系,在社区内实行分小区、分组团的标高体系,通过社区车行道路的坡度、地下车库、坡地立体绿化营造高低起伏,曲径通幽,步移景异,层次丰富的景观环境,并通过尺度适宜的小型、半私密交往空间的设立,促进邻里之间交往行为和信任感的提升。设置环社区的健康布道和各类健身设施,方便老年人和各龄人群的活动需求。
同时,在室内设计细节、护理场所分布、电梯选型、物业服务等各个方面充分考虑老年人和其他人群的精细化需求,力求将本项目的“全龄适老”特色充分展现出来。
安全、节能的设计
为了适应汽车普及进入家庭的趋势,同时满足创造安全宜人居住环境的要求,小区按规划要求采用地上结合地下停车的布置方式设置了充足的停车位。响应节能绿色的号召,全面采用外墙保温,双层玻璃、太阳能热水器等节能技术,有效降低建筑能耗,实现长期综合最低的建筑全寿命成本特征。
总体布局
规划和设计延续场地总体设计的生态理念,整体采用环形结构规划,北面为住宅高层,西面为低层商业、南面为多层办公、公寓和配套用房,西侧为幼儿院、养老院和医院,中间为别墅区。利用道路将地块划分成不同的组团,绿化和广场将不同的组团串联在一起。将高层布置在地块的北侧和西侧,不仅使地块形成围合的空间,还将地块最大的景观资源做到了最大化。
▲幼儿园透视图
绿化景观规划
环境是整个小区的灵魂,良好且极具亲和力的环境,能改善小区居民的生活质量和提高整个小区品味,同时也能带来可观的经济效益和社会效益,这是设计者和业主在设计中共同追求的目标所在。我们设想,小区环境的总体气势宛如一幅清丽的地中海风情水彩画,气韵流淌,内部设计又匠心独具,一草一木,皆清新婉约,别具风韵。
居住区以中心广场和中心绿地为中心,结合道路系统规划和建筑布局,组成不同类型,性质的空间层次和空间组团,着力为居民提供一个绿色、健康、人文、自然的居住环境。
▲
景观规划图
住宅设计
规划平面布局特点,住宅为别墅2F、洋房6F、小高层7F、11F和高层18F、21F住宅。日照间距按大寒日三小时满窗日照标准设计。
▲
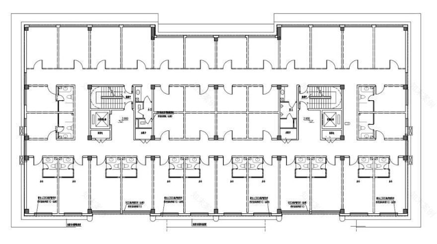
1号楼一层平面
▲
5号楼二层平面
户型特点:努力营造高品质的居住环境
(1) “四明”设计:每户均保证明厨、明卫、明卧、明厅的“四明”格局;
(2) 每户均保证一到两间居住空间朝南,每户均保证一间居住空间朝向主要景观;
(3) 卧室设置低窗台大玻璃凸窗,外加防护栏杆,通过凸窗的设置,以及起居室至阳台门为落地玻璃门,保证了更加良好的日照采光及优美的景观视野,并与室外的绿意相连,提高了生活品位。
(4) 每户进户处大都有玄关作为过渡空间,并结合储藏空间,避免开门见厅,营造了良好的空间层次效果。
(5) 大部分住宅阳台设计均保证每户有一个阳台,从而形成观景平台,并且起居室分为大小两处,舒适宜人。
(6) 所有厨房均设集中排烟道,避免油烟侧向外排,使用更加方便。
(7) 结合立面造型,预留空调室外机位置。
(8) 所有房间保证足够的窗地比。
(9) 借鉴里坊制和传统建筑风格,部分白墙灰面砖、灰瓦坡屋顶的建筑风格和空间分布,使得小区外立面有古香古色的感觉。
(10)更加充分考虑住宅信息化、智能化,主要体现在住户与社会的联系,即每户预留internet接口,并设置电脑控制的自动监控系统,从住宅单元门起,直至室内火灾、煤气报警系统,这些组成一个网络由小区物业管理部门统一管理,三表出户。
立面造型风格
本设计采用空间及表面的构成手法,借鉴里坊制和传统建筑风格,从而形成中式风格的古香古色韵味气息。高层坡屋顶造型错落有致,低层建筑白墙灰面砖、灰瓦坡屋顶的建筑风格和空间分布,充分考虑了来自运河游船上的视觉感受和天际线轮廓,打造曲阜市全龄适老居住区中一个典范。
▲
1号楼南立面
▲
38、39号楼南立面
▲
38、39号楼北立面
消防设计
整个小区严格按照有关的民用建筑防火规范进行设计,并严格按曲阜市有关部门的要求进行消防组织。基地内消防车可通达到每一单元,各楼满足规定的消防间距。
其它建筑
在小区内布置了物业管理用房和社区管理用房等,达到《济宁市城乡规划管理技术规定》的有关要求。公共和民用部分都规划采用无障碍设计,并将在深化设计中加以体现。
总经济技术指标
总用地面积:
232007
m
2
地上建筑面积:
313438
m
2
地下建筑面积:
19107
m
2
容积率:
1.35
建造密度:
32.72%
绿地率:
33.32%
居住户数:
1532户
居住人数:
4902人
机动车停车位:
1693辆
供稿:旅游设计分院
客服
消息
收藏
下载
最近




























