查看完整案例

收藏

下载
New Project
of
TJAD
戏曲艺术是中华民族的璀璨明珠和无价瑰宝,是最具群众性、代表性的传统艺术。宛平剧院是复兴上海戏曲艺术事业、推进文艺创作和文化建设的重要举措,是上海市“十三五”期间重大的文化设施项目之一。
同济大学建筑设计研究院(集团)有限公司于 2016 年底赢得国际设计竞赛并承担了本项目设计总承包工作,目前项目已竣工验收并于 2021 年 5 月 31 日正式公开亮相运营。
▲向城市打开的戏曲折扇
宛平剧院的位置得天独厚,北离徐家汇 1.5 公里,南距徐汇滨江不足 1.2 公里。它毗邻东安公园,眺望滨江岸线,交通便利。与周边星罗棋布的上海京剧院、昆剧团、沪剧院、越剧院等形成传统戏曲艺术片区。
新剧院在建于 1988 年的原址上建设,总建筑面积 2.9 万平方米。
以中国传统折扇为设计灵感,集传统戏曲剧场之大成,包括一个 996 座的大剧场,一个 262 座的小剧场以及可收纳座位 209 座的多功能演艺厅、40 座影音体验中心、专业排练厅等文化空间。
▲眺望滨江岸线,毗邻东安公园
▲远看万体馆,内环高架边
▲在社区中的剧院
作为传统戏曲的重要道具,中国折扇元素运用在设计中。以折扇精巧典雅的特点与传统戏曲剧场相结合,为城市带来徐徐的文化清风。主入口转角的玻璃扇面通透自然,将厅内的活动投射出来,犹如立体的中国扇面书画,婉转灵动、意境深远。
设计师从中国传统合院中汲取灵感,引入传统的造园手法,将多个不同规模和形式的表演厅堂在空间中错落叠放,提供处处有舞台、层层可观演的复合空间,呈现移步换景、立体化园林景象的“戏曲之苑”。
▲主入口玻璃扇面通透自然,犹如立体的中国扇面书画
▲大大小小的折扇消解庞大的建筑体量
▲折扇的间隙将内部空间表露在城市街道中
▲立体化园林景象的“戏曲之苑”
宛平剧院对标世界一流当代剧场的设计标准,为戏曲量身打造一方空间。遵循戏剧观念、观众审美的发展趋势,舞台结构在借鉴歌剧、音乐剧的舞美制作的同时,采用更加灵活的方式以兼顾戏曲的布景道具体量较小的需求,探索容纳传统戏曲和新编戏的空间。设计借鉴西方音乐厅、歌剧厅的声学,在投标阶段就将声场设计纳入考量,尊重传统戏曲的声腔魅力。剧场也不再是一个单纯的演出场所,公共空间中置入展览展示、传承体验、教育普及、文化交流,成为多项功能于一体的国际化戏曲剧场。
▲定位上海国际化大都市,面向戏曲未来的剧场
“扇形”这一传统韵味浓厚的标志性元素,不仅仅成为一种高辨识度符号,更多的是功用性。场地如折扇一般被最大化地围合起来,形成聚拢内向的空间格局,创造出“闹中取静”的契合国人传统审美的神韵。走在剧院中,天花上、墙上、座椅扶手、门把手,扇形的元素也俯拾皆是,它们巧妙地突出了戏曲元素的现代感和时尚感。
▲主入口的多种形态扇形意向
一楼的大厅展示戏曲知识、剧种普及等,二楼三楼公共空间,规划用音、影、美、画等打造艺术装置和沉浸体验区域,挖掘戏曲各维度的美感和技巧,吸引更多青年人群和知识阶层的参与体验。
▲装饰成扇面的公共空间
▲门厅和中庭空间
▲如扇子打开般的旋转楼梯
▲一把折扇展在天顶
大剧场的墙面依然化入了“折扇”概念,反声板是扇面,吸音板成为撑起“扇面”的“扇骨”。
大剧场台口宽 16 米,高 10 米,深 20 米,侧台宽 8-10 米,深 20 米。具有全电控可编程升降吊杆 65 套,全网格化控制的灯光系统和全光纤信号传输方式的扩声系统。舞台升降台化整为零为 25 个正方形网格升降台,转台呈棋盘分布更加灵活,能够如波浪般起伏,极大程度契合了新编剧目的制作要求。
▲996 座大剧场
▲舞台视角的大剧场
▲缩短视距,让观众更接近“角儿”
▲贵宾席
▲反声板是扇面,吸音板成为撑起“扇面”的“扇骨”
▲全电控可编程升降吊杆(周峻 拍摄)
“小剧场戏曲”近年来已成为了戏曲发展的一种新方向。
小剧场位于 b1-b2 层,契合其与舞台空间紧密联系的创作特性,发挥其小、深、精、广的艺术特点,成为实验性、先锋性的戏曲观演空间。
▲262 人小剧场
▲单元式的吸音材料幻化成千把柔美的小扇子
209 座的“戏·聚空间”多功能演艺厅,内墙采用可调光曲线玻璃,留有扇心骨一样的条条金线,宛如一个流光溢彩的琉璃盒子,散发着精致的气韵。
▲ 流光溢彩的琉璃盒子
▲扇心骨一样的条条金线
▲排练厅
▲接待室
▲ 俯拾皆是的扇形元素
新时代的剧院已不再是艺术爱好者和游客专属的文化设施,设计致力于将建筑与城市公共空间建立联系,努力让艺术融入社区,建设一座没有围墙的戏曲乐园。
透过周边居民楼的间隙,浅金黄色的建筑若隐若现,与环绕四周的楼房融为一体,安静又不失光彩地伫立在社区一隅。在新建剧院的影响下,毗邻的东安公园和戏剧融合,在公园的中式美学空间中,沉浸式体验有古典园林“基因”的剧目。
▲ 与周边居民楼和谐共生
( 周峻 拍摄 )
立面以建筑语言表达出折扇的韵律和美感。GRC 等现代材料塑造了充满褶皱的建筑表皮。折扇的直角形态,在实际建造中被进一步转译为更为柔美的弧形肌理的混凝土外墙。调整“折扇”的方向不断地切分建筑立面,并在间隙中将各层的公共平台表露在城市街道中。
为完美呈现弯曲褶皱的“折扇”造型,建筑整体采用数字化设计,非标准化模具及构件均采用数控机床加工,施工过程通过三维空间定位。外墙一共使用 312 块 GRC 和 234 块形状不同的模板,室内使用 2300 块 GRG 和 1200 块形状不同的模板。
▲ 柔美的折扇立面
▲扇骨的间隙光影交互
▲数字化建模及建造过程(图片来源:袁兆运)
宛平剧院是上海第一个全钢结构剧场,采用钢框架+屋盖桁架结构体系,使用粘滞阻尼墙作为消能部件。粘滞阻尼墙由内外钢板和高粘滞材料组成,设置在建筑物墙体部位,消能减震效果好,且契合了工程的钢结构特色。
▲ 钢结构施工(图片来源:尹澎)
在空间、结构复杂多变,且存在大量变截面或斜板等构件的情况下,BIM 在剧院类项目中的应用非常必要。机电管线、舞台机械设备、装饰吊顶等均集中在剧场舞台顶部及侧面马道上,利用 BIM 技术辅助机电深化设计、碰撞检测、净高分析、管线调整,有效进行空间优化,更好的实现设计。
▲净高分析及碰撞检测
▲辅助机电深化设计
戏曲是古老的,但又是年轻的。新的宛平剧院已运营一年有余,焕发着新时代的生命力。各种各样的剧目在这里上演,四面八方、老老少少的人群在这里感受传统戏曲的魅力。“上海之扇”已经交给了戏曲,为人们送来一阵清凉婉转的梨园之风,也为上海的文化建设增添了一抹清新雅致的风景。
▲运营中的新剧场
▲地下二层平面图
▲地下一层平面图
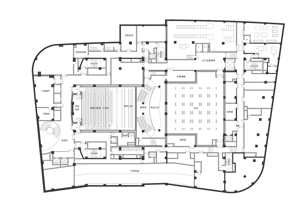
▲一层平面图
▲二层平面图
▲三层平面图
▲四层平面图
▲五层平面图
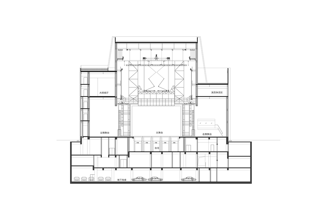
▲剖面图
项目档案
项目名称:宛平剧院改扩建工程
建设地点:上海市徐汇区中山南二路 859 号
设计时间:2016-2021 年
建筑面积:29280.65 平方米
委托方:上海市宛平艺苑
设计单位:同济大学建筑设计研究院(集团)有限公司
项目负责人:王文胜、周峻
设计主创:徐风
建筑方案设计:张洛先、王文胜、周峻、袁兆运、王亮、奚秀文、李皓、刘欣朋
建筑施工图设计:张洛先、王文胜、周峻、吕晓钧、尹澎、袁兆运、侯秀峰、马溪茵、李皓
室内设计(同济):周峻、袁兆运、尹澎、侯秀峰、李皓
室内设计(新丽):凌惠、张浩、陈燕华、姚薇、何杨胤
室内艺术指导:阴佳
结构设计:丁洁民、张涛、吴宏磊、居炜、周游、文超、刘剑锋、陈长嘉、王松铄
给排水设计:归谈纯、冯玮、王恒
电气设计:钱大勋、程青、王坚、廖述龙、徐而峰、吴佩培
暖通设计:王健、徐桓、曾刚、李昊翔
节能设计:唐澄宇
绿建设计:汪铮、任国辉、王颖、李晨玉、李冬梅
照明设计:杨秀、马玥、卞晨、马晓杰
景观设计:戴代新
BIM 设计:张东升、陈烨、赵琦、贾敏
VR 辅助设计:张峥、杜明、马心将、汪成、赖坚
造价咨询:翁晓红、周致芬、冷月娣、王飞、顾晶晶
幕墙顾问:钱学昆、余红平、任义
剧场及声学顾问:刘海生、田超峰
舞台机械顾问:Tom Lamming, Nick Broad, Mark Stroomer, Richard Borkum, Theo Farringdon, 徐舒韵
建筑摄影:马元(除标注外)
TJAD 观演项目精选
中国扬州运河大剧院 | 上海话剧艺术中心修缮工程 | 新天安堂改造设计 | 左权莲花岩民歌剧场 | 上音歌剧院 | 上海音乐厅修缮工程 | 上海交响乐团音乐厅 | 上海保利大剧院 | 云南大剧院
• 了解更多 •
• 业务联系 •
王佳 | | 021-35376000
李娟娟 | | 021-35377770
客服
消息
收藏
下载
最近




























































