查看完整案例


收藏

下载
Xiangyun D iangu Desgin 生活方式解读者
情怀·憧憬
待在山巅的时光,就像一场梦。
栉风沐雨,水流花开。
直至迟暮不返,记忆开始恍惚。
向林木、鸟兽告别,来到繁华的街市。
于一处空间内蜕变重生。
颠覆·重生
❍
静默,悠然,迎接第二次生命
低声细语,和融着设计者描摹的信仰
一期一会,留存了诗与理想
时光若可轮回,盼重为草木
惊醒时看朝暮霞光,迎着整个山川
进退·串联·界定
白色的张力,光影重叠,明暗交织
静谧的手法,颠覆重组,进退得宜
●沿着曲面的门头走进,迎来满目砖红,阳光顺着砖格攀升进来,折射出红砖粗粒通透的质感。走进室内,光影交织,纵横错落,优雅的植物与柜体,串联起整个空间。
设计师用材质和色彩来界定不同的功能空间,木质的温润质朴,石材的流利坚硬,以及织物的柔软细腻,共同营造出落落大方的空间视觉。
●
转折·窥探·强化
纵横有序,悬浮跳跃
冷暖碰撞,转折窥探
● 故事的转折发生在黑、白、灰的极致碰撞中,冷暖均衡且风情无限,像是一本写满传说的故事书。因人而异,读出不一样的情绪心境。
设计师用一面上下悬空的矮墙做隔断,间隔会客区与谈单区。排列有序的窗格,隔而不断,让阳光与气流在空间中自由的流动。光影绰绰之间,是隐秘的窥探乐趣。
●❍
●
重组·承上启下·坚持
自然和谐,天地相通
动线游走,通透之势
●设计师用各色绿植做装点,满室馨香,岁月静好 。灯与桌,以自然为源点,以木为元素,独抒性灵。席地而坐,或浅酌,或畅谈,品味流年的芬芳。
在灰白调的背景下,气质优雅的氛围感迸发,空间转化的动线与立体之美直达场景。干净、利落、层次、清丽、放松,内外呼应,自由呼吸。每一处设计都保留着艺术的灵魂,每一格透视都隐含了设计的态度。
破局·转型·不完美
破是辞旧,立是迎新。
总结过去,对话未来。
●二楼暗调的办公去给空间度上一层厚重的仪式感,木质开放格在井然有序的排列中“拢”住情绪。平整、严谨,化作器物,缓缓拉开悠长的岁月陈述。
原木沉稳,亦有晏晏少年时。枝丫纤细,亦能长成参天材。虚实、对比、绵延、冲破,冥冥中承载着对生命过程的哲思,完美自无数的不完美中悄然诞生。
●
平衡·融合·永恒
一枝新绿,逐光而生。
与光共舞,光合美好。
●挣脱故土,扎根萌发。打下生命印记,赴第二次冒险之旅,实现人文、自然、空间、生态的平衡相融。
一椅一憩,一柱一体。结构组成,韵律宏伟。复古加现代的时尚艺术设计,尽显空间的层次之美。美不局限于一种形式,最适合的才是永恒。
● 结语
❍
我们在日常生活里的真正收获是不可触摸、难以形容的,就像早晨和黄昏的霞光。我们抓住的是些许星尘,是彩虹的碎片。
幽静中延续美的意境,在这个空间里,顺应本性,放空身心,不知不觉便远离纷繁俗世之扰,荡涤心灵的尘埃,洗刷往日的一切,尽享释然的情怀。
传承信念与自然,愿往后每个神采奕奕的日子,都有香韵典故的参与。
●
改造前
分析图
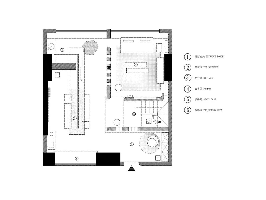
一楼平面布置图
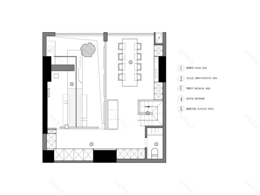
二楼平面布置图
Project Name | 项目名称:香韵典故空间设计工作室
Location | 项目地址:四川 成都
Area | 项目面积:120㎡
Creative Director | 创意总监:马子雯
Design Execution | 设计执行:廖永林 罗俊杰
Design Company | 设计公司:香韵典故
Construction Unit | 施工单位:四川大合建工
Photography | 摄影师:季光
DESIGNER
设计师介绍
马子雯
香韵典故空间设计创始人 / 创意设计总监
擅长:解读生活方式,伴随时间的推移,功能的重复利用演变多元化生活方式。擅用简洁的线条描述空间中人与人之间的距离以及人与物理环境之间的感受。认为空间中的结构是人的生活方式演变出来的居住空间。所谓的装饰不止为了好看,更多考虑到人与人之间的距离以及人与空间之间的物理感受。空间的主人的生活方式营造了空间的氛围,空间的气质带给居住者的共鸣也能够左右人们对生活方式的演变。
-end-
撰文 / 香韵典故
设计观点 / 香韵典故文化
TEL:18383136815
扫码咨询
REVIEW
客服
消息
收藏
下载
最近






















































