查看完整案例


收藏

下载
在日本滋贺县的一个高密度的郊区,当地的FORM/木村浩一建筑事务所在一块空地上置入了一系列方形体块,同时有条理有规划地布置开口。客户希望他们的住宅感觉非常开放,能够欣赏到附近的湖景,同时又能与邻居保持相对的隐私。
↑正立面 该住宅有许多突出的重叠的体块,由此产生的空隙为大的开口提供遮阳,同时也屏蔽了部分外部的视线。建筑的基座与停车区域是混凝土材料构成的,室内则采用有纹理的天然石膏,同时,混凝土材料也在室内得到延续,一方面起了框景的作用,另一方面也赋予每个房间独特的性格。
建筑丰富的体块变化创造了一系列不同的空间,从细长的房间,到压缩的和垂直向上的角落。室内元素相互对比、相互促进,例如混凝土对鲜亮纯白的墙壁与天花板,而在外立面暗色和亮色金属盒的对比上也反映了这种关系。
↑主要的生活区域
↑室内的几何体造型定义了边缘与色调
↑混凝土与白色的墙、天花板和地板形成对比,体现了功能主义的美学思想
↑混凝土墙创造了一个独特的空间,以供休息和观赏窗外的风景
↑餐厅
↑室外平台
↑一层平面图
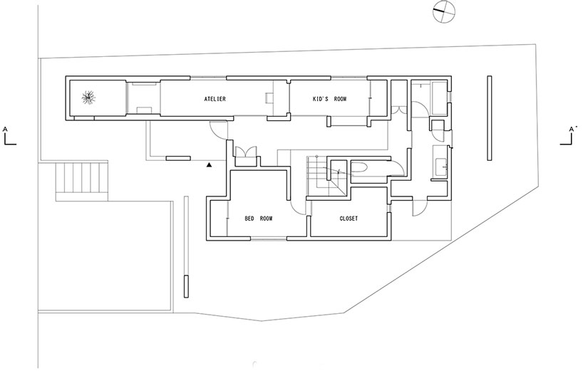
↑二层平面图
↑剖面图
建筑师:FORM/木村浩一建筑事务所 位置:日本,滋贺县 客户:私人 施工年份:2014年 用地面积:244,63㎡ 建筑面积:137,37㎡ 摄像:Yoshihiro Asada 翻译:##-木头龙
···
客服
消息
收藏
下载
最近





















