查看完整案例


收藏

下载
The Starhill 是吉隆坡地标性的购物中心,地处核心商业带武吉免登,Kokaistudios 对其进行了建筑及室内的全方位改造,这也是该事务所在东南亚的第一个大型设计项目。设计为商场内部引入自然光线并丰富了其空间功能,如今的 The Starhill 已全然焕新并开启了新的篇章。
Kokaistudios 运用其标志性的改造手法,将马来西亚的一个地标性购物中心与城市环境更紧密地联结起来。二十余年来,位于吉隆坡武吉免登商业带的 Starhill Gallery 一直以其独特的功能组合吸引着游客:这个建筑面积为 28,500 平方米的商场同时也是吉隆坡万豪酒店的所在地,但从前的酒店是在与其相连的塔楼中。如今品牌重塑并命名为 The Starhill – Home of The Tastemakers,通过重新整合商场的部分空间,Kokaistudios 在城市中创造了一个全新的公共场域,并以该商场驰名的奢华生活方式体验为基础进行更新,同时保留并准确无误地传达其视觉形象。
The Starhill 加丁路沿街夜景
The Starhill 的文化遗产及其与周边环境的关系是空间的重要部分,然而更新前的商场内部空间缺乏活力,并未体现出外部建筑的影响。除了在商场内部创造统一的设计语言以外,Kokaistudios 还力图将空间向城市及更远的地方开放,并通过可触及的生活方式元素来建立商场现有的多元使用方式。首先的切入点是恢复建筑被隐藏的天窗,将自然光注入商场内部。
加丁路沿街的修复性改造
武吉免登路沿街立面夜景
The Starhill 位于武吉免登路和加丁路这两条主干道的交汇处。为了将商场更紧密地织入城市结构中,Kokaistudios 对其北立面和西立面以不同方法改造,同时保留了各自引人注目的视觉特点。商场从前的角形外壳下部已被拆除,这使得奢侈品牌主力租户在武吉免登路上就能被看到;而西侧临街的餐饮则适合加丁路的步行交通系统和狭窄的尺度。食肆前面有独立的玻璃景观亭、入口、阶梯式露台和邀请式的临街外摆,模糊了室内外的界限,为曾经封闭的购物中心增加了多孔通透性。Kokaistudios 也重新设计了位于阶梯尽头的广场与地下餐饮目的地,即 The Starhill Dining 的入口。
主入口夜景
俯瞰武吉免登路的露台
加丁路入口夜景
改造过程中,商场标志性的不规则外立面上层被作为建筑遗产保留下来。它的形态让人联想到皇冠,作为 The Starhill 的主入口而备受瞩目。商场的占地面积被缩减,以便重新开辟一个更有吸引力的广场,从而进一步模糊公共与私属领域的界限。全新的露台被安置于入口的正上方,这里不仅可以俯瞰整个繁华的公共空间,也塑造了新的城市景观。
主入口
诚品生活入口
在商场内部,策略性的设计让游客能够快速理解建筑逻辑以及其全新整合的层次。在主入口是一个适宜开设快闪店的宽敞空间,两侧设有扶梯通往上层,提供纵向交通上的双重视野。通敞的入口门厅右侧特设一部扶梯,连接到上层的开放概念空间。这是一个专门的生活方式区域,目前是诚品生活的所在地。
主中庭上方的酒店立面
主中庭
主中庭连廊
主中庭上方的酒店立面
基于 The Starhill 已有的生活方式和多元功能特色,其酒店从原有的塔楼延展到购物中心的三层空间。这样的改造设计创造出多样化的功能组合,可通过酒店房间的窗户看向充满光线的商场中庭。对酒店客人和购物者而言,这是个意外之喜,这些窗户唤起他们对城市的感受,仿佛置身于“城中之城”,进一步模糊了内外的界限。通过窗户可俯瞰连接中庭两侧的连廊,可让来访者从上至下、从左至右地彻底饱览整体空间。
主中庭
连接盥洗室的走道
盥洗室细节
Kokaistudios 对 The Starhill 的核心设计思路是将自然光引入这个曾经封闭的空间。受温室环境轻快优雅的氛围启发,设计在商场圆顶天花板上重新开启了天窗,让日光自然洒下。绿色的墙壁、洗手间区域的花卉设计和丰富的绿植,热带温室的主题由此贯穿整个商场中。
圆形中庭
男士精品区
电梯轿厢
为提升垂直动线和跨楼层视域,设计在商场主入口附近改造了一个圆形中庭。室内选用石材地面、自然木纹饰面、粗粝的墙面涂料及精致的黄铜细节,从方方面面强调酒店般宾至如归的氛围。
改造后的建筑外立面
改造前的 The Starhill。The Starhill 改造的落成标志着 Kokaistudios 在东南亚第一个大型项目的成功,事务所通过多年累积的建筑设计及改造经验,准确攫取了这次机会,让标志性建筑加深城市记忆。在知名的吉免登商业带,The Starhill 独特的“皇冠”造型不仅仅是一个符号,也代表了可持续翻新的一种方法,即保护建筑结构。如今,合并后的酒店、专用的一层生活方式概念空间......增强了客户群的多重组合,空间明亮通透,开放式的购物中心得以在吉隆坡延续其深刻的形象,成为当地居民与旅客的必游之地。—
lower ground 平面
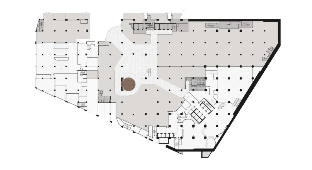
ground floor 平面
upper ground 平面
level 1 平面
A-A 剖面
B-B 剖面
武吉免登路立面
加丁路立面—
拆除与新建
垂直功能分区
主入口区域细节
加丁路沿街的修复性改造
面向主中庭的酒店立面细节
环绕主中庭的阳台—项目信息
项目名称:The Starhill
地点:马来西亚,吉隆坡
客户:YTL
服务范围:建筑改造+室内设计
完工时间:2022 年
建筑面积:28,500 平方米
设计公司:Kokaistudios
首席设计师:Andrea Destefanis, Filippo Gabbiani
建筑设计总监:Pietro Peyron
建筑设计团队:赵牧云、Marta Pineiro、彭书娴、Andrea Antonucci
室内设计总监:王思昀
室内设计团队:赵牧云、刘畅、利嘉琪、张丛桑、朱文夜
摄影:David Yeow
撰文:Frances Arnold
媒体联络:Jacqueline Chiang
客服
消息
收藏
下载
最近












































