查看完整案例


收藏

下载
案例简介
Case description
【业主需求】
本案业主是一对事业有成的80后夫妻,有两个读幼儿园的儿子,正是活泼好动的年纪。为了能够给孩子们更好的成长环境,两人购置了这套四居室。他们希望新家要有很大的玩耍空间,可以陪孩子玩游戏、画画、做手工;要有足够的储物空间,玩具和书籍都能轻松收纳。
【设计思路】
新家户型方正,南北通透;大横厅、四居室的格局完美契合业主一家的居住需求。但业主对于客餐厅的布局却犯了难,不仅要保证有足够的空间供孩子们玩耍,又要兼顾会客聚餐的使用场景。另外需要独立的洗衣间和充足的收纳空间。
1,阳台变餐厅,公区都属于孩子们!
将阳台打通一分为二,不仅拥有独立洗衣房;餐岛一体的设计大大增加收纳空间,超大餐桌还可以陪伴孩子们画画、学习。
在横厅中间放上一组沙发和地毯,既能招待客人,也能让孩子们满地打滚。
2,超强储物,杂物再多也能“装”!
客厅做了一整面储物柜;每个房间还有大衣柜,足够收纳各类物品!
玄关做了一组顶天立地鞋柜,利用每个房间的飘窗,又得到更多的收纳空间。
客厅以低调的灰色和典雅的浅咖营造舒适的居家氛围,点睛之笔的姜黄色单人沙发为空间注入无限活力。
摒弃复杂的形式主义,注重居住空间的实用功能和流畅动线,演绎少即是多的空间美学。
客厅采用局部吊顶包住中央空调,美观大气实用性强。
环形组合吊灯搭配线性灯带,灰色地砖延伸至整个公区,利落的棕色皮质沙发,时尚简约的现代风格赋予空间无可取代的温馨家景。
客厅不一定要有茶几,直排沙发和单人沙发的组合创造出超大的玩耍空间,足够孩子们肆意奔跑,满地打滚。
当空间真正与居者需求相结合,家才有了意义。
为了增加储物空间,电视墙定制了一整面收纳柜。最上面收纳不常用的物品,电视下面则是一排抽屉柜,随手拿取方便省事。
三个开放格收纳常看的书本和精致的摆件,“二露八藏”收纳法则什么时候都适用。
两副超大的抽象油画给原本单调的白色墙面增添些许生机
利落的线条干净清爽,营造生活的舒适氛围。
打通阳台之后,利用采光最好的靠窗位置规划了餐岛一体。
白色大理石台面的岛台搭配大尺寸餐桌,亲友聚餐也绰绰有余。平时还能陪着孩子一起画画、做手工,享受幸福的亲子时光。
为了避免小朋友玩耍时磕磕碰碰,细心的女业主特意选用了交错桌腿的餐桌。
主卧延续整体简约低调风格,低饱和度的灰色大面积铺陈,搭配淡然静穆的床品,带领居者感受空间的舒适与温暖。打掉飘窗,利用承重墙定制一组到顶储物柜,超强收纳靠一点点“抠”出来。
L型衣帽柜完美解决主卫门正对床的小尴尬,白色的床头柜和精巧的吊灯方便业主享受睡前的阅读时刻。
儿童房采用清新的雾蓝色与浅灰恰当的平衡了童趣与现实。造型简约的衣柜,利用飘窗打造的收纳区,给与成长无限的可能性。
充满童真的飞机造型吊灯和童话色彩的挂画和摆件,都是小男孩最喜爱的元素。
大人们的精心挑选是为了给孩子快乐的童年时光。
卫生间的洁具选择了最能收纳的款式,满足一家人的使用需求。透光不透人的玻璃门让空间更具通透性。不同灰度的色彩搭配不仅大气耐看,也很好打扫收拾。
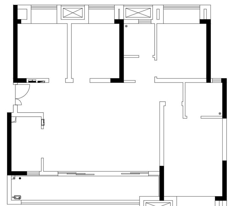
原始结构图
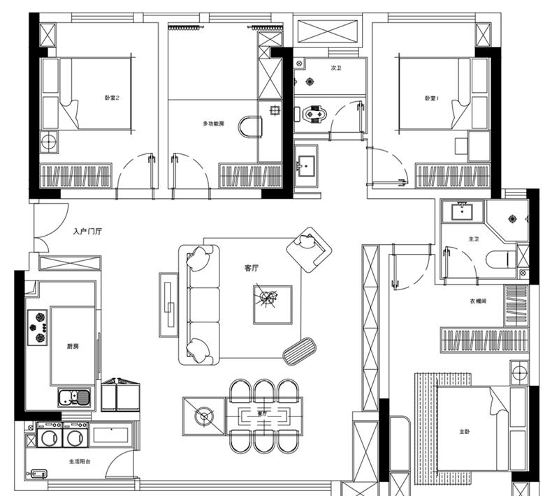
平面布置图
客服
消息
收藏
下载
最近























