查看完整案例

收藏

下载
CBG园区(Campus Betterware Guadalajara)是墨西哥著名国际家居品牌Betterware的新仓库、分销和工作中心。该园区位于瓜达拉哈拉北部的El Arenal市,四周被乡村环境围绕,并靠近“La Primavera”森林生态保护区,占据优越的自然景观。
The CBG Campus (Campus Betterware Guadalajara) is the new warehouse, distribution and work center of an important international household products company. Located in the municipality of El Arenal, north of Guadalajara, Jalisco, the campus is immersed in a rural context, near the ecological reserve of the “La Primavera” forest, which gives the site a privileged landscape, composed mainly of oaks and pines.
▼项目外观,Exterior view
▼建筑立面,Building facade
园区规划的一个重要考量因素是各操作空间之间的水平性和连续性,这对于此类工业建筑的运作而言必不可少。为了遵循这一原则,并逐步调和入口、内部道路、相邻区域、停车场以及纯粹的操作空间的水平层级差异,场地中置入了交错的钢筋混凝土护墙,并结合了数个悬空的花园。
An important aspect that determined the configuration of the campus, and that is imperative for the optimum functioning of an industrial building of this type, is the horizontality and continuity between operative spaces. To follow this principle and to gradually reconcile the differences in levels between accesses, interior roads, adjoining areas, parking lots and purely operational spaces, staggered reinforced concrete retaining walls were generated to which hanging gardens were incorporated.
▼连贯的路径,The connected accesses
▼建筑近景,Facade close-up view
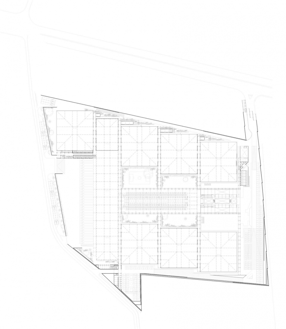
园区的总体布局直接地回应了产品分销中心的运作逻辑:包括一个总控场、一个产品装卸库、七个储物仓库以及一个大型的工业单元,其中包括机械塔和公司的行政办公区域。
The general scheme of the campus responds directly to the operational logic of a product distribution center: a maneuvering yard and a shipping warehouse where the products arrive, 7 warehouses and a large industrial unit that houses the automated towers with their respective lines of assortment and the administrative area of the company.
▼大型工业单元,The large industrial unit
▼内部空间,Interior view
设计的前提之一是要实现管理人员、操作人员和行政人员在空间上的直接连接。带顶的交通空间分布于建筑物之间,使工人能够直接穿越花园。
To achieve a direct spatial relationship between managers, operational and administrative staff was one of the design premises. Between buildings roofed circulations were generated to allow workers to cross the gardens.
▼通高中庭,The full-height atrium
▼公共空间,Public area
园区结合了两个主要的结构系统:低层建筑和外部护墙,旨在调和混凝土结构之间的层高差异;钢结构则用于需要大面积空地的仓库。
The campus incorporates two main structural systems: low-rise buildings and retaining walls to reconcile differences in levels with concrete structures; and steel structures for warehouses that require clearing large clearings.
▼仓库,Warehouse
▼仓库,Warehouse
▼户外空地,Outdoor yard
园区最重要的一个特征是它将公司的操作区域和办公区域结合起来,同时确保了所有用户都能享受高质量的空间和体验。建筑的内部和外部空间形成了不同的关系,大尺度的景观区域创造出能够适应场地条件的不同的微气候,其中包括生长于Huentitán和“Primavera”森林附近的低维护物种。旱河被整合至景观设计中,以更好地利用雨水来浇灌花园,同时使水渗入下层土。
One of the most important characteristics of the campus is that it combines the operational and administrative areas of the company. Another very important premise in the design was to ensure that all users of the campus would have high-quality spaces and experiences, for which there were generated different relationships between interior and exterior spaces with an imposing landscape design that creates different microclimates adapted to the conditions of the site, including low-maintenance species that are found in the immediate surroundings of Huentitán and the ‘Primavera’ forest. Dry rivers were integrated into the landscape design in order to make better use of rainwater to irrigate the gardens themselves and allow water to infiltrate into the subsoil.
▼花园景观,Landscaped garden
▼停车区,Parking area
园区拥有自己的污水处理和雨水收集系统,用于户外区域的灌溉和维护。太阳能电池板可以为综合体提供能源。专门从事生物气候设计的团队分析了场地的条件和园区的构成,并将其转化为不同的建筑解决方案,以纳入被动式通风和自然采光系统。
The campus has its own treatment plant and a rainwater harvesting system for irrigation and maintenance of outdoor areas, solar panels were incorporated to supply energy to the complex too. A team specialized in bioclimatic design analyzed the conditions of the site and the components of the campus and translated them into different architectural solutions to incorporate passive ventilation and natural lighting systems.
▼建筑外观细节,Exterior detailed view
▼建筑外景,Exterior view
▼平面图,Plan
▼屋顶平面图,Roof plan
▼剖面图,Sections
Campus CBG
Project: Campus CBG
Architectural design: Estudio MMX + Luis Campos
Location: Guadalajara, Jalisco, Mexico
Collaborators: Santiago Vázquez, Ana Nuño, Gerson Guizar, Lesly Noguerón, Gabriel González
Area: 75,000 m2
Photography: César Béjar
Year: 2021
客服
消息
收藏
下载
最近
























