查看完整案例

收藏

下载
这是业主租的位于北京天坛生物历史建筑群院内的房子,该楼是始建于1982年的砖混结构楼房,因此内部空间格局很难改动。同时,房主有意保留大部分现有家具。因此对建筑以及保留家具的尊重成为我们这次设计的先决条件。也因此,主动地化设计限制为设计素材是我们的首要任务。
▼项目一瞥,Preview
The apartment is located in the dormitory area of Tiantan Biological Products Co., Ltd which is the historic buildings. The building is built with brick-concrete structure in 1982, so it’s difficulty to adjust the special layout. The owner let it out, but want to keep the most furniture in the house, only could trash few things. Therefore, respecting the historic building and the existing furniture is the condition of this design. Turning the design limitation into design material is the primary task.
▼现状条件,Existing condition
▼插画,Illustration
这里将承载业主的生活及其办公的所有内容,共同使用的还有两只猫。因此生活和办公空间、猫和业主的空间,是这个设计需要思考的平衡点,使得他们和谐并相互支持,而成为相互生命中的一份礼物。
猫和业主的空间交织方式、新旧空间以及家具的交织方式是我们这次设计的切入点。
This apartment will take on the client’s live and work, and be shared with two cats. So we have to balance the space between the live and work, between cats and user, in order to make them could support each other as a gift.
Weaving space between cats and client, weaving furniture between new and existing, is our design idea.
▼形成新的公共空间边界,Creating a new boundary for the public area
▼置入新空间要素,Integrating new spatial elements
卧室 | Bedroom
作为猫和业主、生活和工作相互编织并给予的核心节点(卧室),猫帐篷和床铺的组合,给卧室创造出4平左右的小型“客厅”。猫帐篷处于窗户和“客厅”之间,并分别有一道横向和竖向的缝隙与窗户和“客厅”联系,它们也成了猫帐篷的窗口和门口。
As the core space of weaving between client and cats as well as live and work, the combination of cat’s tent and bed splits the bedroom into two rooms, bedroom and “Livingroom”. The cat’s tent is placed between window and “livingroom”, which connects the window and “livingroom” by the vertical and horizontal opening.
▼卧室门口,Entrance to the entrance
在帐篷和床铺之间有一个直径500mm左右的圆洞,以供它们穿梭,也建立起业主和猫的交流通道,同时在圆洞边缘嵌入LED灯带,提供房间照明。在夜晚,灯光穿过猫帐篷的门洞,集成一束光线打在“客厅”的天花和侧墙,这里也成了沉思的地方。
There is also a round hole in the right side of cat’s tent, which allows cats cross the tent and bed freely, also allows the client communicate with cats directly. We assemble the Led light in fringe of the hole as the light of the room. In the night time, the beam of light comes through the vertical opening, and hits the celling and wall of the “livingroom” that is a meditation space.
▼猫帐篷,The cats’ tent
▼猫帐篷细部,Detailed view
玄关 | Hallway
玄关区域采用灰色涂料与餐厅形成统一的公共区域感,在这一米一宽的过道里,左侧采用悬挑结构的不锈钢开放架,右侧采用半透明的阳光板来遮挡原有墙面繁杂的装饰元素,都尽可能地避免由于改造利用,导致过道过于狭小而带来的压迫感。
The hallway and dining room are painted gray to emphasis the public area. In this 1.1meter wide corridor, on the left side, we designed a cantilevered stainless steel shelf; and on the right side, we covered the original wall with 10mm thickness polycarbonate hollow sheet, in order to hide the complicated decoration on the wall. The treatment on the both side, could avoid the sense of oppression caused by the narrow corridor due to the renovation and utilization.
▼玄关和不锈钢架,Hallway and the stainless steel shelve
▼玄关不锈钢架细部,Detaild view
餐厅 | Dining room
通过U型操作台面将原有厨房、家具以及新增家具全部组织起来,从而强化餐厅的空间特征和次序,以及舒适的使用体验。新增的不锈钢开放架为了有机地衔接了原厨房内的橱柜和可移动餐边柜,有意将竖向结构件远离相邻的柜体,尽可能简洁地通过横向层板与原有柜体毗邻,来协调新旧之间的和谐。
The existing counter, the furniture and the new cabinets are organized by the U-shape counter top, which also contribute the strong spatial characteristic and the order for the dining room. In order to connects the cabinet in the kitchen and the sideboard organically, we keep the pillar of the stainless shelf away from the adjacent cabinets deliberately, so that the new shelf could adjoin the existing cabinets through horizontal sheets as concisely as possible.
▼餐厅,Dining room
对于一些我们不需要但房主又希望保留的物件,还需要进行额外的储藏设计,最具难度的便是原厨房的三扇推门(每扇尺寸是550x2150x30),卧室的木门(尺寸为800x1950x45)。如何组织及协调现有家具、如何置入新的设施,而且要尽可能少地破坏目前建筑,是我们给自己设定的一个设计命题,也成为一系列节点构造上的难题以及趣味。
For some items that we don’t need but the owner wants to keep, we have to figure out how to store them. The most difficult ones are the three sliding door at the kitchen (each size is 550x2150x30) and the wooden door of the bedroom (size is 800x1950x450), How to organize and coordinate existing furniture, how to put in new facilities without destroyed the existing house is a design proposition that we setup for ourselves, and that also become a series of problem and interests in the constructional development.
▼餐厅局部,Dining room partial view
以物储物是我们对家具改造利用的其中一个基础,我们利用现有餐边柜(450深)与操作台面(550深)的尺寸差,产生出100mm的空腔来储藏三扇推门。
Store one item by another item is a principle of transformation and utilization of furniture. We used the size difference between the existing sideboard (450mm) and the counter top (550mm) to create a 100mm cavity to store three sliding doors.
▼不锈钢橱柜,Stainless steel cabinet
▼不锈钢橱柜细部,Detailed view
工作室 | Studio
将南向阳台内侧的两扇窗户移除后,狭隘但阳光的阳台空间围绕着拆除窗户后的窗台,形成积极充满活力的吧台休闲区域,增加了灵活使用的可能性。
After removing two sliding window in the inner wall of balcony, we transformed the window sill into bar counter for the active and flexible use.
▼工作室,Studio
吧台面的做法也延续不破坏现状的原则设计节点,通过扁钢和倒锥形调平支点来提供吧台面平整的结构支撑。
The construction of the bar top also continues the principle of not destroying the existing house. We used the flat steel and inverted tapered fulcrums to support the bar top and anchored by the original screw which were used to anchor the window.
▼工作室岛台,Working island
在构造上,我们以每个构件节点在涂料墙面最多只打一个螺丝孔的原则,来设计每一个空间元素。最后我们只在墙面留下10个孔,便完成全屋的更新。
In constructional design, we make sure each component only need to drill one screw hole on the painted wall. Finally we only left 10 holes in the wall to complete the renovation of the whole house.
▼工作室岛台细部,Detaild view
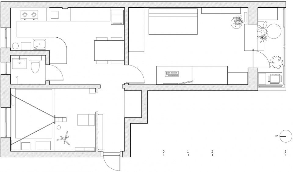
▼平面图,Plan
▼重新布置原有家具,Re-arranging the existing furniture
▼猫帐篷构造爆炸图,Cats’ tent
项目名称:四号公寓室内改造设计
项目类型:室内改造设计
设计方:后时建筑
公司网站:
项目设计:2022年
完成年份:2023年
设计团队:孙群,孙栋平
项目地址:北京
建筑面积:60㎡
摄影版权:后时建筑
客户:私人
材料:不锈钢,内墙涂料,水性木器漆,蜂窝阳光板,帆布,桦木多层板
品牌:佐敦内墙涂料,三青木漆
Project name: No.4 apartment interior refurbishment
Project type: interior refurbishment
Design: Beyondtime Architects
Website:
Design year: 2022
Completion Year: 2023
Leader designer & Team: Qun Sun, Dongping Sun
Project location:Beijing
Gross built area: 60㎡
Photo credit: BTA
Clients:Private
Materials:stainless steel sheet, wall painting, wood painting, polycarbonate hollow sheet, fabric, brich plywood
Brands:Jordan, sanqing
客服
消息
收藏
下载
最近

























