查看完整案例

收藏

下载
项目
The Project
该公寓位于基辅历史城区,占据了一栋1905年的住宅楼的第四层。既有空间拥有优质的采光,从所有窗户都可以看见幽静的绿色公园。鉴于建筑物的现状,需要对公寓进行大规模的翻新。在拆除的过程中,设计团队发现了已经腐烂的石板和墙壁上的巨大裂缝,此外地板也需要进行更换。
The apartment is located on the 4th floor of a residential house, which was built in 1905, in the historical area of Kyiv. The space itself is luminous: all the windows overlook a quiet green park, and the light freely streams through them. Because of the state of the building, a massive renovation of the flat was required. The process of dismantling revealed the rotten slabs and large cracks in the walls, and that flooring replacement is needed.
▼项目概览,Overall view
客户的愿景
The Client’s Vision
该项目的客户是一位对时尚有着真知灼见的年轻女性,因此这个围绕着美学而展开的项目完全是为了满足她在审美上的标准与要求。考虑到客户本人对巴黎的喜爱,设计团队试图重新创造一间复古风格的公寓。具体的解决方案并非浅显地复制“巴黎气质”,而是关注天然纹理,将柔软和坚硬的细部结合起来,最终营造出一种包含着微妙复杂性的整体氛围。
Our client is a young woman, a fashion insider with a strong vision. This project is all about aesthetics, so it was entirely designed to meet her requirements and standards of beauty. Our client is fascinated with Paris, so our target was to recreate a flair of a vintage apartment. Our solution was not to copy the “Parisian chic” tricks, avoiding the ornamental plaster and other obvious elements of direct quotation of this style. The focus was shifted to natural textures, a combination of softness and determined details, and an overall airiness, and nuanced sophistication instead.
▼客厅,Living room
▼设计关注天然纹理,将柔软和坚硬的细部结合起来,The focus was shifted to natural textures, a combination of softness and determined details
翻新
Renovation
设计团队基于结构现状对公寓进行了翻新,同时加固了楼板和墙壁。旧的木质内墙遭受过湿气和害虫的破坏,因此必须完全拆除。原有的镶木地板也被拆卸,替换为用混凝土浇筑的接合结构。此外,阳台区域的墙体通过特殊的连接件得到了加固,从而与建筑的框架紧密相连。
The state of the structure of the building made us renovate the apartment, and enhance the slabs and the walls. The old wooden inner walls were damaged by humidity and wood pests, so we had to remove them completely. The original parquet was also disassembled, and the floor was upgraded with a welded structure poured with concrete. Furthermore, we enhanced the balcony, and the walls were strengthened with special ties to pull together the frame.
▼玄关区域,Hall way
设计过程
Design process
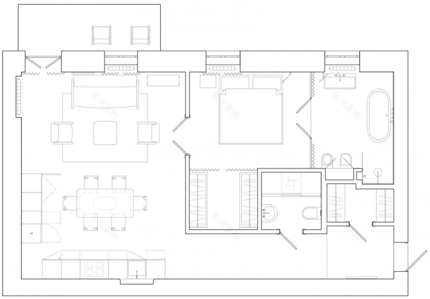
项目采用了久经考验的纵向交错式空间布局方案。因为公寓是单面的,设计者利用一条长且实用的走廊将入口衣柜、客人洗手间以及洗衣区容纳进来。厨房位于客厅的入口附近,其内部的独立橱柜带有冰箱和烤箱。这种将所有元素嵌入墙面单元的做法,使厨房成功脱离了当代住宅中的标准化方案。
▼平面图,Plan
We opted for the time-tested scheme of the space arrangement, which is an enfilade. Given that the apartment is one-sided, we decided to design a long and functional hallway, containing an entrance wardrobe, a guest restroom, and a laundry area. The kitchen is located near the living room entrance, and a cabinet with a refrigerator and an oven is a stand-alone element of this space. We managed to eschew the standardized modern solutions for the kitchen area when all the elements are built-in wall units.
▼开放式餐厅区域,The open dining area
▼餐厅家具细节,Dining area details
从客厅的双扇门可以看见卧室,浴室通过玻璃隔断与卧室分开。每个浴室空间均被设置在单个纵向空间的尽端,从而保证了整个起居区域的明亮度与宽敞度。同时,这些空间彼此之间形成连贯的关系,从视觉上扩展了公寓的大小。
The bedroom can be seen through the double door from the living room, and the bedroom and the bathroom are separated with a glass partition. There is always a private zone at the end of an enfilade, and this time the bathroom fulfills this role. Consequently, the whole living area turned out to be bright and roomy, and the enfilade principle makes one area open to another, creating a coherent space. The airiness visually extends the apartment.
▼从起居区望向卧室,View to the bedroom from the living area
墙壁
The Walls
墙壁表面涂抹以石膏,深层的纹理保持了原状。墙与天花板之间的转角被抹平——这种做法在基辅的旧式公寓中十分常见。
The walls were painted on top of plaster, with the deep texture being left as it is. The angle between walls and ceiling was smoothed out — this was a popular solution for the old flats in Kyiv.
▼墙与天花板之间的转角被抹平
The angle between walls and ceiling was smoothed out
地板
The Floor
虽然拆除了原先的镶木地板,但木地板仍然是整个室内空间的重要组成部分。设计团队为之找到了具有100年历史的橡木替代品,在工厂进行修复之后运输至现场,并按照人字形图案进行拼接。调色的工作是直接在公寓内完成的,旨在实现一种特殊的色调以突出地板自身的天然感和古旧感,同时保留时间带给它的痕迹。
We had to disassemble the original parquet, but a wooden floor still was an essential part of this interior. We found an authentic alternative, namely an oak parquet, which is about 100 years old. We did the restoration part at our facility and assembled the herringbone pattern in the apartment. The toning part was done in the flat right away. Our goal was to achieve a particular shade, and to highlight the naturalness and antiqueness of the parquet, leaving its marks of time — the imperfections — unaltered.
▼地面细节,Floor detailed view
门
The Doors
根据奥地利门的原始图纸,来自利沃夫的工匠用实木打造了公寓内的门。
Produced from solid wood, according to original Austrian door drawing, by the craftsmen from Lviv.
▼门细节,Detailed view of the doors
浴室
The Bathroom
浴室是公寓中的一个特别的地方。淋浴间的墙壁铺设着精心挑选的大理石,洗手池也采用了同样的材料。橱柜是按尺寸专门定制。洗手池上方的镜子是由项目团队设计和生产。浴室中的窗户是客户提出的要求之一。柜子放在镜子的正前方,使客户可以一边欣赏风景一边在早晨梳洗打扮。另一面大镜子位于浴缸上方,由利沃夫的工匠制作。浴室与卧室用玻璃板和柔软的薄纱隔开,可以在需要时变成一个连续的空间。浴室的墙壁和地面均采用微粒混凝土铺设。
The Bathroom turned out to be a special place in this apartment. The marble for the shower walls was picked with precision, the sink was manufactured from the same marble, and the cabinet was made to measure. The mirror above the sink was also designed at our studio and produced according to our drawings. The window in the bathroom was one of the special requests from our client. The cabinet is placed right in front of the mirror, so the client could do her morning beauty routine with a view. Another big mirror, produced by craftsmen from Lviv, is placed above the bath. The bathroom is separated from the bedroom with a glass partition and a soft tulle, creating a continuous space. The walls and the floor in the bathroom are made from micro concrete.
▼浴室和淋浴间,Bathroom and shower
▼洗手池和浴缸细节,Detailed views of the sink and the bathtub
细节
Details
位于衣橱内的条形窗户令人联想到旧住宅的设计方案。曾经,内部的房间均设有传统的采光窗,它们在该项目中得到了简化,作为走廊中的采光窗户而继续存在。
The elongated window in a wardrobe is one of the details which recall the historical design schemes. There used to be the light windows — the ones behind the inner rooms — in the houses back in the days. For this interior, we reinterpreted and simplified the traditional design of the frame. The minimalist shape is perfectly doing its thing, which is to create extra light in the hallway.
▼衣橱内设有条形窗(内外视角),There is an elongated window in the wardrobe (views from inside and outside)
厨房水槽上方的壁龛
The Wall Niche Above the Kitchen Sink
设计过程充分利用了公寓中的各种空间。从抹平檐口和天花板的过程中汲取灵感,设计者在厨房打造了一个流线型的壁龛,使空间看上去更具柔和感和氛围感。除了作为美学上的解决方案,壁龛还可以用来放置眼镜或工艺品,从而为厨房水槽区域的功能提供补充。
We always take full advantage of the space in our design process. While doing so, we ended up with a wall niche with streamlined angles, inspired by the process of smoothing out a cornice and a ceiling. Such angles make the room softer, adding to its special atmosphere. Apart from being an aesthetical solution, this wall niche is useful for storing glasses or home decor, as it is based just above the kitchen sink.
▼望向厨房壁龛,View to the wall niche
▼壁龛细节,Detailed view
檐口
The Cornices
用于安装窗帘的檐口是按照尺寸定制,其简约的设计与天花板和墙壁间的平滑角度保持了一致性。
The cornices for the curtains were made to measure. Their minimalistic design rhymes with the idea of the smoothed angles between the ceiling and the walls.
▼客厅窗帘,Curtain in the living room
石膏装饰
The Plaster
位于床头上方天花板的石膏元素成为公寓中最浪漫的细节之一,它使人联想到复古的装修风格,同时也展现了设计者对现代极简主义的一种重新思考。这个装饰元素是根据3D模型用石膏制作而成。
The plaster on the ceiling above the bed is one of the most romantic details, which brings the vintage interiors to mind. This is our hint on the classic plaster, reimagined in terms of modern minimalism. This decorative element was produced by hand from gypsum, according to our 3D model.
▼卧室,Bedroom
▼卧室细节,Detailed view
SEMEREY
Team: Rina Lovko, Daryna Shpuryk
Location: Kyiv, Ukraine
Total area: 80 sq.m
Implementation: 2022
Photo by Yevhenii Avramenko
Vintage Furniture
The marble table — vintage, Spain
The chairs — Ilmari Tapiovaara for Asko, 1960s
The armchairs — Denmark, 1960 (the frame is teak wood, the pillows are covered with velvet)
Living room wall scones — midcentury, Germany
The mirror — vintage, France
The dresser next to the bed — midcentury, Denmark
Furniture and Lighting
The sofa — Maisons du Monde
The wall scone near the bed – Lumina
The wall scone above the kitchen sink — Antonio Adjustable
The pendant above the dinner table — Warm Nordic, Bloom (1950)
客服
消息
收藏
下载
最近


































