查看完整案例

收藏

下载
Greenpoint位于布鲁克林最北端,地处Newtown Creek与East River交汇处。该社区有时被称为“小波兰”,在历史上由低层联排别墅组成,工业区则位于滨水空间,其中包括造船、制绳和石油提炼等种种排放有害物质的工业活动在内。该地的工业区将附近地区与East Rive隔绝开来。
Greenpoint lies at the northernmost tip of Brooklyn where Newtown Creek meets the East River. The neighborhood—sometimes called “Little Poland”—has historically consisted of low-rise townhouses with industry at its waterfront edges. The industrial border, which included shipbuilding, rope-making, and more toxic activities such as petroleum refinement, cut the neighborhood off from the East River.
▼项目及其基址鸟瞰,aerial view of the buildings and the site
2005年,Greenpoint和Williamsburg被规划并重新分区,本项目的地块以及北部和南部的街区被确定为新的住宅区——引入成对的30层和40层高的塔楼,包括正常市价和以及经济适用房(经济适用房占30%)。作为空间交换的一部分,这一新开发项目将开放通往East River及其沿线的交通流线。
As part of a sweeping rezoning of both Greenpoint and Williamsburg in 2005, our site and blocks to the north and south were identified as an area for new residential density—introducing pairs of thirty- and forty-story towers to include market-rate and affordable housing (30 percent of units to be affordable). In exchange, this new development would open access to and along the East River.
▼建筑外观概览,overview of the building exterior
场地位于Greenpoint的主要网格和垂直于Newtown Creek沿线次要网格的交界处。这个交汇点享有曼哈顿全景,但也切割了场地的西端,形成了一个梯形轮廓形状并限制了街区的大小。设计师面临的挑战是将所需数量的住房安置到一个似乎太小而根本无法容纳这些住房的社区基址中。
Our site sits at the conjunction of Greenpoint’s primary grid and a secondary grid that extends perpendicular to Newtown Creek. This hinge- point provides panoramic views of Manhattan, but also cuts the western end of the site, creating a trapezoidal outline and constraining the size of the block. Our challenge was to fit the desired amount of housing into a site and a neighborhood that both seemed too small to accommodate it.
▼由建筑看向河景,a view from the building to the river
分区允许的最大楼面面积为11,000平方英尺。设计师很快发现,项目所需的规模和建筑退台将导致两座塔楼之间只能留出40英尺的距离——这种令人不舒服的楼间距会破坏场地的发展潜力,并在周边形成一堵无形的墙。设计首先降低建筑的地面空间,留出60英尺的开放空间,这更接近于典型街道的规模。然后设计就可以战略性地扩展和收缩每个塔内效率最高的区域。
The zoning allowed for a maximum floorplate of 11,000 square feet. We quickly found that this scale and required setbacks would result in only 40 feet of separation between our two towers—an uncomfortable proximity that undermined the potential of the site and would create a wall from the neighborhood. We began by reducing their footprints to allow for 60 feet of open space, more akin to the scale of a typical street. We could then strategically expand and contract the towers for zones of maximum efficiency within each.
▼由河对面的公园看向建筑,a view from the park across the river to the building
▼由周边社区看向建筑,a view from nearby blocks to the building
两座塔楼相互倾斜和远离。较高的塔楼在上升时向东变宽,最大限度地扩大了视野,并为社区创造了一个引人注目的立面。较矮的塔楼如同较高塔楼的异卵双胞胎,向地面加宽,向北面的新海滨公园拓展。两座塔楼的形状构成了梯田和悬挑一般的结构,设计强调将它们连接在一起,好像它们是从一个街区分开的一般。如同一个金字塔及其倒置模型,这对建筑截然不同,但又由于它们之间的空隙而紧密相连。塔楼的阶梯形式和立面的清晰度调节了两座塔楼与现有社区之间不可避免的尺度对比。台阶将塔楼分成七到八层高的街区,与邻近建筑物的规模相呼应。
▼建筑形体生成,massing evolution
The two towers simultaneously lean into and away from one another. The taller tower widens toward the east as it rises, maximizing views and creating a dramatic face to the neighborhood. The shorter tower, a fraternal twin, widens toward the ground to face a new waterfront park to the north. The two towers are shaped to create terraces and overhangs that emphatically link them together as if they were broken apart from a single block. A ziggurat and its inverse, the pair are distinct yet intimately connected by the void between them. The stepped forms of the towers and the articulation of their facades mediate the inevitable contrast in scale between the two towers and the existing neighborhood. The stepping divides the tower into seven- to eight- story blocks that echo the scale of the neighboring buildings. The facade reinforces this subdivision.
▼建筑外观近景,close shot of the building exterior
当Avery的玻璃幕墙在旧金山拔地而起时,设计师在这里的提案力求体现坚固性。将8英尺 x 8英尺的大窗户整合到预制混凝土网格中,不但可以保持广阔的视野,也使单元内部和立面之间的复杂形势更容易协调。
While The Avery’s glass curtain wall was rising in San Francisco, our proposal here sought to embrace solidity. Incorporating large 8-foot-by-8-foot windows into a grid of precast concrete maintains expansive views while making the complex negotiations between unit interiors and facade easier to accommodate.
▼塔楼每层的平面方向不断变化,each floor of the tower alternates in orientation
▼塔楼每层的平面方向不断变化,each floor of the tower alternates in orientation
▼窗户近景,close shot of the windows
设计的坚固性创造了一组从社区中无缝地出现的建筑物。就像在Greenpoint的联排别墅中看到的瓦片外墙一样,预制板由一系列倾斜的平面雕刻而成。塔楼每块”瓦片”在方向上交替,以强调塔质量更精细的尺度——一种对太阳运动做出反应的动态浮雕。
The solidity also creates a set of buildings that emerge more seamlessly from the neighborhood. Much like the shingled facades seen on Greenpoint’s townhouses, the precast panels are carved by a series of angled planes. The shingling of each “block” of the tower alternates in orientation to emphasize the finer scale of the towers’ mass—a dynamic relief that reacts to the movement of the sun.
▼建筑外立面近景,close shot of the building facade
▼建筑外立面近景,close shot of the building facade
寻常的滨水塔楼通常最大限度地扩大其观景区,并在天际线内建立独特的、甚至是标志性的临街立面。这往往意味着远离社区,给社区创造一个“后”面,并使塔楼脱离其环境。在这里,一组悬臂将建筑物从其底部延伸了48英尺——面向东面朝向Greenpoint,并向社区展示了建筑最具戏剧性和代表性的立面。
Waterfront towers typically try to both maximize the views to the water and establish a distinct, even iconic frontage within the skyline. Too often that means turning away from the neighborhood, creating a “back” side and disengaging the tower from its context. Here, a set of cantilevers—extending the building 48 feet from its base—faces east toward Greenpoint and presents our most dramatic facade to the neighborhood.
▼由周边街道看向建筑立面,a view from street to the building facade
与Greenpoint作为家庭农场社区的田园起源相呼应,两层绿色空间向海滨开放。露台由一系列公共空间构成。在它们上方,塔楼由一座俯瞰曼哈顿天际线的桥梁相连。总而言之,Greenpoint Landing旨在成为一个生活平台:连接过去和未来、室内和室外、城市街景和海滨。
Echoing Greenpoint’s pastoral origins as a neighborhood of family farms, two levels of green space open to the waterfront. Terraces are framed by a collection of common spaces. Above them, the towers are linked by an amenity bridge looking over the Manhattan skyline. Altogether, Greenpoint Landing aims to be a platform for living: connecting past and future, indoor and outdoor, urban streetscape and waterfront.
▼俯瞰露台,look down to the terraces
▼露台鸟瞰,bird eye view of the terraces
▼大堂,the lobby
▼由室内看向河景,a view from the interior to the river
▼大楼内的公共空间,public space in the building
▼大楼内的自习室,study room in the building
▼公寓室内空间概览,overview of the apartment’s interior
▼大堂夜景,night view of the lobby
▼入口夜景,night view of the entrance
▼露台夜景,night view of the terraces
▼露台夜景,night view of the terraces
▼建筑外观夜景,night view of the facade
▼项目外观夜景,night view of the project
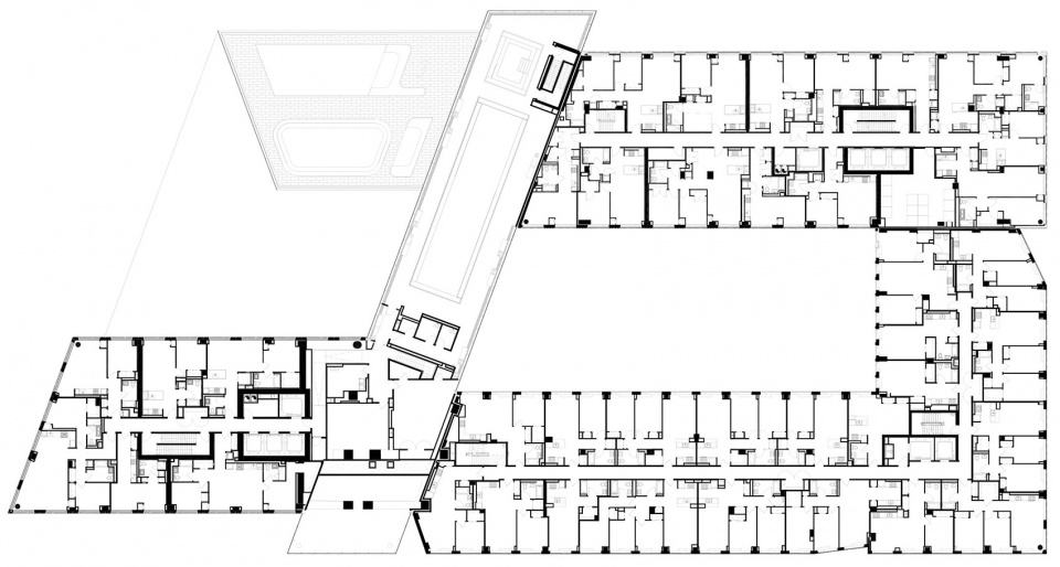
▼一层平面图,ground floor plan
▼三层平面图,second floor plan
▼七层平面图,sixth floor plan
▼八层平面图,seventh floor plan
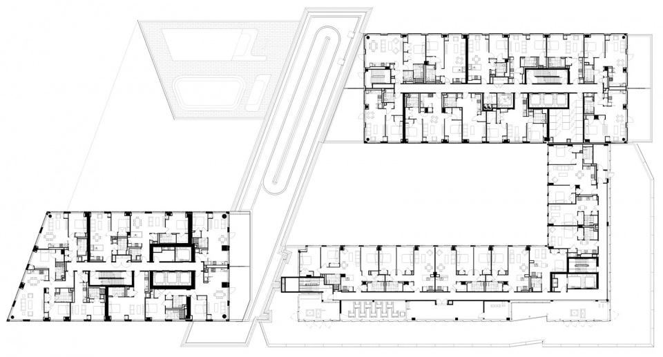
▼二十二层平面图,twenty-first floor plan
▼三十七层平面图,thirty-sixth floor plan
▼剖面图,section
Lead Design Architect: OMA New York
Partner-in-Charge: Jason Long
Project Architects: Yusef Ali Dennis, Christine Yoon
Team: Remy Bertin, Jingyi Bi, Sam Biroscak, Titouan Chapouly, Ken Chongsuwat, Marie-Claude Fares, Yashar Ghasemkhani, Anders Grinde, Wesley LeForce, Chong Ying Pai, Nathan Petty, Andres Rabano, Laylee Salek, Alan Song, Wo Hong Wu, Soojung Yoo, Steven Young, Juan Pablo Zepeda
Executive Architect: Beyer Blinder Belle Architects & Planners LLP Unit Interior Designer: Beyer Blinder Belle Architects & Planners LLP Landscape Architect (Waterfront): James Corner Field Operations Landscape Architect (Building): Marmol Radziner
Amenities Interior Designer: Marmol Radziner
Structure: DeSimone Consulting Engineers
MEP and LEED: Cosentini Associates
Façade: Thornton Tomasetti
Lighting: Focus Lighting
Acoustics: Cerami Associates
Civil: Langan Engineering
Wayfinding and Signage: MTWTF
Marine Engineering: McLaren Engineering Group
客服
消息
收藏
下载
最近









































