查看完整案例

收藏

下载
我们赖以生存的土地是一种不代替的资源,在很多城市与社区,人口的增长让住宅空间变得更加紧缺。这是因为,尽管城市规划与建设中大部分决策都是正确的,但是任然存在着诸多不合理的地方,以德国举例,平均来说大部分人享有足够的生活和工作空间,但是这些现有的空间仍有改善进步的余地。越是经济繁荣的定居点对居住空间的需求越高。但是由于当地经济体制的限制,可用土地往往会受到不断的投机和相应的价格驱动。自1962年以来,德国联邦统计局一直在记录本国建筑用地价格的发展:到2017年,建筑用地价格相较之前已经上涨了238%。土地价格越来越贵,建筑成本也随之上涨。
The land we live on is a non-replicable commodity. In many cities and communities, space for housing is becoming scarce. This is because, despite the correct statement that our cities are largely built, i.e. on average in Germany there is enough living and working space available, this existing space is often not in the right place. Especially in economically prospering settlements, living space is needed. Due to the local economic system, the available land is subject to constant speculation and the associated price driving. Since 1962, the Federal Statistical Office has been recording the development of building land prices in this country: by 2017, there was an increase of 2,308 percent. Land prices are getting more expensive, and with them construction costs.
▼项目概览,overall of the project
疫情开始以来的这段时间还表明,我们需要从根本上重新思考我们生活空间的结构配置。毕竟,现代主义建筑曾提出将生活空间划分为“生产”和“消遣”,即一方面是工作,另一方面是娱乐。如今的大环境则证明了这种划分既不是特别切实可行的,也不是在任何地方和任何时候都能一直保持下去的。此外,日益拥堵的交通状况也进一步质疑了现代主义观点的合理性。如今人们需要的住宅楼层规划应该能够容纳不同类型的生活。住宅的设计必须能够适应居住者各自的需求,并能够根据人们的生活阶段调整与发展。灵活的楼层规划能够让人们在同一个地方居住更长的时间,即使当人们开始组建家庭、家庭规模发生变化,甚至是改变自身的生活模式或社交模式时,也能够安心地继续生活在这里。
The period since the start of the covid pandemic has also shown that we need to fundamentally rethink the structural configuration of our living spaces. After all, architectural modernism had proposed dividing the spaces of our lives into production and reproduction, that is, work on the one hand and recreation on the other. Now it is becoming apparent that this division is neither particularly practicable nor can it be maintained everywhere and at all times. This principle must also be called into question in view of the traffic flows that are developing. But this requires floor plans that allow for different types of living. Our dwellings would have to be designed in such a way that they can be adapted to the respective needs of their occupants, adapted according to the phase of life and adjusted again and again. In this way, flexible floor plans could make it possible to stay in one place, even if one starts a family, the family grows larger and becomes smaller again, or enters into another form of living and residential community.
▼沿街视角,street view
在斯图加特南部、临近Heslach瀑布的山坡上,VON M事务所发现了一块仍然开放的土地,这种土地在这个城市已经非常罕见。由于该地块的地势向南陡然上升,因此长期以来都被认为是无法建造的。然而建筑师却在这里成功地创造出两栋几乎相同的住宅,且建筑的平面都接近正方形。设计结合了场地东侧建筑的屋檐高度与进深,并将其作为本项目建筑尺度的依据。由于场地的坡度较大,建筑必须下挖到地下三层,因此大部分的建筑结构必须用混凝土建造,以保证总体的稳固与内部空间的舒适。为了降低规划和建设成本,VON M事务所开发了一系列具有极简风格的预制混凝土拼接单元,这些混凝土构件同时也成为了本项目的代表性元素,使两栋公寓楼变得与众不同。
In Stuttgart South, on one of the Heslach slopes, the VON M office has found one of those still open plots of land that are becoming so rare in the city. Because of its topography, on a slope that rises sharply to the south, it was long considered almost impossible to build on. The architects have developed two almost identical houses, each with an almost square floor plan. The design incorporates both the eaves height of the neighboring house to the east and its building depth as a scale-setting element. Since the building had to dig up to three stories into the ground due to the extreme slope of the site, it was quickly determined that a large part of the house would have to be built in concrete. To keep planning and construction costs low, VON M developed a catalog of simple details and joints using precast concrete elements that now characterize the entire duplex.
▼立面细部,details of the facade
▼建筑与山体之间形成私人庭院,
private courtyard formed between the building and the hill
从街道上看,两栋半独立式住宅宛如一对双胞胎:小小的花园前院、宽阔的落地大窗、底层的入口凉廊以及顶层的小露台,再加上预制混凝土元素构成的空间节点。落地窗和露台前的格子栏杆强调出预制结构的工业特征。以上所有元素的布置都遵循了街道的坡度,每栋住宅的建筑构造均巧妙地融入周围环境,彰显出设计的严谨与精心。
From the street, both parts of the semi-detached house appear like identical twins: small front gardens, floor-to-ceiling large window openings, recesses for entrance loggias on the first floor and small terraces on the top floor, plus the joint pattern of the precast concrete elements. The industrial character of the prefabrication is emphasized by the lattice balustrades in front of the French windows and terraces. All of this follows the gradient of the street, the joints of the respective building components blend finely into the system and bear witness to the careful detailed planning.
▼住宅楼底层入口,entrance of the ground floor
▼门廊,entrance porch
秉承着生态环保的意识,以及控制建筑二氧化碳排放的目标,建筑师在这栋由坚固的混凝土外壳定义的公寓楼中置入了灵活的内部布局,其目的旨在扩展建筑的内部空间、实现不同的楼层规划,为适应建筑未来的发展做准备。为实现这一目标,建筑师构想出一套能够满足不同功能需求的十字形平面布局方案,不同内部区域之间由浅色窗帘、木隔板或橱柜分隔。从平面上看,即使没有实体墙作为分隔,但是不同的木地板肌理也揭示出不同的分区,形成了微妙的柔性空间划分。这种设计策略不仅满足了两栋住宅居住者的需求,还能够允许居住者在未来自行改变室内的布局,以迎合他们生活状态与环境的变化。
▼分析图,diagram
Aware of the difficulties of the building material with regard to its CO2 emissions, the architects then developed a flexible interior for the robust concrete shell with the aim of enabling different floor plan variants in the extension, which would also allow conversions in the future. To this end, they established a cruciform floor plan scheme that allows for different options of interior space joining with light curtains, wooden partitions or cabinets. Even if the respective places in the floor plan are not occupied by a wall, wooden strips embedded in the floor indicate the scheme and provide subtle zoning of the rooms. This not only ensures that the actual floor plan variants in both houses are adequate for the respective residents, but also that the residents can still make changes in the future that correspond to the changes in their respective living circumstances.
▼入口庭院作为街道公共空间与住宅之间的过渡,courtyard serves as a transition between the street’s public space and the house
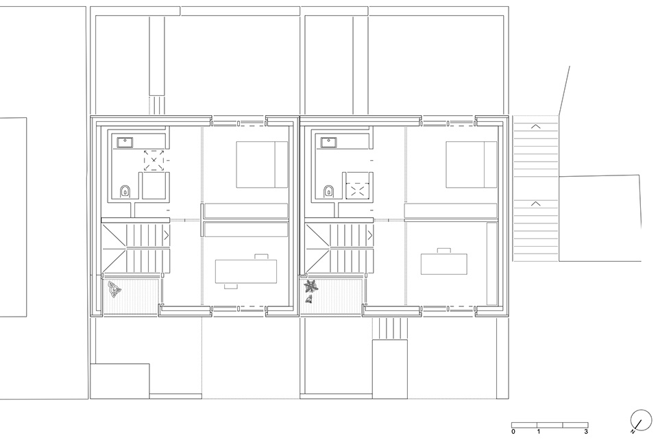
空间的排布逻辑循序渐进,从街道公共空间到住宅生活区,然后依次向上到私密区。位于街道和建筑之间的小前院宛如一个空间过滤器,结合了露台、车道、花园,以及垃圾桶栏杆的功能。住宅底层设有一间多功能用房,它既可以作为自行车库,也可以作为工作间或客房使用。楼梯下方设有两间储藏室和一间客房卫生间。楼梯井一侧留出了一处与建筑等高的空间,如有需求,未来可将此处改造为电梯。建筑外观的工业美学在楼梯这里得到了延续:除了采用预制混凝土梯段外,设计还采用了常见的工业格栅作为楼梯护栏与扶手。
Following a logical sequence towards more privacy, the rooms develop from the public of the street into the house and there successively upwards. Like a spatial threshold, a small forecourt is inserted between the street and the house, which is a terrace, driveway, front garden and garbage can enclosure in equal measure. On the first floor there is an all-purpose room, which could be a parking space for two-wheelers as well as a workplace or guest room, two storage rooms on the slope side and a guest toilet. The staircase is accompanied by an almost house-high air space, which can be retrofitted with an elevator at a later stage if necessary. The aesthetics of the exterior are continued here unbroken: Concrete and the already familiar industrial grilles for parapets and handrails.
▼从底层楼梯看多功能用房,
viewing the all-purpose room from the staircase
踏上楼梯,来到于二层的开放起居室,厨房区域紧靠楼梯间隔墙,目前厨房也采用了开放的形式,如有需要可用现有的木制隔墙与其余空间分隔。这种设计使包括厨房与餐厅在内的整个楼层成为了一处可渗透的生活空间,且空间南北通透,从沙发和扶手椅看去,两侧均是与外界直接相连的落地窗。此外,两栋住宅面向山体的一侧均设有庭院露台,露台嵌入山体之中,作为私人户外空间,完全屏蔽了来自街道与邻居的视线。
From here, one enters an open living area on the 1st floor, which can be separated by a wooden wall in the direction of the kitchen on the slope side, but is currently open. Thus, the entire floor as a permeable living space including kitchen with dining area, couch and armchairs on both sides with windows connected to the outside space. Towards the slope, both houses have small courtyards with enclosures that dig into the slope as private outdoor spaces and do not allow views from the outside.
▼开放的起居室,the open living area
▼厨房与餐厅,kitchen and dining
再上方的楼层依旧可以被视为一处完整的开放式平面空间,空间四周由坚实的混凝土墙体围合保护,内部则由轻盈柔软的窗帘分隔,进而可以变身为两间独立的卧室。此外,这一层中还设有一间浴室,西侧的双人间则配备了一扇大圆窗,看起来像是在以诙谐的方式向OMA的“波尔多住宅”致敬。最顶部楼层秉承了相同的空间布局,临街空间目前是一间开放的工作室,辅以一间额外房间和另一间浴室。此外。顶层还拥有一处小型的屋顶露台,从这里可以俯瞰周边街区住宅的屋顶。两栋住宅中,巨大的落地窗一次又一次地将山腰的绿意或城市的景色框起来,为居住者提供了令人惊叹的景观视野体验。
The floor above could also be used as a complete area, but could just as well result in a compartment spatially enclosed by a wall and one optically separated by a curtain – or be executed with two classical rooms. In addition, there is a bathroom, which in the western twin is equipped with a large round window that looks like a tongue-in-cheek homage to OMA’s Maison à Bordeaux. The top floor is structurally the same: Here, the street-facing space is currently an open studiolo, supplemented by a room and another bathroom. In addition, there is a small roof terrace from which the view extends far over the roofs of Heslach to the Hasenberg. The views, in fact, are amazing: Again and again, the large, floor-to-ceiling windows frame the views into the greenery of the mountainside or out to the city.
▼三层空间概览,overall of the second floor
▼室内空间由轻盈柔软的窗帘分隔,the interior spaces are separated by light, soft curtains
▼卧室,bedroom
▼浴室与圆窗,bathroom and the round window
多功能、灵活的平面布局在坚实的建筑体量中创造出流动的空间氛围,使建筑的混凝土墙体与屋顶如同“保护壳”一般包裹着住宅的内部。目前这两栋四层住宅均由家庭居住使用,在未来,它们则有可能成为老年公寓,或将单独的楼层划分出来作为祖母的公寓等。建筑师认为,“生活”是人们活动的总和,而“住宅”则应作为城市空间的逻辑延续,为人们提供合理的占用方式,并迎合人们未来不断变化的需求。通过这种方式,这两栋住宅不仅激活了城市中难以使用的土地,同时也充分发掘出自身的空间潜力,时刻准备着满足未来变化的需求。
The versatile, flexible floor plan variations create a kind of fluid core within the robust construction, which wraps itself around the interior of the house like a protective shell. It is conceivable that the four-story houses, each currently occupied by a family, will one day be used by retirement communities or that individual floors will be separated off as granny apartments. Living is conceived here as the totality of our activities, to which the spaces of the house, as a logical continuation of the spaces of the city, grant an appropriate option of appropriation and variation. In this way, the two houses not only activate a plot of land in the city that is otherwise difficult to use, but also make its use by the inhabitants possible in a constellation not yet defined today in an unwritten future.
▼顶层空间入口,entrance of the top floor
▼顶层空间目前作为开放式的书房使用,the top floor space is currently used as an open-plan study
▼由顶层露台看室内书房,viewing the interior study from the top terrace
▼总平面图,site plan
▼底层平面图,ground floor plan
▼二层平面图,first floor plan
▼三层平面图,second floor plan
▼顶层平面图,top floor plan
▼立面图,elevations
▼剖面图,section
客服
消息
收藏
下载
最近




























