查看完整案例

收藏

下载
该项目是一座位于柏林北部Uckermark地区的周末别墅,是为一个平时喜欢接待亲友的小家庭而设计。这座房子不仅让房主得以体验乡村生活,还提供了享受附近森林与湖泊的机会。
▼视频,Video
Das Glashaus is a weekend House in Uckermark north of Berlin. It’s designed for a small family with plenty of guests. The house offers a chance to spend time in the countryside and enjoy the nearby preserved forest and lakes.
▼项目外观,Exterior view
▼弧形墙壁,The curved wall
▼近景,Close-up view
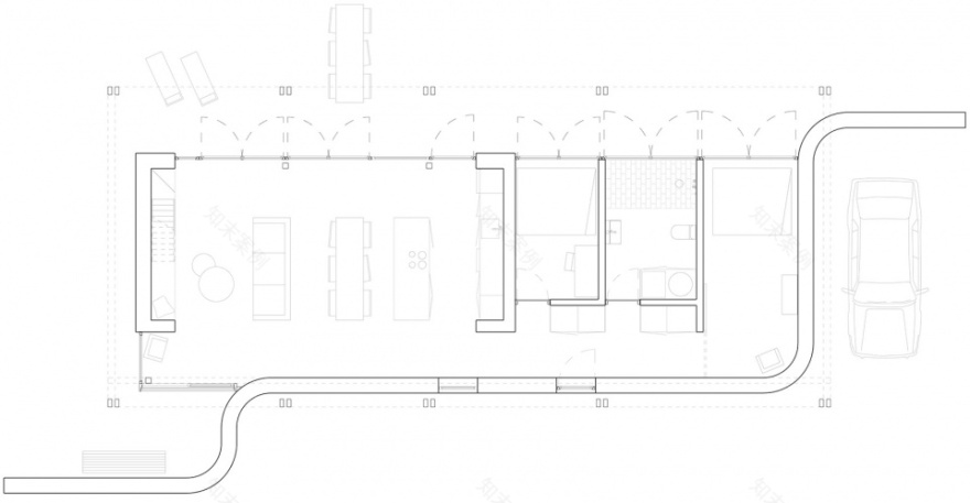
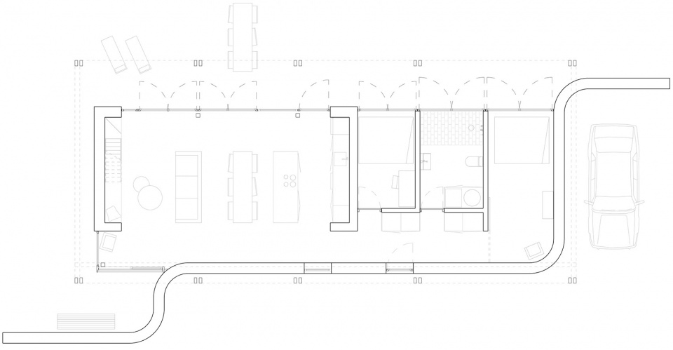
房子的平面布局十分简单,亮点是一道弧形的墙壁,起到隔离道路的作用。每个房间都可以望见西侧的开阔景观,并且与带顶的露台相连接。卧室沿着立面设置,因此可以同时从住宅内部或户外露台进入。同样地,淋浴间也可以由户外直接到达。当一排玻璃门开启时,卧室和淋浴间就像是沿着带顶露台而设置的壁龛。
The house has a simple floor plan with a curved wall that creates privacy towards the road. All rooms overlook the open landscape to the west and have access to the large covered terrace. The beds are positioned along the facade so they can be accessed both from the inside and directly from the terrace. Likewise the shower can be reached directly from the outside. When the long row of glass doors is open, the small bedrooms and shower feel like alcoves along the covered terrace.
▼西立面,West facade
▼门廊,Porch
▼卧室,Bedroom
▼浴室,Shower
楼梯和厨房位于一个由混凝土砖建造的坚实体块中,并为主要的起居空间提供了框架。弧形的石墙在东侧凹进,创造出一个小的庭院,在迎接清晨第一缕阳光的同时,还能躲避风的干扰。
The staircase and the kitchen block are built into solid volumes of concrete bricks that frame the main living space. The curved stone wall is recessed towards east to create a small court for the first rays of morning sun protected from the wind.
▼客厅,living room
▼楼梯近景,Staircase detailed view
▼餐厨空间,Kitchen and dining area
▼走廊,Corridor
▼弧形的石墙在东侧创造出一个小的庭院,The curved stone wall is recessed towards east to create a small court
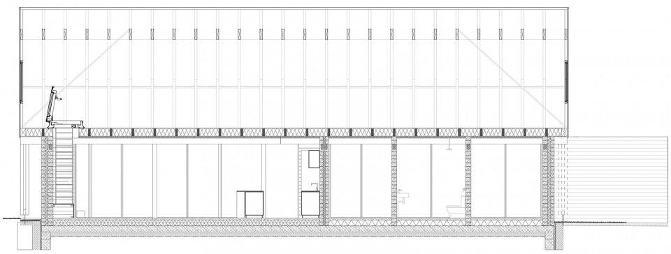
屋顶的木制结构在二层形成了一个“温室”,开敞而明亮的空间被用作创意工作室,同时也是一个享受风景和阳光的好去处。床、工作桌和浴缸让这个温室在春季和秋季变成一个景色绝佳的空间:屋顶的西侧表面完全以玻璃覆盖,从这里可以看到绿植密布的山谷和日落;东侧表面采用了聚碳酸酯,随着太阳的移动,将呈现出壮观的光影和色彩变化。在这里,每一天都能获得新的体验。
▼视频,Video
The wooden structure of the roof forms a green house on the first floor. It contains a large and bright space that functions as a studio for creative work and a great place to enjoy the view and daylight regardless of the changing weather. A bed, a working table and later a bathtub turn the greenhouse into a spectacular space during Spring and Autumn. Towards west, the entire roof surface is glass so the view over the green valley and sunset can be experienced from inside. The eastern slope of the roof is polycarbonate that creates a spectacular play with light, shadow and changing colors as the sun moves over the house. Every day is a new experience.
▼屋顶视角,View from the upper floor
▼屋顶的木制结构在二层形成了一个“温室”,The wooden structure of the roof forms a green house on the first floor
▼屋顶两侧采用不同材质的表面,Different material surfaces on both sides of the roof
▼屋顶的西侧表面以玻璃覆盖,Towards west, the entire roof surface is glass
▼屋顶结构细节,Wooden structure detailed view
▼屋顶的东侧表面以聚碳酸酯覆盖,带来独特的光影体验,The eastern slope of the roof is polycarbonate that creates a spectacular play with light
▼夕阳下的屋顶,The green house in the sunset
在温暖的季节里,室内和室外空间通过花园立面上的窗户共同生长。得益于弧形的墙体和花园的绿色树篱,住宅的内部空间看上去仿佛与花园融为一体。在冬季,这座布局紧凑的住宅将变成一个舒适又温馨的地方,居住者可以透过多个全景窗户去感受景致和光线的变化。顶部的温室则提供了额外的功能,在暖阳或凉风中,为居住者带来不同的体验。
In the warm seasons, interior and exterior spaces grow together through the many openings on the garden facade. The interior of the house appears to merge with the garden defined by the curving wall of the house and green hedges of the garden. In the winter, the compact insulated one storey house becomes a cozy and intimate place to withdraw and see the landscape and changing light through the panoramic windows. The green house upstairs is an extra feature that can be used when the sun has warmed it up, or the wind has cooled it down.
▼窗景,The framed view
▼屋顶鸟瞰,Rooftop view
▼傍晚视角,The house at dusk
▼一层平面图,Plan
▼屋顶平面图,Plan roof
▼西立面图,West facade
▼东立面图,East facade
▼北立面图,North facade
▼剖面图,Section
Location: Uckermark, Brandenburg, Germany.
Size: 113 m2 + 70 m2 greenhouse
Completion: 2022
Credits:
Architekt: Sigurd Larsen
Link:
Instagram:
Photographers for images and drone movies:
Tobias König and Michael Romstöck
Links:
,
客服
消息
收藏
下载
最近



































