查看完整案例

收藏

下载
Rijnstraat 8号前身为荷兰住宅空间计划及环境部 (VROM) 的办公大楼,大楼于1992年竣工,代表了当时最前沿的办公建筑类型。建筑中央的中庭可作为温室,将外界环境引入建筑内部,可谓是当时可持续发展建筑的典范。如今,这座设计于20世纪80年代的建筑已不再能满足当代办公空间对灵活性和开放性的需求。因此,在与原建筑师Jan Hoogstad的合作下,由BAM、ISS和OMA组成的PoortCentraal,以公私合作的形式,为大楼进行了基于现有建筑质量的综合改造。
▼大楼与周边城市环境概览,
aerial view of the project
Upon its completion in 1992, Rijnstraat 8, the former Ministry of Housing, Spatial Planning and the Environment (VROM) building represented both an innovative office typology – its atriums served as conservatories: the outside brought inside – and a leading example of sustainability. Today the building, designed by in the 1980s, no longer offers the flexibility and openness required of a contemporary office space. In collaboration with the original architect, Jan Hoogstad, and in the context of a Public Private Partnership under the name of PoortCentraal (consisting of BAM, ISS and OMA), OMA has developed an integrated concept for the building based on a renewal of its existing architectural qualities.
▼外观概览,exterior overall view
Rijnstraat 8号的改造可谓是荷兰政府办公设施新总体规划的第一次大规模实施,该规划涉及了政府组织架构及其房地产投资组合的重大变革,其目的旨在提高政府办公空间的设计、建造、融资、维修和运作的效率。
The transformation of Rijnstraat 8 is the first large-scale implementation of a new masterplan for the Dutch government’s office accommodation, which proposes major changes in the organizational structure of the government and its real estate portfolio, aiming at greater efficiency in the designing, building, financing, maintenance and operations of governmental office space.
▼由自行车棚一侧看建筑,viewing the building from the bike shed side
▼大面积的玻璃增强了建筑内部空间与城市之间的视觉联系,large areas of glass enhance the visual connection between the interior space and the city
▼立面细部,
details of the facade
Rijnstraat 8将两个政府部门以及两个政府组织汇聚于同一屋檐下,包括:外交部 (BZ)、基础设施和水管理部 (IenW)、移民和归化局 (IND),以及寻求庇护者接待中央机构 (COA)。除了具有高灵活性的工作空间外,大楼还提供了充足的会议空间,可谓是海牙所有部委的会议中心。
▼大厅,interior hall
▼独立会议空间,independent meeting space
Rijnstraat 8 brings together two ministries and two governmental organizations – Ministry of Foreign Affairs (BZ), the Ministry of Infrastucture and Water Management (IenW), the Immigration and Naturalization Service (IND) and the Central Agency for the Reception of Asylum Seekers (COA) – in a single building with flexible working spaces. The building’s congress facilities act as a meeting center for all ministries in The Hague.
▼由非正式会议空间看中庭,viewing the central conservatory space from the floor
▼空间细部,details of the space
▼休闲空间与醒目的电梯扶手,leisure space with eye-catching lift handrails
▼顶层休闲空间,top floors
OMA事务所的设计使建筑与海牙城市建立了新的联系,全新的大型玻璃幕墙在视觉上将其与城市连接起来,而全新的底层架空通道则可以作为公共广场,在功能上将建筑与城市相连,从底层通道看,Rijnstraat 8号大楼的所有主入口都一目了然。
OMA’s design gives the building a new relation to the city of The Hague, connecting it to the city, both visually through a large new glass facade, and functionally through the creation of a new, enlarged passage that acts as a public square, from which the main entrances to Rijnstraat 8 are clearly recognizable.
▼新建的底层通道,new, enlarged passage that acts as a public square
▼底层餐饮空间,bar/cafe on the ground floor
▼休闲座位区,relaxing seating area
▼通透立面将室内向城市开放,
the transparent facade opens the interior to the city
开放式办公的理念有助于梳理建筑的内部交通流线。一条贯穿整个建筑的新走道改善了人们在大楼中的方向感,并使每个楼层都享有广阔的城市景观。“温室”中庭被行政广场以及一系列双层通高的办公空间所包围,形成了各种会议和工作空间,旨在鼓励更加灵活、需求更少办公空间的工作方式。
The introduction of open plan offices helps reveal the building’s internal processes. A new walkway running the entire length of the building improves one’s sense of direction and provides each floor with a view to the city. The central conservatory space, surrounded by administrative squares and office landscapes on double height floors, enables a variety of meeting and work spaces and facilitates flexible ways of working which require less office space.
▼中庭立面,interior elevation of the central conservatory space
▼中庭被行政广场以及一系列双层通高的办公空间所包围,
the central conservatory space, surrounded by administrative squares and office landscapes
▼楼梯入口,entrance of the staircase
▼仰视中庭,looking up to the skylight
▼办公区,office area
▼办公区细部,
details of the office area
在项目过程中,通过改造与翻新的相互结合,新材料的使用被降至最低:只有20%的原建筑部分被拆除,而其中99.7%的材料均得到了重新利用。此外,通过使用三层玻璃、太阳能电池板、LED灯,以及储热储冷设施,建筑的能源消耗已得到显著降低。
In the process, a combination of renovation and transformation, the use of new materials has been minimized: of the 20% of the building that was demolished, 99.7% has been reused. Energy consumption has been significantly reduced through the application of triple glass, the use of solar panels, LED lights and a heat and cold storage.
▼会议中心,conference center
▼会议室,meeting room
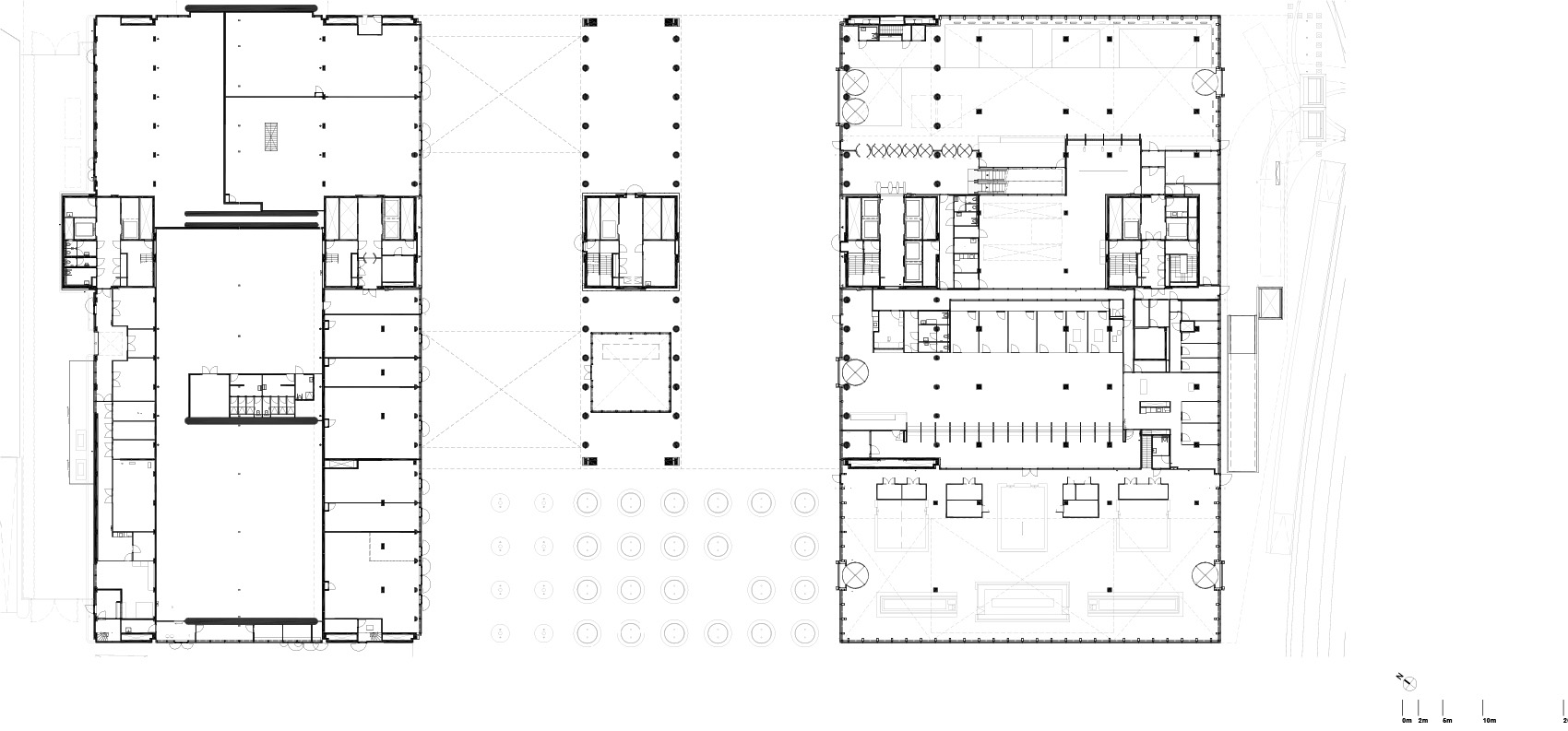
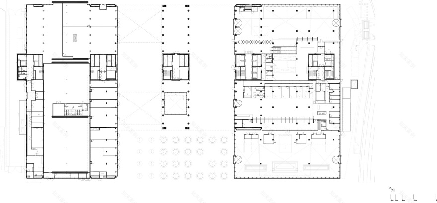
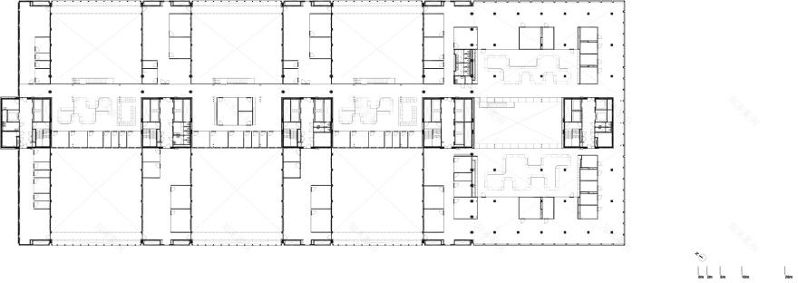
▼底层平面图,ground floor plan
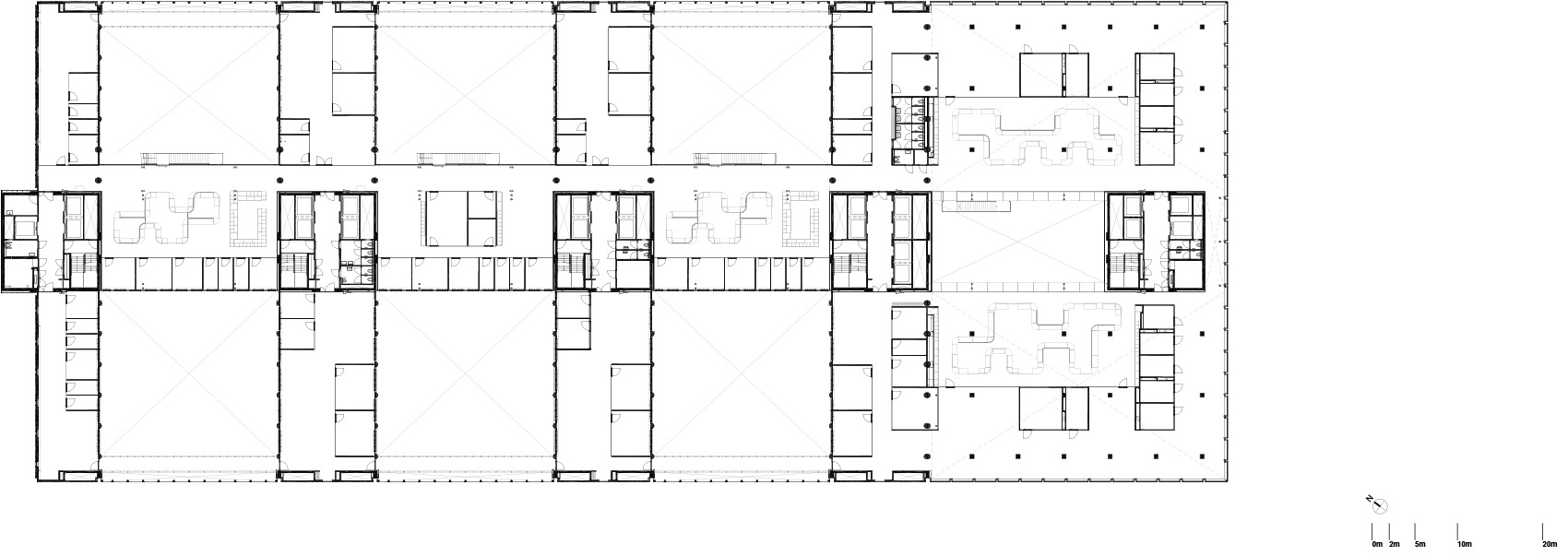
▼四层平面图,fourth floor plan
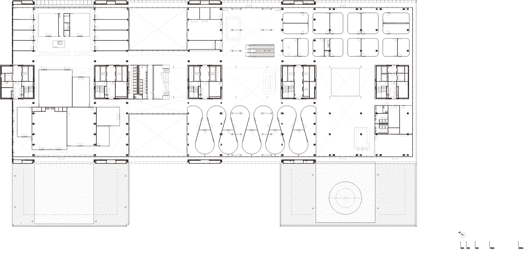
▼八层平面图,eighth floor plan
▼剖面图,sections
Status: Completed
Client: Rijksvastgoedbedrijf, The Hague, NL
Location: The Hague, Netherlands
Site: Adjacent to The Hague Central Station
Project: Renovation of former VROM building.
Program: Ministry of Foreign Affairs (BZ), Ministry of Infrastructure and the Environment (IenM), Immigration and Naturalization Service (IND), Central Agency for the Reception of Asylum Seekers (COA).
Total GFA 100.000 m2: offices 59,400 m2; meeting centre 7,500 m2; lobbies 6,500 m2; restaurant 1,600 m2; retail 3,800 m2; parking (ca. 170pp + 40 VIP) 9,800 m2; bicycle parking 1,200 m2; expedition / storage / technical spaces 10,200 m2
Partner in charge: Ellen van Loon
Team: Bart Nicolaas, Anita Ernodi, Alex de Jong, Kees van Casteren, Airat Khusnutdinov, Alain Fouraux, Alexander Giarlis, Betti Ng, Jan Barta, Buster Christensen, Dominic Black, Edward Nicholson, Eric Lee, Lauren Potter, Hans Larsson, Hongchuan Zhao, Lei Mao, Gemawang Swaribathoro, Magdalena Stanescu, Mario Rodriguez, Matthew Davis, Nikki Mulder, Pawel Panfiluk, Saskia Simon, Sunkyu Koh, Yangwen Huo, Danny Rigter, Ido de Boer, Jasper van Amstel, Maya Turre, Paloma Bule, Stefan Wolf, Theodora Papanastasiou, Tjeerd van de Sandt, Vitor Oliveira, Will Hartzog
Collaborators Structural engineer: ARUP, BAM A&E, Bunnik, NL
Service engineers: Valstar Simonis, Rijswijk, NL / BAM Techniek, Bunnik, NL
Building physics / fire safety / security: DGMR, Arnhem, NL
Acoustics: Level Acoustics, Eindhoven, NL
客服
消息
收藏
下载
最近




































