查看完整案例

收藏

下载
深圳南山外国语学校科苑小学是一座近20年历史的学校,地处深圳头部科技公司总部林立的南山区粤海街道核心区域。随着越来越多的科技公司子弟慕名入读这所学校,社会对于学校教育功能的要求也越来越高。学校当年建设时的硬件标准与今天高知背景家庭对学校的要求之间存在着现实的差距,尽管近年刚进行过一次小规模的扩建,但仍然没能完全解决这些缺口。
在这样的背景下,区里决定对学校再进行可能是最后一次的改扩建。所谓最后一次,是因为学校周边已不再有新的用地,本次改扩建将是这个学校最后一次的升级机会。将原来36班的小学扩建为一个符合学校中长期使用需求的54班学校。
Shenzhen Nanshan Foreign Language School Keyuan Primary School has been established for nearly 20 years. It is located in the core area of Yuehai Street, Nanshan, where there are many headquarters of Technology Companies. With more and more children enrolling in this school, the society has higher and higher requirements for the educational function of the school. There is a real gap between the hardware standards of the old school and the requirements of today’s highly knowledgeable families. Although a small-scale expansion has just been carried out in recent years, these gaps have not been completely solved.
Under such a background, the district has decided to carry out another reconstruction and expansion of the school, which may be the last. The so-called last time is because there is no new land around the school, and this reconstruction and expansion will be the last opportunity to upgrade the school. The original 36 class primary school will be expanded into a 54 class school meeting the long-term needs of the school.
▼项目概览,Overall view
经过调研,我们发现学校最大的缺口并不是简单的班级数量,而是配套教学功能和公共教学空间的欠缺。我们对于任务书的制定使用了减法逻辑,求出学校的发展目标与现状之间的差值,这将是我们在这个小地块上需要完成的“小目标”。结果是,和一个标准学校的设计工作很不一样,在一个教学组团里,既需要普通教室、专业教室,又需要图书馆,风雨操场,食堂,还有因为校方出于对冲片区高房价对教师人才吸引力的考虑,提出的教工宿舍需求,所有这些全部要整合在这一栋教学楼里面。
According to the research, we found that the biggest gap of the school is not simply the number of classes, but the lack of supporting teaching functions and public space. We used simple subtraction logic to formulate the assignment. That is to find out the difference between the development goal and the current situation of the school. As a result, it is very different from the design work of a standard school. In a teaching cluster, we need not only ordinary classrooms and professional classrooms, but also libraries and playgrounds, as well as the demand for teachers’ dormitories to reach the attraction of high housing prices to teachers and talents in the area. All these need to be integrated into this teaching building.
▼从操场一侧鸟瞰,Aerial view from the sports field
这样一个典型的既要又要还要的任务书给设计带来了很大的挑战。但是,反过来,这个复杂的要求也为我们提供了一个契机,使得这栋教学楼的扩建区域功能组织上更加复合,空间上也更加灵活多义。这个项目天生就会和那些按照既定标准化的学校建设指引限制下出生的学校不同。他拥有完全不同的基因。
Such a typical mission brings great challenges to the design. However, in turn, this complex requirement also provides us with an opportunity to make the expanded area of this teaching building more complex in terms of functional organization and more flexible in terms of space. This project will naturally be different from those students born under the restrictions of the established standardized school. He has a completely different gene.
▼主入口-校园像书一样打开,Main entrance – the campus is opened like a book
设计本身因为用地面积有限而不可避免的走向立体化,但我们不希望将建筑功能单纯的在垂直方向上进行叠加,而是通过对功能的有机整合,向内构建了一个花园,消解周边建筑体量带来的压迫感的同时,营造一处窗外有自然,门外有乐园的校园空间。在此基础上通过进一步创造一种疏松多孔的空间结构,提供了灵活的室内外学习空间,并回应当地气候,探索一种新的校园空间类型以适应和引领当下不断更新的教学方式。
The design itself inevitably tends to be vertical because of the limited land area, but we do not want to simply superimpose the architectural functions in the vertical direction, instead, we build a garden inwards, through the organic integration of functions, eliminate the pressure brought by the surrounding building volume, and create a campus space with nature outside the window. On this basis, by further creating a loose and porous space structure, it provides a flexible indoor and outdoor learning space, responds to the local climate, and explores a new type of campus space to adapt to the updated teaching methods.
▼疏松多孔的空间结构,A loose and porous space structure
▼二层操场看台,View to the stand from the sports field
窗外有自然,门外有乐园
Nature outside the window with entertainment outside the door
建筑的空间核心是一个中心庭院,由南北两侧的教学空间围合,最大限度地引入南面的阳光。在东西侧,建筑体量在不同层相互连通,西侧向运动场水平展开,东侧向城市留空形成窗口,在不同高度上环抱出了一个向内的花园。相应的,花园的外围空间也打破了水平各层之间的空间界限,形成了一个连续的循环,一个由活动平台、操场看台、屋顶花园、公共中庭组成的多样化社交空间体系。它连接了学校内所有最公共的元素(教室、图书馆、展厅、公共学习区),以促进和激发学生与教师之间的交流。
▼多层连续的活动空间,Multiple levels of continuous activity space
The space core of the building is a central courtyard, which is enclosed by the teaching space on both sides of the north and south to maximize the sunlight. The building volumes are connected in different layers, the west side is horizontally extended to the sports ground, and the east side becomes a window to the city, which encircles an inward garden at different heights. Accordingly, the outer space of the garden also breaks the space boundary between the horizontal layers, forming a continuous cycle, a diversified social space system consisting of activity platforms, decor, roof gardens and public atriums. It connects all the most common elements in the school (classrooms, libraries, exhibition halls, public learning areas) to promote and stimulate communication between students and teachers.
▼向内的花园,An inward garden
▼连续的环,The continuous circle
▼中心庭院,Central courtyard
▼通透的半室外空间,The airy semi-outdoor space
▼门外有乐园,Entertainment outside the door
▼窗外有自然,Nature outside the window
有时间质感的建筑材料
Texture materials with time
在立面的呈现上,设计以体现材料的原真性,构造的经济性作为出发点,选择采用水刷石作为主体材料。这种完全手工的施工方法带来细腻原始的质感,灰黄调的天然质感石子肌理与周边玻璃幕墙和钢筋混凝土的现代建筑形象形成柔和的对比与互补,焕发着自然的生命力。面向城市一侧,缓缓展开的水刷石立面墙,像一本书一样打开,与城市互诉着时光和成长的故事。
身处于中国发展最快的城市区域,科苑小学像一个稳定的,被坚守的花园,作为一个要服务一代又一代孩子的文化和教育场所,以他原真的自然性静静的注视着周边的喧嚣和变化着的城市。
In the presentation of the facade, the design takes the authenticity of materials and the economy of structure, and chooses the water brush stone as the main material. This completely manual construction method brings exquisite and original texture. The natural texture of gray and yellow stone texture forms a soft contrast and complement with the surrounding glass curtain wall, radiating the natural vitality. On the side which faces the city, the brushed stone facade opens like a book, telling stories of time and growth with the city.
Located in the fastest growing area in China, the primary school is tightly surrounded by high-rises. In our point of view, Keyuan Primary School is like a stable and guarded garden. As a cultural and educational place to serve new generations, it quietly watches the surrounding noisy and changing cities with its original nature.
▼立面采用水刷石作为主体材料,Water brushed stone as the main material
▼水刷石立面,Brushed stone facade
▼立面近景,Close-up view to the facade
立体的学习社区
Stereoscopic learning community
为了最大限度地增加活动场地,我们采用了立体化的策略来呈现一个垂直的学习社区。地面被抬升起来,下面形成了大面积的架空活动空间,同时地面层结合局部的下沉聚合了学校最公共的共享空间,包括半室外篮球场、食堂、多功能教室等;抬升的地面提供了第二层活动空间,并在这层通过连廊与原校区连接;裙楼的屋顶花园是第三个亲近自然的游乐场,这些互相联通的公共活动平台为学生在校内的日常活动提供了多样化的选择,也创造了更多社交的机会和场所。
▼设计示意,Diagram
In order to maximize the venue, we adopted a vertical strategy to present the learning community. The ground is raised to form a large area of overhead activity space below. At the same time, the ground floor combines with local subsidence to gather the most public space of the school, including semi outdoor basketball court, canteen, multi-function classroom, etc.; The raised ground provides the second floor of activity space, which is connected with the original campus through a corridor; The roof garden of the podium is the third playground close to nature. These interconnected public activity platforms provide students with diversified choices for daily activities, and also create more social opportunities and places.
▼立体学校社区,Stereoscopic learning community
▼共享中庭,The public atrium
图书馆结合半室外中庭被设置在三四层,悬挑在跑道上方。原校区的操场是一个190米的非标准跑道,虽然新的扩建用地本身已经非常紧张,但我们仍然希望去尽可能改善操场问题,通过这个悬挑的设计,释放了地面空间,为原校园带来一个全新的200米标准运动场。
The library combined with the semi outdoor atrium is suspended above the runway. The playground in the original campus is a 190m non-standard runway. Although the new expansion land itself is very tight, we hope to improve the problem of the playground as much as possible. Through this cantilever design, the ground space is released and a new 200m standard playground is brought to the original campus.
▼操场上方悬挑的图书馆释放地面空间还原200米跑道
The cantilevered library brings a new 200m standard playground to the original campus
促进模式更新的教学空间
Teaching Space for Promoting the Renewal of Models
传统的功能性走廊转变为半户外的宽敞活动场所,鼓励举办展览和交流等非正式活动,学生能够在不同学习场景之间灵活转换——课堂授课已经不再是学生获取知识的唯一渠道,学习和交流活动,正式和非正式的教学互动共同构成着学生获得知识的来源。设计通过功能与形式的整合,提供多层次的灵活、积极的学习空间,模糊了正式与非正式的空间界限,让更多的人有可能相遇和相互联系,从而推动了一种新的教育模式。
The traditional functional corridor has been transformed into a semi outdoor place for activities. Informal activities such as exhibitions and exchanges are encouraged. Students can flexibly switch between different learning scenes – classroom teaching is no longer the only way for students to obtain knowledge. Learning and exchange activities, formal and informal teaching interaction constitute the source of students’ knowledge acquisition. Through the integration of function and form, the design provides multi-level flexible and active learning space, blurs the boundary between formal and informal space, and makes more people to meet with each other, thus promoting a new education model.
▼二层平台,Second-floor platform
▼风雨操场,Indoor sports field
科苑小学是一个激发学生主动学习和探索的学习社区,一个“窗外有自然、门外有乐园”的成长花园, 一个在快速发展的城市中的时光和记忆的坚守者。他的功能复合,彼此渗透;空间开放,互联互通;它像一本城市的书,与参与其中的孩子们一起,记录着很多有趣的故事和回忆。
Keyuan Primary School is a learning community that inspires students to actively learn and explore, a growing garden that “has nature outside the window and paradise outside the door”. A defender of time and memory in this rapidly developing city. His functions are compound and permeate each other. It is like a city book, recording many interesting stories and memories with the children involved.
▼科苑小学夜间鸟瞰,Aerial view in the evening
▼项目模型,Model
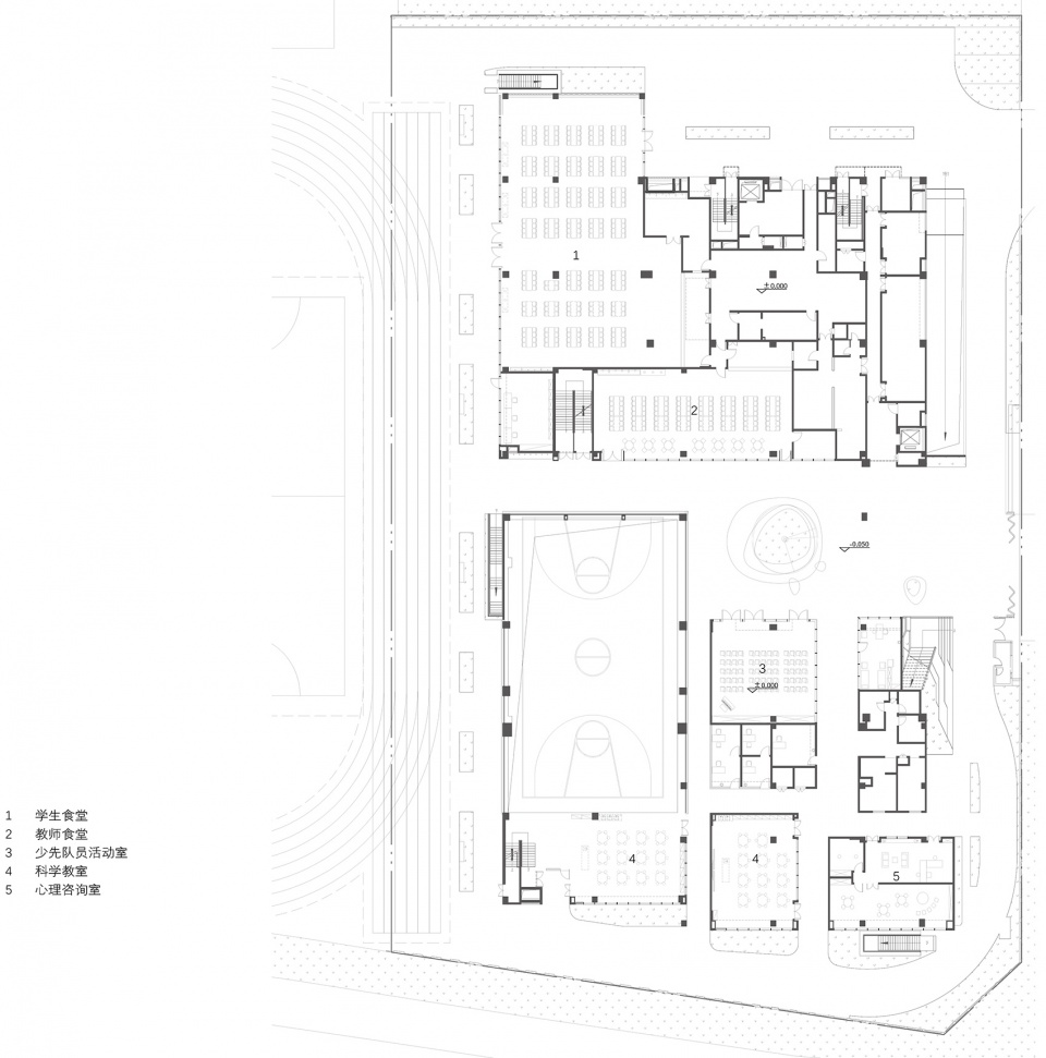
▼首层平面图,Plan level 1
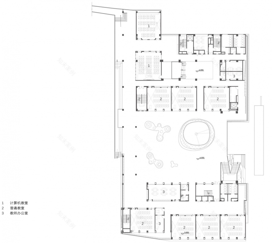
▼二层平面图,Plan level 2
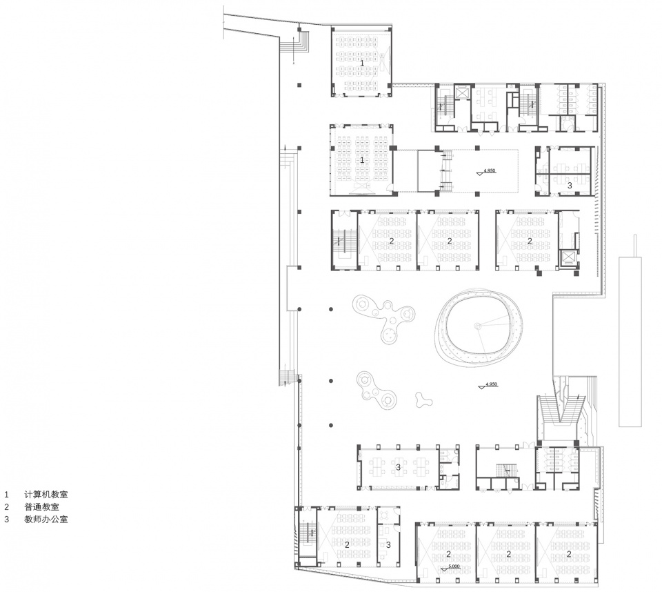
▼三层平面图,Plan level 3
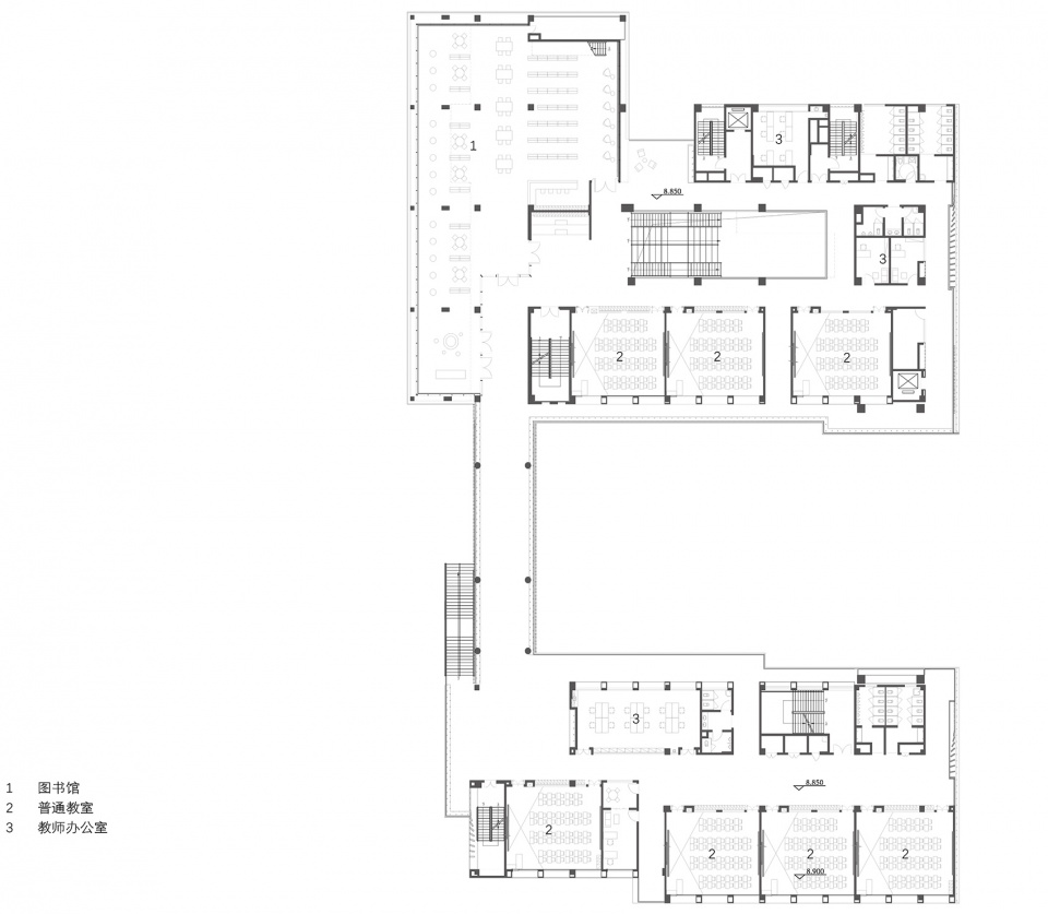
▼四层平面图,Plan level 4
▼东立面图,East elevation
▼西立面图,West elevation
▼1-1剖面图,Section 1-1
▼2-2剖面图,Section 2-2
项目名称:深圳南山科苑小学
项目类型:教育建筑
设计方:深圳市建筑设计研究总院-城市建筑与环境设计研究院
公司网站:
完成年份:2020年
设计团队:吴超、王思文、洪波、姚俊伟、李永燚、胡丽琼、李勰、朱靖丹、燕侨(方案设计);唐志军,闫丽君(建筑设计);虞子良、王丽(结构设计);游辉敏、徐雪峰、陈军、黄龙、陈丽媛、苏路明、周金磊(机电设计)
项目地址:深圳市南山区粤海街道
建筑面积:24600㎡
摄影版权:白羽
合作方:TOPOS 拓柏景观(景观设计);
WAU 建筑事务所(室内设计顾问);
材料:水刷石/水泥纤维板/涂料/金属铝拉网
获奖:2022柏林设计奖-金奖;法国巴黎DNA设计大奖-优秀奖
Project name:Shenzhen Keyuan Primary School
Project type: Public Project
Design: UASZ
Website:
Completion Year: 2020
Leader designer & Team: Wu Chao, Wang Siwen, Hong Bo, Yao Junwei, Li Yongyi, Hu Liqiong, Li Xie, Zhu Jingdan, Yan Qiao, Tang Zhijun, Yan Lijun, Yu Ziliang, Wang Li, You Huimin, Xu Xuefeng, Huang Long, Chen Liyuan, Su Luming, Zhou Jinlei
Project location:Shenzhen Nanshan District Yuehai District
Gross built area: 24600㎡
Photo credit: Bai Yu
Partner:TOPOS/WAU
Materials:Brushed stone/cement fiber board/paint/metal aluminum mesh
Awards: Berlin Design Awards 2022- Gold; DNA Paris Design Awards 2022 – Honorable Mention
客服
消息
收藏
下载
最近



































