查看完整案例

收藏

下载
项目旨在将一栋建立于20世纪60年代的办公大楼改造成一栋符合现代生活需求的住宅楼。在保留原始结构与立面的情况下,设计团队重新设计了一个向光线致敬的围护结构,赋予建筑新外观,也使其与巴塞罗那扩展区的古典建筑建立了对话。建筑创造了一处完整空间与空白空间的组合,同时实现了环境调节作用,例如防晒与交叉通风。
▼项目概览,Overview
▼可起到防晒与通风功能的外立面,
The facade that can achieve solar protection and cross ventilation
The aim of the intervention was to adapt an office building, with a structure and façade consistent with the 1960s, to a multiple housing building with a layout that responds to the new demands of modern living. The project redesign the building’s envelope, creating a dialogue with the classical architecture of the Eixample, through a façade that is a tribute to light. The building generates a composition of full and empty spaces and plays with environmental conditioning factors such as solar protection and cross ventilation.
▼外立面近景,Detailed view of the facade
▼入口,Entrance
▼从入口处往上看建筑外立面,Look-up view from the entrance
从构成而言,项目重新改造建筑的中央空间,打造了一处新的垂直天井以及庭院,并在每层设置两户住宅。为确保空间宽敞与充足日照,所有公共区域在设置上分别朝向外立面、Carrer de Ausiàs March大街或街区的内院;而多数的私人区域则面向新的中央庭院,便于实现住宅内部的交叉通风。通过这种方式,设计团队也有效回避了常见的阴暗通道问题。
Compositionally, the project proposes the reconfiguration of the central space of the building to generate a new vertical communications core and a new courtyard, creating two dwellings per floor. All the public areas, spacious and sunny, are turned towards the façades, to Carrer de Ausiàs March, or to the inner courtyard of the block. The more private spaces open onto the new central courtyard, generating cross ventilation in all the dwellings. In this way the building avoids the typical shady passageway typology.
▼入口大堂,Entrance lobby
▼大厅墙面及地板细节,Detailed view of the wall and floor in the lobby
住宅内部围绕着一个容纳着各式厨房设备的中央岛台展开,基于家具的设计策略,厨房设备被巧妙地设置成隐藏式,因此空间可轻易转变为会议空间、工作空间或单纯作为料理台使用。住宅内的公共空间,如客厅和餐厅,在占据了整面外墙长度的情况下,为空间采光创造了条件。而面向东南方向的主立面,木质百叶窗产生的光影互动效果为室内外空间创造了一种动态关系,同时也为室内空间的私密性与防晒提供保障。
The distribution of the dwellings revolves around a central element that houses the kitchen equipment, which is concealed thanks to the design strategy of the furniture, transforming it into a versatile space that can function as a meeting point, a work space or simply as a distribution hall. The most public spaces in the home, such as the living and dining rooms, occupy the entire length of the façades, making the most of natural light. On the main façade, exposed to the south-east, wooden shutters allow dynamic relations between the interior and exterior, generating suggestive interplay of light and shadow as well as ensuring privacy and solar protection of the rooms.
▼客厅空间,Living room
▼厨房空间,The kitchen
▼从厨房望向室外,View from the kitchen to the outside
石材与木材作为覆盖层与地板使用的两种材料,也为整个项目提供了指导思路。住宅内部采用橡木与白色卡拉拉大理石,在寻求色彩与节制的平衡中,增强了整体设计的简洁性。
Stone and wood are the two materials used in both cladding and flooring and constitute the guiding thread of the entire project. In the interiors of the homes, oak wood and white Carrara marble have been used, seeking a chromatic and sensitive balance that reinforces the sobriety of the overall design.
▼使用橡木与白色大理石装饰的厨房空间,
Oak wood and white Carrara marble have been used in the kitchen area
▼用餐区,Dining area
石材与木材的组合贯穿整个项目,无论是在住宅内部与公共区域,还是围护结构。新的外立面作为材料与构图逻辑的产物,石灰石和木材的应用与周围建筑的覆层与色调也实现了完美对话。实体空间与虚空间的构成及比例、纹理、材料以及木质百叶窗的垂直设计等作为设计手法也给室内布局作出了真实回应。项目既使用了现代生活的高超技术,同时以一种优雅、永恒以及简洁的形态融入周围的建筑中。
The stone-wood duality runs throughout the project, both in the homes and communal areas, as well as in the envelope. The expressiveness of the façade is the product of the material and compositional logic employed, where limestone and wood dialogue with the cladding and tones of the surrounding buildings. The composition and proportion of mass and void, the textures, the materials, and the vertical design of the wooden shutters are the design instruments that provide an honest response to the interior distribution. The project uses the technologies of modern living and at the same time integrates into the surrounding buildings in an elegant, timeless and sober way.
▼客厅近景,Detailed view of the living room
▼光线由木质百叶窗照射进室内,Light comes in through wooden shutters
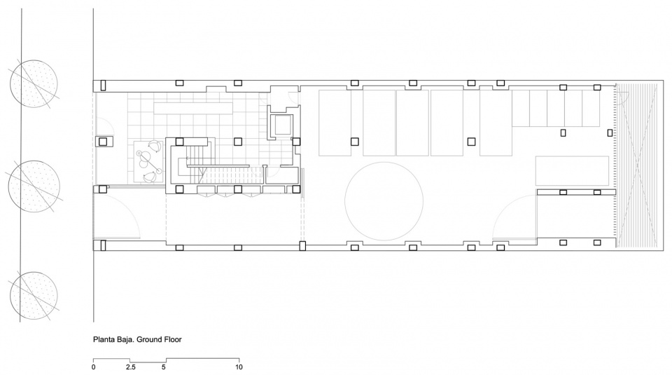
▼一层平面图,Ground floor plan
▼其他楼层平面图,Other floor plan
▼立面图,Facade
Project Name: Ausiàs March Housing
Description: From offices to housing: reinterpretation of the Eixample building
Sector: Housing Building
Type of work: Refurbishment & Interior Design
Architecture Firm: GCA Architects
Website:
Firm Location: Barcelona and Madrid
Partner: Lluis Guillem, Jordi Castañé
Project Leader: Lluis Guillem
Team: Andrea Navarro Golobart, Marta Visa
Start year: 2020
Completion Year: 2022
Gross Built Area: 2.500 m²
Project location: C/ d’Ausiàs Marc, 49, 08010 Barcelona, Spain
Photography credits: José Hevia
Website:
Client: Arc Homes
Contractor: Byco / Constructora del Cardoner
Building Surveyor: GCA Architects
Structural Engineer: Nolac Enginyers, S.A.
MEP Engineer: PGI Engineering & Consulting
客服
消息
收藏
下载
最近




















