查看完整案例

收藏

下载
作为一家制作与售卖面包的咖啡店,Our Bakery以融入浓郁巧克力的“脏脏包”与口感酥脆的“蝴蝶酥”为主打产品,其店内空间模拟了粗粝和粘稠的面包质感,刺激着人们的视觉和触觉。
“Our Bakery” is a cafe that makes and sells bread. “Our Bakery”’s popular menu items include ‘dirty chocolate’ mixed with pastry and chocolate, and breads with a texture like “palmier carré”. Roughly crumbled and sticky breads stimulate the visual and tactile senses.
▼项目概览,overview of the interior space
面包由面粉制成,而面粉经过揉捏、研磨、切割和分层,形成了各种形状和质地。与此呼应,构成空间和建筑的材料也多种多样。木头和石头,玻璃和金属,以及仿佛面包粉末一样的水泥和混凝土。与面包的制作过程相呼应,混凝土也由框架和结构的模板塑造出了各种形状和纹理。
Bread is made from flour. The flour is kneaded, milled, cut and layered to create a variety of shapes and textures. On the other hand, there are various materials that make up space and architecture. Wood and stone, glass and metal, and among various materials, cement and concrete start as a powder like bread. We saw concrete being made into various shapes and textures according to its frame and structure in the same context as bread.
▼入口空间,entrance space
▼过道处的用餐区,dining space
当顾客进入空间时,首先映入眼帘的是一个大型展示台,大面积混凝土桌与柱子相交成一体,混凝土块的自然放置形成了桌椅。
And when entered the space, the first thing we saw was a large showcase in which large chunks of concrete intersected with a column to form a single chunk, and we wanted the chunks to be placed naturally and used as tables and chairs.
▼大型展示台,the large showcase
▼窗边用餐区,dining area by the window
▼展台区,bakert counter
▼展台细部,details of bakert counter
设计师决定完全以混凝土、砂浆和金属来打造这个空间,尝试用有限的材料表达各种纹理。像黑白照片一样,单调、冷淡的材料可以捕捉到更真实、更多样化的感觉。
We decided to compose the space entirely with concrete, mortar and metal. We tried to express various textures with limited materials. Like black-and-white photos, I thought that monotonous, indifferent materials could capture a more honest and diverse feeling.
▼柜台区,storage area
▼墙边用餐区,dining space by the wall
简单粗犷的肌理烘托出面包的质感,营造出一种原始质朴的氛围,使人们的注意力得以集中在面包上。
The simple and rough texture adds to the texture of the bread, giving it a more raw feeling, and was intended to focus on the act of eating bread.
▼回望窗边用餐区,view of the dining space by the window
▼墙边展示区,display area
▼内部用餐区,interior dining space
▼内部卡座,the booth area
▼混凝土柱分隔空间,space divided by the columns
方案还包括嵌入柱子中的灯和金属材料等小型元件与设备,这些细节与粗糙的体量形成了对比,带来更细腻的感觉。
We also designed small elements and devices such as lights and metal materials embedded in the pillar. It was intended to give a more delicate feeling by contrasting with the rough mass.
▼照明元件,small lighting elements
▼VI设计,VI design
▼项目外观,exterior view
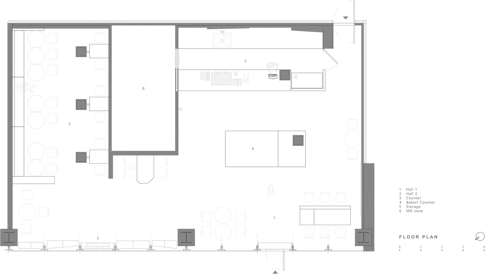
▼平面图,plan
Project Name: our bakery_sungnyemun
Architecture Firm: Studio Fragment
Website:
mail@frgmnt.kr
Firm Location: Seoul, South Korea.
Completion Year: 2022
Gross Built Area: 185.25 sqm
Project location: Seoul, South Korea
Lead Architects: Seo Donghan
Lead Architects e-mail:
mail@frgmnt.kr
Photo credits: Kim Donggyu
Photographer’s website:
Photographer’s e-mail:
Additional Credits
Design Team: Seo Donghan, Kim Hannah, Yoon Boram
Clients: PLAY F&B,.inc
客服
消息
收藏
下载
最近


























