查看完整案例


收藏

下载
▼视频,Video
设计的魅力,在于可以跨越地域的束缚,勾连时空的记忆,透过诗性的转译,赋能历史文化传承。
The magic of design is that it can bypass the limits of geography, transcend time and space, and present historical and cultural heritage through poetic interpretation.
▼建筑外立面,The External Façade of the Building
1
缘起,与山水为伴
Prologue: The Companionship of Landscape
崇左,一座隐藏在中越边境线上的避世小城。这里翠竹绕岸,农舍点缀,独木桥横,稻穗摇曳,农夫荷锄,牧童戏水,风光俊朗清逸,极富南国田园气息。
Chongzuo, a small town hidden at the border of China and Vietnam, is a perfect destination to escape the hustle-and-bustle of the outside world. Green bamboos flourish along riverbanks, single-log bridges lay across rivers, and farmhouses integrate perfectly with the breathtaking landscape. In the distance, you can see rice ears dancing in the wind, farmers hoeing, and shepherd boys splashing about by the water. A seemingly endless array of pleasant sights and sounds brings comfort and ease to one’s soul. Such lively and enchanting scenery represents the idyllic lifestyle of South China.
▼项目周边环境,Project Surroundings
广西崇左秘境丽世度假村及别墅,正坐落于自然风景优美的崇左市大新县明仕村,被美丽而独特的喀斯特地貌群山环抱,依偎于蜿蜒的明仕河畔。这是丽世酒店管理集团在中国的第一家度假村,一经面世,便斩获27项酒店业大奖及8项国内外设计大奖。
山河为邻,野有大美,我们希望在崇左的自然山水间寻觅理想的生活之乐,解读慢旅中的田园诗意,发掘这座边境小城更多的隐世之美。
Located in Mingshi Village, Daxin County, Chongzuo City, LUX* Chongzuo is nestled on the bank of the meandering Mingshi River, boasting a landscape of unique and splendid karst topography. As the first resort project of LUX* Resorts & Hotels in China, it has clinched 27 awards in the hotel industry and 8 design awards home and abroad since launching.
With mountains and rivers right by your side, in the natural landscape and beauty of Chongzuo, you will find supreme joy in life. You can embark on a slow-paced stroll to fully appreciate the quiet majesty of the farmland and further discover the hidden beauty of this border town.
▼鸟瞰图,Aerial View
2
建筑,是人与自然沟通的媒介
Architecture: The Medium Between Man and Nature
项目充分考虑了场地的山水自然条件,遵循“自然优先”的设计原则和“以小见大,以少为多”的设计构想,强调建筑与自然的共生共融。
After thoroughly considering the natural landscape conditions around the site, this project followed a design principle of “nature first” and the concepts of “multum in parvo” and “less is more”, with a special focus on the harmony and communion between architecture and Mother Nature.
▼总平面图,General Floor Plan
我们攫取当地的风光与场景,通过依山就势的总体布局和起承转合的空间营造,从规划上最大可能地为建筑空间争取大面宽长景深,避开近山的压迫感,巧用框景、对景、借景等设计手法,趣味性地把霞光溢彩、田园风光与建筑朝向完美结合。建筑低调平和,隐匿于山水之间。但自然山水就像一幅画卷引入建筑空间,无所不在。
We make full use of the stunning surroundings and the resort’s unique location of being positioned right beside mountains. In the planning stage, we tried to maximize the width and depth of resort buildings while avoiding being pressed too close to the mountains. We also adopted special spatial techniques to connect different spaces while maintaining consistency in style and tone. By using techniques like enframing scenes, opposite scenes, and view borrowing, we tactfully arranged the orientation of the buildings so that guests can enjoy colorful sunglow and idyllic scenery to the utmost. The buildings humbly merge with their natural surroundings, which provide a picturesque backdrop from any angle.
▼项目模型,Project Model
设计敏锐地捕捉到自然环境,尊重原始地貌与植被,创造多层次化的空间,从芭蕉栈桥到架空梯厅,上至二层平台转向酒店大堂,再到空中游廊,一步一景,步步有景。原生的植被在建筑中穿插,使建筑在景观中自然生长,景观在建筑中延续。一切的设计,都是为人在建筑不同的空间中行走而获得非凡体验感。
The design merges harmoniously with the natural environment, fully respecting the local topography and vegetation. Different layers of space are structured in a way in which guests can enjoy the scenery from different angles: from a plantain tree-decorated boardwalk to an elevated hall, ascending to a platform and lobby on the second floor, and finally reaching an elevated walkway. Every step taken affords a fresh, new view. Native vegetation can be seen all around, integrating the landscape with the architecture. Everything is designed to bring guests a marvelous experience while moving through the different spaces.
▼芭蕉栈桥 Plantain Tree-Decorated Boardwalk
▼二层平台,Second Floor Platform
3
开放,打破常规空间定义
Open Space: Shattering the Conventional Definition
在开敞的山水环境中,我们更多强调由内而外的视觉效果。从大堂、餐厅,到客房、卫生间等,每一个空间都以“建筑为框,山水为画”,让疲于城市喧嚣的旅客,在这里找到属于自己的一方天地、一方纯净。
In such an open environment, we put more emphasis on the visual effects from the inside out. Every space – from the lobby and restaurant to the guest rooms and bathrooms – is a “painting of the landscape enframed by the architecture”, allowing guests who are weary from the commotion of city life to discover a carefree world they can call their own.
▼大堂景观,Lobby View
半开放式的酒店大堂,三面围合一面开敞,视野开阔,正对南面山坳,左右护山,远观朝山,形成超长景观视线轴线。大堂吧处,无边水景环绕的暖炉卡座面向河对岸的山景,成为绝佳的山水框景拍摄点。远山如黛,近水含烟,云雾若隐若现,偶见一行白鹭飞过,仿佛一幅流动的山水画卷。当人伫立在此,于远近之间,动静之中,见天地,见山川,见自我。
Enclosed on three sides, the semi-open lobby has one side wide open, facing the mountains and col in the south and with hills snuggling up on the left and right. From afar, the resort with mountains in the background appears as a wide spreading landscape. The heated sunken waterscape seating areas in the lobby bar offer a front-row seat to admiring the majestic mountains and landscape. Verdant mountains stand in the distance and a misty waterscape lingers nearby. A school of egrets sometimes flies in a line across the floating clouds and mists, like a vivid landscape painting that softly unfolds before your eyes. Standing here – in the midst of activity and tranquility – lets you feel heaven and earth, see mountains and rivers, and, most importantly, find your true self.
▼大堂景观,Lobby View
▼大堂室内,Inside the Lobby
35米长的无边泳池和梯田式的景观设计,使泳池水景和自然河面浑然一体,破除了建筑和自然的结构界限。泳池的长边正对落日的方向,在这里可以让人无遮挡的饱览日落美景,夜晚的泳池星星灯更是使游客恍如置身于繁星点点倒影之间。
The 35-meter-long infinity pool and terraced landscape blend perfectly with the river outside, breaking down the structural boundaries between architecture and nature. The longer side of the pool faces the sunset, offering an unobstructed and amazing view. The twinkle lights at the bottom of the pool simulate the reflection of a starry night sky.
▼无边泳池,Infinity Pool
▼无边泳池夜景,Infinity Pool in the night
所有客房均设有宽敞的阳台、使用大面积落地玻璃窗,形成特制的“空间景框”,将环绕的喀斯特美景尽数引入,虚实之间与自然巧妙融合。并且,每间客房的景观视野互不干扰,与自然的对话是私密的,独享的。
Every guest room is equipped with a spacious balcony and large floor-to-ceiling glass window, which acts as a “frame” that captures the surrounding karst landscape. By using a balanced application of void and solid, the guest rooms blend into nature seamlessly. Each room’s view is undisturbed by those of the other rooms, affording guests private and exclusive interaction with nature.
▼客房,Guest Rooms
公用功能区,如首层会客厅、健身房、露天星空吧、美食餐厅等活动场所未做硬性分割,而是一系列共享开放、自由灵动的空间,并让变化的光影、茂盛的树木、清新的空气等自然元素成为空间的主角。
Meeting rooms, a gym, an outdoor bar, restaurants, and other public functional areas on the first floor aren’t rigidly divided. Instead, they are a series of open and flexible spaces, allowing the guests to enjoy more freely the changing of day and night, the lush trees, fresh air, and other gifts from nature.
▼餐吧,Restaurant
▼露天星空吧,Rooftop Starry Bar
4
在地,探索场景构建的表达
Localization: Explore Expressions of Scene Construction
在这片自然馈赠的美景中,我们遵循一个立足点,将建筑、景观融入在地文化,尝试透过不同的表达方式与手法,提升沉浸式体验感、场景感。
In this God-given natural environment, we pursue the goal of empowering architecture and the landscape with local culture, employing different expressions and techniques to create an immersive experience and sense of occasion.
▼迎客区,Greeting Area
项目所在区域是黑衣壮的聚集地,当地民居多为石木结构干栏式建筑。在度假村的入口处,我们收集当地废旧石材木料,重构了一个古朴自然的迎宾区,作为展示给旅客的第一印象,以感受和体验壮乡文化。
The Heiyizhuang ethnic group, whose favorite color is black and wears black clothes daily, resides near the project location. Most of their local dwellings are built with rock and wood, using a stilt house structure. At the entrance of the resorts, we turned locally collected waste rock and wood into a rustic greeting area, surprising guests upon first arrival and celebrating the Zhuang ethnic culture.
▼建筑外立面,The External Façade of the Building
同样,度假村的建筑主体借鉴了壮族传统吊脚楼的特色元素,形成架空、悬挑的建筑形态。墙体大面积使用了当地的石材和清水混凝土,舍去多余的装饰,突显材料本身的色泽和肌理,以弱化室内外的界限,表现简约时尚、大气优雅之美。
Similarly, the main structures in the resort draw on the distinctive elements of the traditional stilted building style of the Zhuang ethnic group to present a suspended and elevated architectural form. Without superfluous decorations, the majority of walls are made with rock and fair-faced concrete, highlighting the color and texture of the material itself. This way, the boundary between the interior and exterior spaces is obfuscated to amplify the beauty of simplicity, style, and elegance.
▼室内空间,The Interior Space
当地植被资源十分丰富,设计大量利用当地原始的景观元素及材料,还原当地自然及人文景观的个性特点,力求打造田园野趣的景观风貌,并尽可能保存原有的自然栖息地和生态系统。
The area is rich in vegetation resources. Local primitive landscape elements and materials were used extensively in the design to reflect the natural and cultural landscape, resulting in the creation of an idyllic, pristine space while preserving the local habitat and ecosystem.
▼洪水、河水管理,Flood and River Management
▼人工湿地,Constructed Wetlands
我们将田间地头的生根石用作景观石,水岸边配置水稻、海芋、大野芋群落等地域性植物,地被绿化选取春羽、毛蕨、柊叶、青箱等,乔灌木则以香樟、枫香、木棉、香蕉、黄皮、朴树为主,同时利用墙、杆、栏栽植如爬山虎等藤本植物,共同形成多种类、多层次的植物群落,营造纯粹而质朴的田园情怀。
We found sedimentary rocks in the fields and used them as landscape rocks in the resort. Rice, calla lily, Indian taro, and other native plants were planted along the riverside. For ground cover plants, we used lacy tree philodendron, hottentot fern, packing leaf, and plumed cockscomb, among others. Trees and shrubs used are mainly camphorwood, formosan gum, kapok, banana, wampee, and hackberry. We also used vine plants such as Boston ivy to decorate walls, poles, and railings. These all work together to foster a diverse plant ecosystem, forming a truly rural and pure environment.
▼景观及植物搭配。Landscape and Plants Arrangement
▼架空层与植被
Elevated floor and the vegetation
5
野奢,慢旅生活的艺术品格
Rustic Luxury: The Artistry of the Slow-Paced Travel Life
高耸的喀斯特山峰、蜿蜒流转的明仕河流、秀丽葱郁的田园风光,这样的自然景色是城市难以遇见的奢侈景色。面对如此优质的环境时,设计更隐,更野,才能更奢。
Towering karst mountains, the winding Mingshi River, and verdant countryside scenery are bundled together – a kind of “luxury package” that’s hard to come by in the city. In the presence of such an amazing environment, a more rustic and seclusive design offers an even more extravagant experience.
▼室外景色,Outdoor view
度假村拥有56间面山望水的套房及别墅,提供17种房型,旅客可以享受到不同的奢华体验。大量自然毛石植入室内,原木家具、藤制灯饰、精致的黄铜构件互相搭配,带来自然气息。在相互交融的建筑和室内装饰中,展现出极简野奢的设计风格,也实现了建筑、景观、室内的一体化设计。
The resort boasts 56 suites and villas that come in 17 room types, all of which give an extraordinary view of the landscape and varied luxurious experiences. A large number of natural rocks in irregular shapes were used in building the interior space, together with wooden furniture, rattan lightings, and exquisite brass components, emitting a feeling of being in a natural environment. The architecture and interior design work together to deliver a minimalist and rustic luxury style, achieving unity of architecture, landscape, and interior design.
▼客房室内,Inside the Guest Rooms
▼可以欣赏自然风光的浴池,Bath with view to the natural landscape
在这里,旅客可以在热带植被环绕下畅快呼吸,在池边美景中沉思冥想,在田园小径中漫步骑行……舒适的度假活动完全融入于原生态的大环境中,营造出河畔漫旅的生活艺术,带给旅客返璞归真的心灵洗涤。
Surrounded by tropical vegetation, guests freely breathe nature’s freshness. Meditating by the beautiful pool and strolling or cycling along tranquil trails are some of the must-dos. Enjoying these relaxing activities on a vacation in nature purifies one’s heart and helps foster a slow-paced travel experience by the riverside.
▼各类室外活动场所,Various Venues for Outdoor Activities
广西崇左秘境丽世度假村,集田园之美、山水之美、建筑之美、材质之美,在延续在地风情的同时,又将大气简约的现代建筑理念与之交融,是对山水自然背景下文化表达的诗性转译的一次设计实践。
LUX* Chongzuo is a pastiche of the beauty of the countryside, landscape, architecture, and building materials. Rooted in the respect of the local culture, it reflects a simple yet elegantly modern architectural concept – a brilliant poetic interpretation of cultural expressions all in a natural landscape.
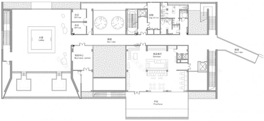
▼大堂二层平面图,Second floor plan of the lobby
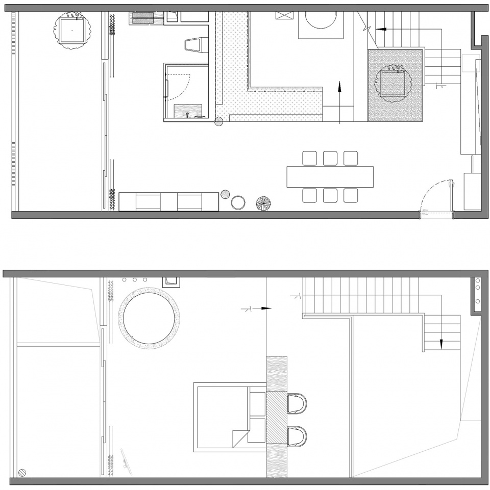
▼河畔别墅平面图,Plan of the riverside villa
▼酒店套房平面图,Plan of the hotel suite
▼复式套房平面图,Plan of the duplex suite
▼立面图,Elevation
项目名称:广西崇左秘境丽世度假村及别墅
设计方:天萌国际设计(建筑设计及景观设计)
公司网站:
设计年份:2017年
完成年份:2020年
主创及设计团队:陈宏良,颜家国,罗轶,欧阳峻,吴嘉妮,郑旸,黄灵杰,徐鹏翔,胡木军,江帆,梁沛,伍彪华,吕铁明,赖天继,肖志基,江志航,林盛贵,刘明
项目地址:广西壮族自治区崇左市大新县
项目面积:建筑面积13737.38㎡
摄影版权:丽世酒店管理集团
合作方:杭州素墨堂设计工程有限公司(室内设计)
发展商:广西大新明仕怡境旅游发展有限公司
管理公司:丽世酒店管理集团
Project Name: LUX* Chongzuo, Guangxi Resort & Villas
Designer: TEAMER INT‘L (architectural design and landscape design)
Company Website:
Email Address:
Year of Design: 2017
Year of Completion: 2020
Major Design Team: Chen Hongliang, Yan Jiaguo, Luo Yi, Ouyang Jun, Wu Jiani, Zheng Yang, Huang Lingjie, Xu Pengxiang, Hu Mujun, Jiang Fan, Liang Pei, Wu Biaohua, Lyu Tieming, Lai Tianji, Xiao Zhiji, Jiang Zhihang, Lin Shenggui, and Liu Ming
Project Location: Daxin County, Chongzuo City, Guangxi Zhuang Autonomous Region
Project Area: 13,737.38 m
2
building area
Photo Credits: Chen Liqi
Partner: Hangzhou Sumotang Decoration Design Engineering Co., Ltd. (interior design)
Developer: Guangxi Daxin Mingshi Yijing Tourism Development Co., Ltd.
Management Company: LUX* Resorts & Hotels
客服
消息
收藏
下载
最近






































