查看完整案例

收藏

下载
Amelia Tavella刚刚获得了国家荣誉勋章的骑士称号。她完成了位于科西嘉岛Sainte-Lucie de Tallano 的Saint-François女修道院的改造和扩建,这座岛是她的故乡。修道院建于1480年,被列入了历史纪念物名单。改造前的建筑已经部分损毁,处于弃置状态。年轻的建筑师需要在重建的同时,保留其中的历史遗迹。
Amelia Tavella, who has just received the title of Chevalier in the National Order of Merit, is completing the rehabilitation and extension of the Convent Saint-François, in Sainte-Lucie de Tallano, Corsica, her native island. This building, built in 1480, listed as a historical monument, partially in ruins, was dormant. The young architect had to rebuild it without separating from the vestiges of the past.
▼项目整体鸟瞰
overall aerial view of the project
“我相信更高的、无形的力量的存在。位于Sainte-Lucie de Tallano的Saint-Francois女修道院建于1480年,是此种信仰的一部分。建筑坐落在一处高耸的海岬上,最初是一座防御性城堡;僧侣们发现了这里惊人的美景后,将其选为了祈祷和隐修的场所。信仰聚集在了壮丽的景象之中。”
“I believe in higher and invisible forces. The Convent Saint-Francois of Sainte-Lucie de Tallano, built in 1480, is part of this belief. Housed in a height, on its promontory, it was a defensive castle before being a place of prayer, of retreat, chosen by monks aware of the absolute beauty of the site. Faith rallies to the sublime.”
▼项目坐落在壮阔的山景中
project located in the spectacle of mountains
修道院后方是墓地,可以俯瞰它所守护的村庄。建筑拥有前场和后台两个部分。一片橄榄树林如同衣领一样包裹在建筑脚下,也是一座充满天赐食物的幸福花园。项目前方是科西嘉山的壮阔景观。令人眼花缭乱的山道与山脊仿佛通向云霄,在不同季节中变换着自身的样貌。Alta Roca的心脏便在此跳动。此番美景是宗教的、超自然的。
With its back to the cemetery, the convent overlooks the village it watches over. It has a front and a backstage. An olive grove is like a collar at its feet, a happy garden of heavenly food. In front of him, the spectacle of the Corsican mountains, a dizzying merry-go-round of passes and ridges that seem to move in the direction of the clouds and change their dress with the seasons. Here pulses the heart of Alta Roca. The beauty there is religious, supernatural.
▼修道院鸟瞰村庄,the convent overlooking the village
▼建筑被自然包裹,building surrounded by natural landscape
自然也在建筑内部生长,它们滑入石块之间,变成了植物装甲,阻止建筑的腐蚀和崩塌,其中包括一棵生长在立面上的无花果树。树木的根茎代替被时间摧毁的石灰石成为了建筑的结构。自然是该历史纪念物不可或缺的组成部分之一,对于这些长久以来保护这座空置的宏伟建筑、直到其迎来新生的元素,Amelia Tavella表示了尊重。
Nature has grown inside the building, Siamese nature slipped between the stones and then transformed into plant armor that protects against erosion and collapse. A fig tree is included in the facade. The wood, the roots that have become structural have replaced the lime which will not have stood the test of time. An essential component of the historic monument, Amelia Tavella has honored this nature that will have long protected the dormant edifice before its resurrection.
▼植物融入到建筑之中
plants growing inside the building
“我选择保留废墟,用铜结构替换掉已经彻底损毁、消失的部分,作为当地的议院。沿着过去的足迹,我让美丽连接信仰,信仰连接艺术,将思想从历史带入现代,但不做丝毫改变和破坏。废墟是标志,是遗迹,也是印记,讲述着基础和真相。它们是灯塔和基点,指引着我们的轴线、选址和体量。”
“ I chose to keep the ruins and replace the torn part, the phantom part, in copper work which will become the House of the Territory. I walked in the footsteps of the past, connecting beauty to faith, faith to art, moving minds from before to a form of modernity that never alters or destroys. The ruins are marks, vestiges, imprints, they also tell the foundations and a truth, they were beacons, cardinal points, directing our axes, our choices, our volumes.”
▼新旧体量的连接
connection between the old and new volumes
在废墟中建造是让过去与现在拥抱彼此,绝对不能相互背叛。一方成为另一方,二者皆被保留。它是将过去的时光编织到新的时代之中,后者并非取消或重组,而是通过某种变形的方式,将两个未知的部分连接在一起,让它们互为对方的延伸。
Building after ruins is the past and modernity embracing each other, making the promise never to betray each other. One becomes the other and no one is erased. It is an interweaving of an older time in a new time which does not undo, which does not recompose, but which links, attaches, grabs, two unknown and not foreign parts, one of which becomes the extension of the other. in a sort of transfiguration.
▼新体量与旧建筑互为各自的延伸
the new and the old are extension of each other
建筑师经常以此种方式在科西嘉岛上建造项目,如同考古学家将历史和即将发生的事情聚集在一起。建筑师不会采用移除的手法,而是通过悬挂、捆绑、粘连、滑动等方式,让新建筑轻轻落在原始的土地和结构之上。铜展现了石材和纪念物原本的样貌,将废墟神圣化到了一种诗意的境地。废墟如同精美结构在经历时间洗礼后留下的X光图片。借助可逆铜制框架的支撑,废墟突然变得壮丽了起来,其本身注定要被转变和隐去,成为讲述故事的第二层表皮。
I have always built this way on my Corsican island, like an archaeologist who brings together what was and what is and what will happen; I do not remove, I hang, bind, affix, slide, resting on the initial ground, on the original work : the copper reveals the stone, the monument and it sacralizes the ruiniform and poetic state. Ruin is like an x-ray image of a polished structure undone by time. She suddenly finds herself magnified, because held by a reversible copper frame, itself doomed to transform, skate, become second skin and have a story.
▼拱门入口
arched entrance
▼新旧材料之间的连接,combination between the new and the old
“我喜欢设计中回归废墟的可能性。铜制框架可以被拆除,这种可能性是对科西嘉遗迹和历史的礼貌和尊重。我将地区议会建造在原始体量旁边。通过模仿,我重新创造了曾经存在的建筑的轮廓。”
“I liked the idea of a possible return to ruin, that the copper could be undone – this possibility is a courtesy, a respect, to the past, to Corsican heritage. I built the Maison du Territoire by aligning myself with the original massing. By mimicry, I reproduced the silhouette of the pre-existing building.”
▼新建筑模仿旧建筑的体量,the new building mimics the shape of the old
▼铜与石材的对比
comparison of the copper and the stone
铜带来了一种柔和的姿态,它是女性化的石材。与花岗岩不同,它通过精确达到壮丽,并且有着捕捉光,反射光,将光送回天空的特性,正如僧侣与信徒们的祈祷传向上帝。”雕刻的窗格将光引入建筑内部。阳光被捕捉、扩散,仿佛穿过教堂的彩色玻璃窗。作为一种高贵而耀眼的材料,铜将场所转变成了体验。太阳落入其中,带走人们的思绪。
The copper allowed a gesture of softness, it is feminine like stone. Unlike granite, however, it approaches its grandeur, by its preciousness and its propensity to capture the light, to reflect it, sending it back to the sky like the prayers of the monks and the faithful who address themselves to the Most High. His moucharabiehs direct the light inward, light captured and diffused as if it were passing through the stained glass window of a church. A noble and dazzling material in the first sense of the term, copper transforms the place into an experience. The sun falls there and carries away.
▼拱廊,铜与石材的链接
arcade, connection between copper and stone
▼铜的反射
light reflected by copper
▼阳光透过窗格留下光斑
light spots created by light through the moucharabiehs
“如同山景一样,我重新描绘了设计的蓝图。考虑到美的对称性,没有东西应该冲击人们的视野。我被明显的事物困扰。每件工作都关乎于爱。对场所的爱,对建筑的爱,以及第大山的爱。从而让一种事物完成从过去到现在的转变。”
“Like the mountain scene, I retraced the blueprint, concerned with a symmetry of Beauty, nothing should strike the eye. I am haunted by the obvious. Each work is a work of love. Love of the place, of the building, of its mutation as one could say of a species which transforms itself from what it has been.”
▼整体鸟瞰
overall aerial view
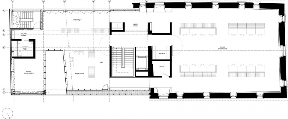
▼一层平面图,first floor plan
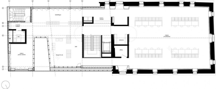
▼二层平面图,second floor plan
▼三层平面图,third floor plan
▼四层平面图,fourth floor plan
▼立面图1,elevation 1
▼立面图2,elevation 2
▼立面图3,elevation 3
▼立面图4,elevation 4
▼剖面图1,section 1
▼剖面图2,section 2
▼剖面图3,section 3
▼剖面图4,section 4
▼细部,details
Project Owner: Collectivité de Corse
Project management Team: Amelia Tavella Architectes
Surfaces: 1 000 m2
Copper panel Shaper: Solu’zinc
Steel Frame /copper panel company: Fusella
Country: France, Corsica (Santa-Lucia di Tallano)
客服
消息
收藏
下载
最近





































