查看完整案例

收藏

下载
北京国际戏剧中心是北京人民艺术剧院的扩建工程,位于东城区王府井大街北京人民艺术剧院内,现状首都剧场的东侧,是一座集话剧演出、艺术创作、排练、展示、机房、停车等于一体的综合观演建筑。北京国际戏剧中心由北京市建筑设计研究院有限公司胡越工作室设计,于2021年7月竣工并投入使用,获得了各方好评。
The Beijing International Theatre Center is an expansion project of Beijing People’s Art Theatre (BPAT), located in the premises of the latter in Wangfujing Street, Dongcheng District, on the east side of the Capital Theater. With a range of functions including drama performance, artistic creation, rehearsal, display, machine room and parking, the Beijing International Theatre Center was designed by Hu Yue Studio of Beijing Institute of Architectural Design (BIAD), and was completed and turned operational in July 2021, winning wide acclaim from different stakeholders.
▼项目概览,Overall view
北京国际戏剧中心的建成,使享誉中外的北京人民艺术剧院又增添了两座驻团新剧场,包括一座中型专业话剧剧场“曹禺剧场”,容纳约700名观众;一座“人艺小剧场”,容纳约300名观众。项目总建筑面积2.3万平方米,地上3层、地下4层,建筑最高处台塔高度为25米,结构形式为钢筋混凝土框架剪力墙结构。专业流线包括独立的演员流线、舞台布景流线、贵宾流线,与观众流线完全分开。
With the completion of the Beijing International Theatre Center, the renowned BPAT has added two new theaters, including a medium-sized professional drama theater “Caoyu Theater” able to accommodate about 700 spectators, and a “BPAT Small Theater” able to accommodate about 300 spectators. The total built-up area of the project is 23,000 square meters, with 3 floors above ground and 4 floors under. The height of the fly tower at the highest part of the building is 25 meters in a structural form of reinforced concrete frame shear wall, with an independent stream for performers, as well as streams for stage set and VIPs, which are completely separated from audience sightlines.
▼剧场主入口,Main entrance of the theater
▼四合院看剧场,Quadrangle to see the theater
坐落于东城区老城中心的胡同里,周围是北京四合院的传统民居,项目用地异常紧张,设计需要利用紧凑的布局化解用地和功能需求的矛盾。项目布局为南北向,小剧场位于曹禺剧场后舞台的上方。由于毗邻着50年代建成的文物建筑“首都剧场”,因此在外立面设计上,与老剧场的色彩相协调,同时风格上则采取简约大气的现代风格。项目位于四合院之中,在剧场外复建了一座传统四合院,与周围环境相协调。
Located in the alley in the center of the old city of Dongcheng District, surrounded by traditional Beijing courtyard residences, the project is subject to extremely limited space, obliging the use of compact layout to reconcile land use with functional requirements in architectural design. The project features a north-south layout, with the small theater located above the back stage of the Caoyu Theater. As the project is adjacent to the “Capital Theater”, a historical structure built in 1950s, the facade is designed to ensure harmony with the colors and hues of the latter, while adopting a simple and modern style. The project is located in the courtyard, and another traditional-style courtyard was built outside the theater to fit in with the environment.
▼东侧石材格栅,East side stone grille
▼北侧格栅,North side grille
▼东侧格栅,East side grille
既要与老城、老剧场相协调,又要保证北京人艺的国际形象,古典复兴式的首都剧场、新建的现代北京国际戏剧中心、老北京传统四合院,这三者戏剧性地融合在一起,形成了富有张力的建筑群。
It is important to both fit in with the old city and the old theater, and ensure the international image of Beijing People’s Art Theatre (BPAT). The classical revival-style Capital Theater, the newly-built modern Beijing International Theatre Center and the old Beijing courtyards are dramatically integrated in an architectural complex with strong tension between them.
▼新老剧场对比,Comparison of old and new theatres
▼美美与共,Beauty Together
▼主入口柱廊,Main entrance colonnade
进入剧院,前厅富有视觉冲击力的12米高的玻璃砖墙展现在人们面前,这是亚洲最高的玻璃砖墙。玻璃砖的尺寸模仿了四合院的青砖尺寸,半透明质感的玻璃砖幕墙为观众在进入观众厅前,带来一种神秘感。尽端的一部木质旋转楼梯从二层休息平台悬挑出来,以有机的形态活跃了室内休息大厅空间。
The visually powerful 12-meter-high brick wall in the front hall, the tallest glass brick wall in Asia, appears prominently in front of the visitors as they enter the theater. Using bricks with the size of blue courtyard bricks, the translucent glass brick curtain wall brings a sense of mystery to the visitors before entering the audience hall. A wooden spiral staircase at the end is overhung from the rest platform over the second floor, livening up the indoor rest hall space.
▼剧场前厅,The front room of the theater
▼旋转楼梯,Spiral staircase
通透的落地玻璃幕墙使人们能够欣赏到室外周围四合院的风景,室内与室外的边界被“模糊化”,使得休息大厅和周围四合院融合在一起。登上旋转楼梯,可以将人们带到曹禺剧场池座后部的入口。晚间演出前,休息大厅顶部黑色吊顶上满天星的灯光熠熠生辉,烘托出戏剧的神秘之光。
The translucent floor-to-ceiling glass curtain wall enables the enjoyment of the scenery of the surrounding courtyards, with a blurred boundary between indoor and outdoor spaces, merging the rest hall and the surrounding courtyards. The spiral staircase takes visitors to the entrance at the back of the stalls in the Caoyu Theater. Before the evening performances, the lights glitter with magnificent glow from the black ceiling at the top of the rest hall, setting off the mysterious light of drama.
▼剧场二层入口处 & 玻璃砖墙
Entrance on the second floor of the theater & Glass blocks
以木色、灰砖色为主调的“曹禺剧场”可容纳约700人,在室内设计上,契合北京传统民居四合院的特点。整个观众厅的围合感很好,尺度合宜,使人感到稳重、传统和亲切。观众厅由池座和两层楼座组成,设计以自然声直达的1.1秒为混响时间。观众厅内部空间运用了A级防火木饰面板,设计出多种表面凹凸造型与肌理,既为观众厅提供了微扩散面的声学效果;另一方面,实木造型与后部凹凸不平的深灰色错落有致的“灰砖”GRG墙面一起,形成冷暖与深浅对比,映射出老北京胡同的设计元素。观众厅上部三条飘浮在吊顶下的空中木色飘带,是两道面光桥和一道追光桥。红色座椅,与木色墙面、深灰色GRG墙面、黑色吊顶一起,美美与共,烘托出热烈的演出氛围。
Caoyu Theater, with wood and gray brick colors as its main tones, and an interior design in line with the style of old Beijing courtyards, can accommodate about 700 people. The entire audience hall offers a good sense of enclosure with an appropriate scale, creating a sense of dignity, tradition and friendliness. The auditorium is composed of stalls and two-story balconies, with a reverberation time of 1.1 seconds with direct natural sound. Class-A fireproof wood veneer is used in the internal space of the audience hall, and a variety of concave-convex shapes and textures are designed to provide the acoustic effect of micro-diffusion surface for the audience hall. Moreover, the solid wood shape, together with the uneven dark gray “grey brick” GRG wall at the back, forms a contrast in warmth and depth, reflecting the elements of old Beijing Hutongs. The three wooden streamers floating under the ceiling in the upper part of the audience hall are two forestage lighting galleries and a follow-spot gallery. Red seats, together with wooden walls, dark gray GRG walls and the black ceiling, are designed in perfect harmony with each other, fostering a warm atmosphere for performance.
▼曹禺剧场,Cao Yu Theater
为了满足人艺的演出需求,舞台尺寸是标准较高尺寸较大的品字形舞台,采用镜框式舞台、伸出式舞台两种使用形式,观众厅前部乐池依靠机械设备可升起成为舞台的一部分变成伸出式舞台,也可作为活动座椅区增加一部分观众。当乐池升至伸出式舞台台面标高时,表演区将前移,使观众最大限度地听到演员清晰的自然声和观赏到演员细腻的表情,形成良好的观演气氛。在目前国际戏剧中心先期启动的曹禺三部曲的《日出》和《雷雨》中,乐池区均是作为伸出式舞台使用。
To meet BPAT’s performance needs, the stage is of a trapezoid shape with relatively high standards and a large size, and can be used as either a frame stage or an extended stage. The orchestra pit in front of the audience hall can be raised as an extended part of the stage by mechanical equipment, and may also serve as a movable seat area to accommodate more audience. When the orchestra pit rises to the elevation of the extended stage level, the performance area will move forward, so that the audience can hear the clear natural sound of the performers and see their expressions as clearly as possible. In the performance of writer Cao Yu’s “Sunrise” and “Thunderstorm” at Beijing International Theatre Center, the orchestra pit area was used as an extended stage.
▼剖轴测图,Sectional perspective
“曹禺剧场”和“人艺小剧场”被视为与其演出功能相关的两个独立个体,每个剧场均有独立的化妆区、技术用房和观众休息区。“人艺小剧场”的休息厅同时也是戏剧展廊,上部自然光天窗为展廊带来一天中变换的光影。
墙面黑灰色为主调的“人艺小剧场”,是典型的黑匣子式实验小剧场,蓝色的机械座椅可以根据演出需要任意组合,适用于多种剧目演出。墙面采用与“曹禺剧场“相同的A级防火木饰面板,分为普通和微穿孔吸声两种表面处理方式,每块板材设计成900×600的表面楔形单元块,颜色从黑色过度到深浅不同的暖灰色,共四种颜色随机排列。根据建声顾问的精确计算,在不同立面分设有不同的吸声面积和排布要求。
“Caoyu Theater” and “BPAT Small Theater” are regarded as two independent structures related to their performance functions, with each one having its own makeup area, technical room and audience rest area. The lounge of “BPAT Small Theater” serves also as a drama gallery, benefiting from the upper natural light skylight with changing hues at different times of the day.
The “BPAT Small Theater” with an overall black and gray tone is a typical black box theater. The blue mechanical seats can be rearranged arbitrarily according to the performance needs, and are suitable for various performances. The wall adopts the same Class-A fireproof wood veneer as “Caoyu Theater”, and features two surface treatment methods: ordinary and micro-perforated sound absorption. Each board is designed as a 900×600 surface wedge-shaped unit block. The color changes on a spectrum ranging from black to warm gray with different shades, with four randomly arranged colors. According to the accurate calculation of architectural acoustics consultant, different sound absorption areas and arrangement requirements are designed for different facades.
▼小剧场,Small Theatre
以浅黄色为主调的排练厅共有三间,两间较小的呈正方形,一间较大的为长方形,且上部有天窗作为自然采光。有着横向长圆孔的浅色A级木饰面穿孔吸音板,采用15.5%的穿孔率以达到建声的计算要求。以1200×600为板材模数,立面上与门高和窗高分别对齐。
There are three rehearsal halls with light yellow as the main tone. Two smaller ones are square-shaped, one larger one is rectangular, and the upper part uses skylights for natural lighting. The perforated sound-absorbing board made of light-colored Class-A wood veneer with oblong holes in the horizontal direction features a perforation rate of 15.5%, to meet the requirements of architectural acoustic requirements. With 1200×600 as the plate modulus, the elevation is aligned with the door and window height respectively.
▼排练厅,Rehearsal Hall
北京国际戏剧中心项目落成后,于2021年7月进行了试运行,观众反馈非常好。整个观众席形成一个非常好的包围性氛围,保证了观看视线的舒适度,观众无论坐在哪个位置,都能够听清舞台上的一念一叹,将艺术家们的一颦一笑尽收眼底。与此同时,这些凹凸不平、错落有致的“灰砖”,与幕天席地、环绕四周的“木材”一起形成了最适合话剧演出的建筑声场,让北京人艺演员不戴麦克风仅用自然声,就能达到满意的声场效果。
After the completion of the Beijing International Theatre Center project, it was put into trial operation in July 2021, with very good audience feedback. The audience stalls, encircling the center, contribute to clearer views and better acoustic effects. No matter where the audience sit, they will be able to see and hear even the smallest gestures and murmurs of the performers on the stage. At the same time, the uneven and patchwork “grey bricks”, together with “wood materials” adorning the entire internal surface, help create the most suitable architectural sound field for drama performance, so that performers can achieve satisfactory sound field effect without wearing microphones.
▼剧场前厅夜景,Night view of the front room of the theater
继承首都剧场的优秀传统,本着和而不同的精神,北京国际戏剧中心项目打造了具有时代特色的新型剧场,为王府井核心区又增添了一处重要的文化新地标。
Carrying forward the fine traditions of the Capital Theater and in the spirit of seeking harmony while retaining diversity, the Beijing International Theatre Center Project has created new theater buildings that echo the styles of the modern times. It has become a new cultural landmark in the core area of Wangfujing.
▼剧场西北角人视,Northwest of the theater
▼剧场三楼天台,The rooftop of the theater
▼四合院夜景,Quadrangle night view
▼北京国际戏剧中心-总平面图,Master plan
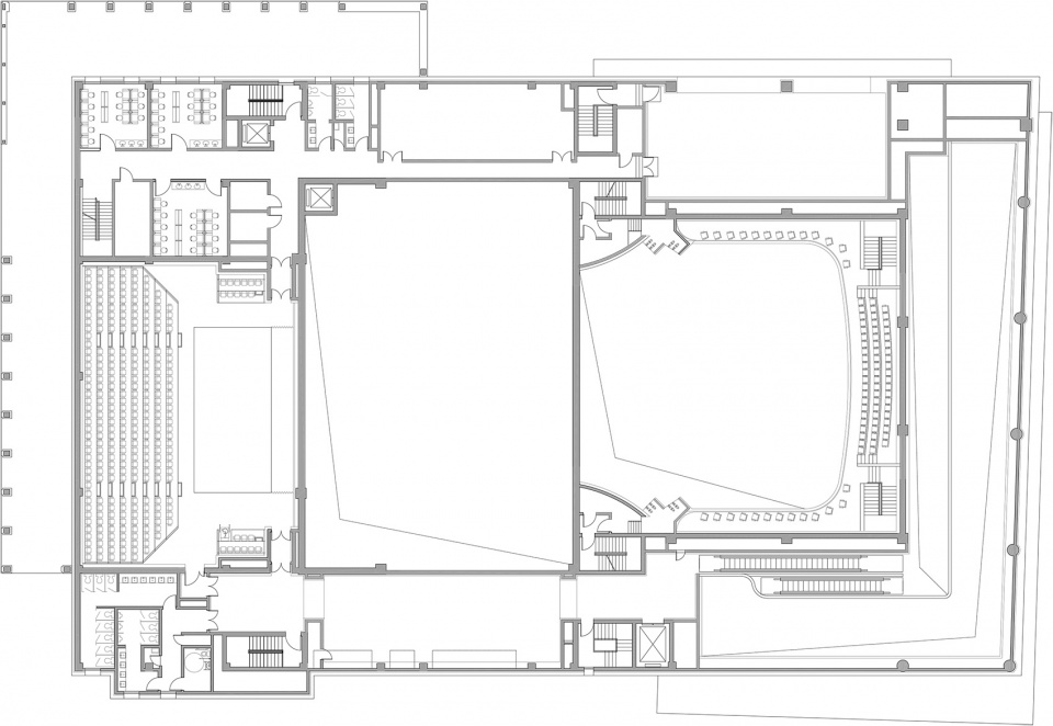
▼北京国际戏剧中心-首层平面图,Ground floor plan
▼北京国际戏剧中心-二层平面图,Second floor plan
▼北京国际戏剧中心-三层平面图,Third plan
▼北京国际戏剧中心-剖面图,Section
北京国际戏剧中心
2011-2021
中国,北京
类型:剧院
占地面积:17755 m2
建筑面积:23026 m2
建筑高度:25m(台塔),17m(檐口)
业主:北京人民艺术剧院
建筑设计:北京市建筑师设计研究院有限公司胡越工作室
主持建筑师:胡越
设计团队:胡越、邰方晴、游亚鹏、陈威、赵默超、梁雪成、陈向飞、吴爽、张燕平、奚琦、杨晓宇、马云飞、薛沙舟、赵墨、严一、申伟、吴威、张林
古建筑顾问:北京方州基业建筑设计有限公司
建筑幕墙顾问:建研科技股份有限公司
舞台工艺顾问:北京博奥特舞台设计咨询有限公司
声学顾问:华东建筑设计研究院有限公司 声学及剧院专项设计研究所
室内设计顾问:中孚泰文化建筑股份有限公司
建筑照明顾问:天合光音照明设计(北京)有限公司
标识设计顾问:北京良好文化传播有限公司
施工单位:北京城建亚泰建设集团有限公司
客服
消息
收藏
下载
最近






























