查看完整案例

收藏

下载
“观自在菩萨,行深般若波罗蜜多时照见五蕴皆空,度一切苦厄。”
——《心经》
”When Avalokiteshvara Bodhisattva was practicing the profound prajna paramita, he illuminated the five skandhas and saw that they are all empty, and he crossed beyond all suffering and difficulty.”
– Heart Sutra
“我更愿意关注一个地方的空间特质和体验。用空间,光,声音的调和去打动人,不用刻意为之,也能让事物拥有超乎想象的人性。”
“I prefer to pay attention to the spatial characteristics and experience of a place. Using the harmony of space, light, and sound to impress people, without doing it deliberately, can make things have a human nature beyond imagination.”
设计师为项目起名观自在,确是想把生命体验和思辨内观结合在一起。落在这栋城乡交汇处的自宅时,这种结合的基础是求真——对遥远的、自然的、人心的求真。假如它恰好为乡村振兴这类大问题做了注脚,那么是这一基础衍生的意外之喜。
Named Guan Zi Zai (Sanskrit: avalokitêśvara, “looking on”) from Heart Sutra, the project intends to combine life experience and speculative insight. Located in the urban-rural fringe area, the project is based on the truth-seeking for the past, nature, and the human mind.If it happens to be a footnote to big issues such as rural revitalization, it becomes a great surprise derived from this basis.
▼视频
video
一
介入
不预设目的
Intervention
Without presupposing purpose
项目地处北京海淀区,闻名的京西水稻和乾隆御田已不太为年轻人所知,在西山山脉和永定河水的滋养下,城乡交汇处的村落接过城市发展递上的接力棒,乡村住宅有条件成为插序格局下涟漪的中心,影响新时代的村镇和这里的人。
The project is located in Haidian District, Beijing, where the famous Jingxi Rice and Qianlong Imperial Fields are no longer well known to young people. Under the nourishment of the Xishan Mountains and Yongding River, the villages in the joint region of urban and rural areas have taken over the baton of urban development. As a result, countryside houses may become the focus in this situation, influencing the villages and towns and the people there in the new era.
▼项目外观
external view of the project
村书记委托TANZO天作设计师王大泉为他们宅基地上的一栋二层小楼完成景观及内部设计,这栋由当地工人完成的红砖建筑与村子中其他住宅并无差异。主人则对内部构造设计持全开放的态度,这为观自在的完整呈现打下了基础,但完全自由带来的失去参照也让设计师确立了介入方式——不预设目的,以客观的自然环境以及主人的习惯为根本规律逻辑。这样即使过程笨拙一点、慢一点,也会确保在正确的方向上,事实也不断证明了这一点。
Wang Daquan, the designer of Tanzo Space Design was commissioned to complete the landscape and interior design for a two-story house. This red brick building constructed by local workers is no different from other houses in the village. The owner has an open attitude towards the interior design, which allows the complete presentation of Guan Zi Zai. Without any reference because of the maximized freedom, the designer proposed an intervening method without any presupposing purpose, which takes the physical environment and the owner’s habits as the fundamental law and logic. Although slower, this process guarantees the right direction, which has been proven by fact.
▼项目概览
overall view of the project
二
顺势
然后恰当
Taking advantage of the situation
Appropriately
为了处理空调管线并确保通风,设计师将门头随形处理成双面斜坡顶,远看像一座小塔,这是之前没有预料到的,业主非常喜欢它“步步高升”的寓意,门外围合的黑色半墙,给进门的行为赋予了登台和隐退的双重意味。
这样顺势而为的处理贯穿整个设计过程,只有身在其中才能体会村庄远非静止。比如在设计师还沉浸在前后住宅老屋脊形成的组块风景时,前屋主人已经拆盖了附带不锈钢栏杆的二层小楼,而楼体间狭窄倾斜的排水缝隙也进一步推动了室内结构线的调整。
To arrange the air-conditioning pipeline and ventilation, the door head fixed plates form a double-sided slope, which unexpectedly looks like a small tower from a distance, and the owner likes its implied meaning of promoting to a higher position. What’s more, the black half-enclosed wall gives entering the door meaning of approaching and retreating.
This kind of flexible treatment runs through the entire design process, and only when one is in it can one realize that the village is far from static. For example, when the designer was still immersed in the landscape formed by the old roof ridges of the front and rear houses, the front house had already been demolished and become a two-story building with stainless steel railings. In the meantime, the narrow and sloping drainage gap between the two buildings required further adjustment of the interior structure.
▼两栋楼体之间设置狭窄的排水缝隙
two buildings with narrow drainage gap in between
设计师在房子的中央插入了一个类似亭子的区域,把紧张的、人工的内部空间打通放进环境里。水泥围合的下沉区嵌入薄薄水面,小孩们常在庭院的水池间来回跳跃,水面的宽度刚好适合他玩耍的步幅。
A pavilion-like area was inserted in the center of the house, opening up the tense artificial interior space into the environment. Small amount of water was embedded in the sinking area enclosed by cement, among which the children often jump back and forth between the pools in the courtyard. The width of the water is just suitable for children’s stride.
▼中央庭院
central courtyard
▼庭院细部
details of the courtyard
在这个形似钥匙的小小区域围炉而坐——头顶亿万星,月光手边荡。文人式的浪漫和乡村融化在一起,钥匙“开启生活”的含义粗浅却可爱。顺势让强调变得松弛,观自在也有了机缘。
Sitting around this small area shaped like a key, there are hundreds of millions of stars up in the sky and romantic moonlight nearby. The literati-style romance blends with the countryside, opening a life in a simple and lovely way. Taking advantage of the situation makes the emphasis relaxed, and Guan Zi Zai comes into being.
▼夜晚庭院
courtyard in the night
三
兼容
创造体验
Compatibility
Creating experience
放在大尺度上,房屋本身就是在实践和外部的兼容性,设计师首先要做一个容器承载。在有风景的立面开窗,根据景观决定窗的尺寸,西山和屋前的河景从立面窗口涌入,天窗则收集自然光,人在一层和二层向外看到的风景是不同的。厨房的开窗让厨师变成了舞台上的角色,埋头烹炸以外工作似乎有了更多乐趣和互动,被看见的另一种表述是得到尊重。
From a large-scale perspective, the house itself is the compatibility between practice and outside, so the designer should first make a container to carry them. Windows are open on the side with a view, and the window size is determined according to the landscape. The view of the Xishan Mountain and the river in front of the house pours in from the window, and natural light comes in from the skylight, thus different scenery can be seen on the first and second floors. The window in the kitchen turns the chef into a role on the stage, adding more fun and interaction except for cooking. When one can be seen, one can be respected.
▼内立面的开窗
fenestration on the inner facade
室内构成的线条都基于建筑本身的筋骨牢牢握在一起,与凝聚了上世纪70年代情感和工匠精神的红砖和屋顶一起撑住整栋建筑。拆除旧扶梯后部分裸露了砖墙,与入口新建的白色旋转扶梯不断交换怀旧与新知的故事。
The lines of the interior are firmly held together with the building texture, which supports the entire building together with the red brick and roof that embodies the sensibility and craftsmanship of the 1970s. The partially raw brick wall after demolishing the old staircase and the new white spiral staircase at the entrance constantly exchanged nostalgia and new stories.
▼茶饮区
tea room
▼从茶饮区看向入口旋转楼梯
view to the spiral staircase at the entrance from the tea room
▼旋转楼梯
spiral staircase
从立面到内部,材料的使用延续尊重感以及合理性。使用水泥、实木、主板、玻璃和钢板,通过拼贴组合创造丰富感和张力,同时用自然和材料本身的质朴将空间氛围控制在舒适得宜的自洽里,材料的受限反而给出方向。
From the exterior to the interior, the application of materials extends the sense of respect and rationality. Cement, solid wood, slab, glass, and steel plate are used to create richness and tension through collage and combination. At the same time, nature and the simplicity of the materials are used to control the space atmosphere in a comfortable and appropriate self-consistency. In this way, the design direction is defined by the material limitation.
▼室内庭院
indoor courtyard
▼裸露的砖墙
exposed brick wall
四
即兴
生命力涌动
Improvisation
Surging vitality
每一笔下去都给材料和自然留有余地,带来了空间和自然与人的交融,这种动态平衡让空间饱含生命力。
Enough room left for materials and nature brings the harmonious integration between space, nature, and people. This dynamic balance makes the space full of vitality.
▼从餐厅看向庭院
view to the courtyard from the dining room
北京的天空有时候是灰蒙蒙的,大面积的白色墙面把底色净化出来。庭院里种植大量竹子表意东方,营造出区别于村镇所在的另一个自然,像是北京对江南。无论阳光、雨水还是声响都没有被隔在外部,远道而来的南方芭蕉和北方植物一起分享花房,新旧、内外、南北、城乡在进退皆有余地的表达下消融了边界。
The sky in Beijing is sometimes gray, and the large area of white walls purifies the palette. A large number of bamboos are planted in the courtyard to represent the East, creating another natural landscape different from the villages and towns, like Beijing versus Jiangnan. Neither sunlight, rain nor sound is not isolated from the outdoor, and the southern canna and northern plants share the flower house together. The boundaries between the old and new, inside and outside, north and south, urban and rural areas are dissolving under the expression that there is room for approaching and retreating.
▼庭院中的植物与山石
plants and stones in the courtyard
业主在设计完成后常常在一天里的不同时段带朋友在房子里走一走,每一次感叹于变幻莫测的植物形态和流动光影,来做客的人无需招待就自己找到了位置坐下来,孩子们则一直发明新游戏,浩大沉静的即兴演出全天无休。
After the design is completed, the owner often invites friends to walk into the house at different times of the day. Every time he marvels at the unpredictable plant forms and flowing light and shadow; the guests will find a place to sit down as if at home and kids keep inventing new games; such great quiet improvisation is staging there all day long.
▼餐厅
dining room
▼从餐厅看向茶饮区
view to the tea room from the dining room
▼公共休息区
public lounge
▼壁炉休闲区
lounge with fireplace
▼屋顶露台
roof terrace
五
乡村
传统当代化的介质
Countryside
Modernized tradition medium
王大泉喜欢那些“活在自我意识里”的设计,室内家具全部来自国内设计品牌,在一起时又因为先验的共性而融洽;器物则从更远处而来,明清的茶器盛具在这里回归日常;珍贵的摩崖石刻和光同尘,与时舒卷;花艺师万宏斟酌很久的一剪成全了走廊尽头的宋意;正对庭院水池的飘窗榻上,一把提梁壶端然;废弃酒厂的女儿红酒缸经过处理,给庭院的夜晚增加了无尽乐趣。
Wang Daquan likes designs that “live in self-awareness”. All interior furniture comes from domestic design brands, which are harmonious when put together because of their prior commonality; utensils of the Qing and Ming Dynasty return to daily life; the precious cliff stone-carved inscriptions exist with light and the times; the delicate artwork cut by the florist Wan Hong reveals a feeling of Song Dynasty at the end of the corridor; on the bay window couch facing the courtyard pool, a beam-lifting teapot sits silently; the abandoned Nu Er Hong rice wine jar has been transformed to add endless fun to courtyard nights.
▼古色古香的装饰和器物
decorations and ornaments with a touch of traditional culture
庙堂的和江湖的同处一个空间,乡土给了一个广阔天地,中国人的传统精神体验在当代乡村呈现出舒展自然的状态,设计的介入就像掸掉一层浮土,珍贵的东西袒露出来。
设计从解决问题出发,慢慢走到文化和情感的部分,就像稻子从泥土里生长出来,自然且有迹可循。
The elements belonging to the imperial court and secular coexist in the same space, and the countryside has given a vast world for it. The traditional spiritual experience of the Chinese presents a natural state of stretching in the contemporary countryside. And the intervention of design is like dusting off so that the precious things appear.
The design starts from solving problems and slowly goes deep into the cultural and emotional part, just like rice growing out of the soil, natural and traceable.
▼走廊
corridor
▼浴室
bath room
结语
Conclusion
除去房屋主人给予的充分信赖,现场工人也充分发挥了他们的创造力,因地制宜地和设计师共同处理了许多复杂难解的施工内容,这是一次由许多人共同参与的创作,我们在其中看到了可贵的工匠精神。
In addition to the full trust given by the house owner, the workers on site also gave full play to their creativity and worked together with the designer to overcome many complex construction difficulties according to local conditions. Through this creation by the participation of many people, the precious craftsman spirit is outstanding.
▼夜景
night view
许倬云谈及中国文化的精神都是人与自然动态的调和,单从这一点来说,乡村和它孕育的人更有先一步感知洞察的禀赋,设计做了一次内观,然后静待其变。
Prof. Cho-Yun Hsu said that the Chinese cultural spirit is the reconciliation of man and nature. From this point of view, the village and the people it nurtured have the natural endowment of perception and insight in advance. The design has practiced a vipassana and then waited for it to change.
▼一层平面图
first floor plan
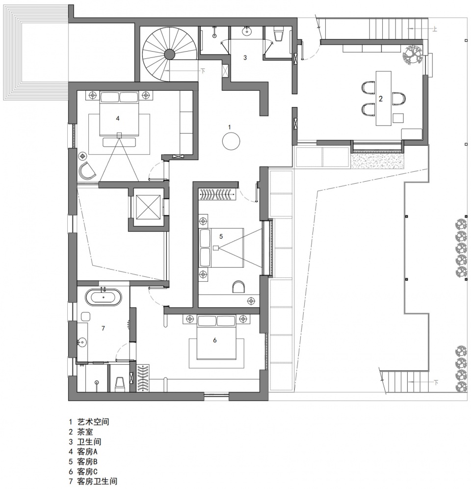
▼二层平面图
second floor plan
▼三层平面图
third floor plan
项目名称:观自在
项目类型:室内+景观
项目地点:北京市海淀区
主创设计师:王大泉
项目策划:王坤
设计时间:2021-2022
项目面积:442㎡
灯光设计:光宴盛品
家具品牌:素元,梵几,壹集
花艺:万宏
图片:史云峰
影片:杜鹏
文案策划:NARJEELING那几岭
Project name: Guan Zi Zai House
Project type: Interior + Landscape
Project location: Haidian District, Beijing
Chief designer: Wang Daquan
Project Planning: Wang Kun
Design time: 2021-2022
Project area: 442㎡}
Lighting design: Guangyan Shengpin
Furniture brands: Thrudesign, Fnji, Yiji
Floral: Wan Hong
Image: Shi Yunfeng
Video: Du Peng
Copywriting planning: NARJEELING
客服
消息
收藏
下载
最近



































