查看完整案例

收藏

下载
01. 项目概要
Overview
台岭乡位于江西省吉安市永新县,中国革命的摇篮——井冈山下,是一个拥有约12000人口的农村。永新县气候温暖,自然条件得天独厚,拥有数个自然保护区。本案是对台岭乡的一个综合文化站进行公益改造。
▼视频,Video
Tailing is a rural village with a population of around 12,000, located in Yongxin County, Ji’an, Jiangxi Province, at the foot of the cradle of the Chinese Revolution – Jinggang Mountains. Yongxin County is blessed with a mild climate and rich nature and has a number of nature reserves. This project is a public benefit renovation of a comprehensive cultural station in Tailing.
▼鸟瞰,Aerial view
▼建筑外观,Exterior view
改造前,这个500㎡左右的综合文化站被村里的居民用作看书、打麻将和喝茶的活动场地。另一方面,文化站紧邻住宅区,周围环境杂乱无章,场地的设计和空间没有有效地发挥作用。此外,在过去的几年里,村里的人口一直在严重下降,文化站的使用者也在减少。我们计划将该文化站改造为当地的图书馆和社区中心。
Before the renovation, this comprehensive cultural station of about 500㎡ was used by villagers as a venue for reading books, playing mahjong, and enjoying tea. The cultural station was adjacent to a residential area, the surroundings were cluttered, and the design and space of the venue did not function effectively. In addition, the population of the village has been severely declining over the past few years, and the number of users of the cultural station was also decreasing. We planned to transform the cultural station into a local library and community center.
▼台岭乡环境,Context
▼改造前后建筑对比,Exterior view before and after renovation
本案由台岭乡乡贤刘佩英女士(现任职于中版集团)为回馈故乡而发起,COLORFULL昱景设计团队联合策划,并提供选址、设计、监理的全过程公益服务。
This project was initiated by Ms. Liu Peiying (now working for China Publishing Group), a native of Tailing Township, to give back to her hometown, and COLORFULL DESIGN team jointly planned and provided the whole process of site selection, design and supervision of public welfare services.
▼建筑立面,Building facade
02. 设计理念
Design Concept
台岭乡只有极少的公共设施,缺乏供当地居民交流的场所。用地周边有村中心广场、诊所、健康活动中心等公共设施,中心广场周围有住宅楼。为此,我们在设计中充分考虑到了对周边居民的影响。
Tailing has few public facilities and lacks places for villagers to interact with each other. Public facilities such as the central square, a clinic, and a health activity center are located around the site, and houses surround the central square. Therefore, the design was carried out with full consideration of the impact on the surrounding residents.
▼开云书房日景,Kaiyun Library, daytime view
在设计之初,我们便设想了一个田园诗般的开放设施,融入农村丰富的自然环境,并对当地特有的自然材料和既存空间进行再利用。本案的主题并非建设一个封闭的图书馆,而是打造一个向公众开放的“堂”,使人们可以自发地在此聚集,由此为居民们提供一个老少咸宜的学习、交流、娱乐和休闲的场所,为他们的日常生活增添一些小小的幸福感。
▼轴测图,Axon
From the outset, we envisioned an idyllic and open facility that would incorporate the rich natural environment of the countryside and reuse the natural materials and existing spaces that are unique to the area. The theme of the project is not to build a closed library, but to create a “hall” where people can gather spontaneously, thus providing a place for all ages to learn, interact, play, and relax, adding a sense of well-being to their daily lives.
▼书房和周围建筑,The library and the adjacent buildings
▼门廊夜景,Porch view by night
▼室内和广场相互融合,The edge of the interior and the square naturally fade away
03. 细部说明
Details
本案重点是与场地东部广场的关系。现有的混凝土立柱间距为4米,我们在立柱的网格中设置了大型的阶梯,以此来打造一种从大阶梯上层延展到东部广场的连续性空间体验。此外,地面的材料与颜色也是连续的,当落地窗完全打开时,室内和广场之间的界限会自然地融合在一起,形成“无界”的空间感。
▼书房入口,Entrance
The focus of this project is on the relationship between the site and the square on the east. The existing concrete columns are spaced at 4m apart and we set up a grand staircase in the grid of the columns as a way of creating a continuous spatial experience extending from the upper level of the grand staircase to the eastern square. The flooring is also continuous in material and color. When the floor-to-ceiling windows are fully open, the edge of the interior and the square will naturally fade away, creating a spatial sense of “borderlessness”.
▼设计示意,Axon gif.
▼首层空间,The ground floor
▼阶梯式空间序列,The stepped layout
▼阅读阶梯,The stepped reading area
▼二层空间,The upper floor
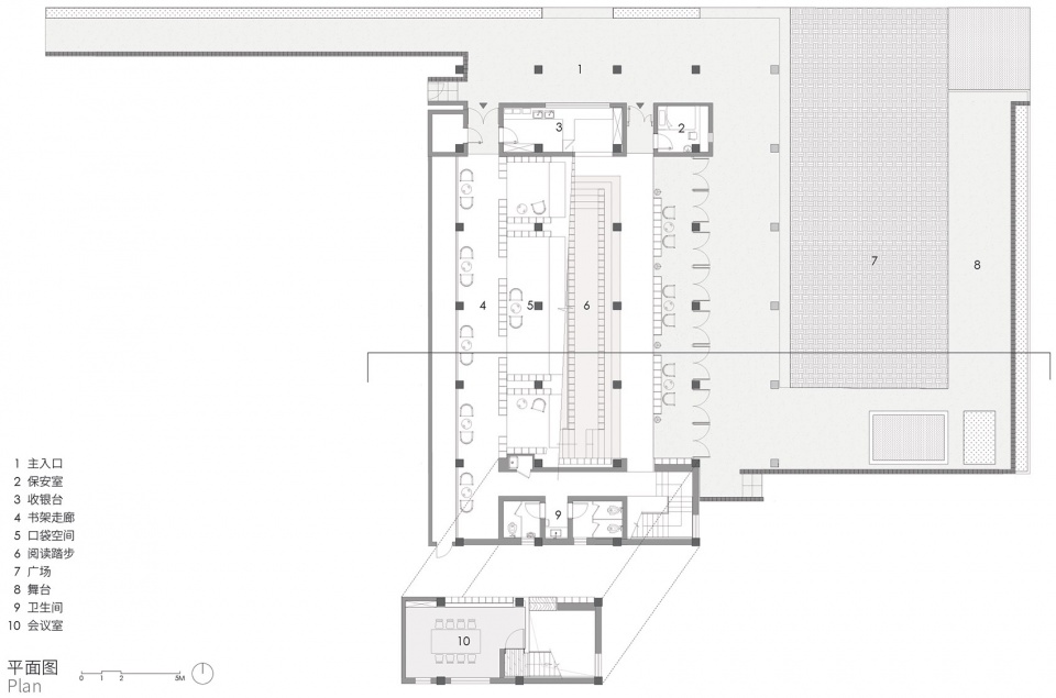
建筑在平面上规划为三个区域:入口空间、大厅空间与功能空间。通过结构的设计,坐在大阶梯处,广场的景色一览无余。功能区在一楼配置了卫生间,二楼配置了高私密性的会议室。
The building is planned into three areas: the entrance space, the hall space, and the functional space. Through the design of the structure, the view of the square can be seen from the grand staircase. The functional area is equipped with a washroom on the first floor and a private meeting room on the second floor.
▼平面图,Plan
大阶梯 | Grand Staircase
大阶梯有足够的宽度,面对着广场而设,宛如剧院的座位面向着舞台。阶梯本身是设计为书架使用的。此外,在阶梯下的空间里还设计了山洞状的私人阅读空间。
The grand staircase is wide, facing the square, like the theatre seats facing the stage. The staircase itself is designed as bookcases. In addition, cave-like private reading spaces are set inside the steps.
▼阶梯融合书架功能,The staircase itself is designed as bookcases
▼大厅空间,Reading hall
▼走廊和楼梯间,Corridor and stairwell
天花 | Ceiling
弧形的天花板将三个区域连接起来。天花板的曲面反射来自天窗的自然光,使整个空间更加明亮。天花板的材料采用了铝制百叶,上面涂有用当地土壤制成的灰浆。通过弧形天花,呈现出了一个既有质感又柔和的大厅空间。
A curved ceiling connects the three areas. The curved surface of the ceiling reflects the natural light from the skylight and brightens the whole space. The ceiling is made of aluminium louvers coated with mortar made from local soil. The curved ceiling helps present a textured and soft hall space.
▼弧形天花板,The curved ceiling
▼天花板的曲面反射来自天窗的自然光
The curved surface of the ceiling reflects the natural light from the skylight
▼书架走廊,Bookshelf corridor
▼口袋空间,Pocket reading area
04. 愿景
Vision
中国的城市与农村,在生活和环境方面有着相当大的差异。我们希望通过公益项目的设计为乡村的建设尽绵薄之力。
In China, there is a considerable difference between urban and rural areas in terms of life and environment. We hope to contribute to the construction of the countryside through the design of public welfare projects.
▼乡村里的书房,The library in the rural area
▼立面夜景,Night view
“拨云见日,开云见天”的开云书房历时16个月终于圆满落成,我们在现场收获了孩子们满足的笑容。希望开云书房能成为村民们休憩与交流的地方,也希望在这里学习和玩耍的孩子们健康成长。
It took 16 months to complete the Kaiyun Library. We were so delighted to see the smiles of the children on the spot. We hope that the library will become a place for villagers to rest and communicate, and that the children who study and play here will grow up healthy and joyful.
▼场地平面图,Site plan
▼剖面图,Section
项目名称:开云书房
项目地址:江西省吉安市永新县台岭乡
设计方:COLORFULL 昱景设计
项目规模: 500㎡
公司网站:
项目设计 & 完成年份:2022
设计指导:赵宗阳、小野良介
建筑方案设计:川合丰
建筑深化设计:林佳史
室内方案设计:川合丰
室内深化设计:张凡星、赵英伦、秦志伟、朱丽艳
摄影版权:山兮建筑空间摄影
客户:台岭乡镇政府
材料:科定板、红砖、实木地板、深灰色铝板、夯土铝管
Project name:Kaiyun Library
Project location:Tailing Township, Yongxin County, Ji’an City, Jiangxi Province
Design:COLORFULL YUJING DESIGN
Project scale:500㎡
Website:
Design year & Completion Year:2022
Design Guidance:Sunny Zhao, Ryo Ono
Architecture Schematic Design : Yutaka Kawai
Architecture Design Development : Yoshihumi Hayashi
Interior Schematic Design : Yutaka Kawai
Interior Development Design: Fanxing Zhang,Yinglun Zhao,Zhiwei Qin ,Jolie Zhu
Photo credits:Shanxi studio
Clients:Tailing Township Government
Brands / Products used in the project:Keding board, red brick, solid wood floor, dark gray aluminum plate, Stucco aluminum extrusions
客服
消息
收藏
下载
最近


































