查看完整案例

收藏

下载
Makio住宅位于吉隆坡一个居住区的一角,委托人希望拥有一处极简舒适的住宅,以满足家庭和个人所需。设计师从原空间中生成概念,引入了阳光与景观视野,通过材料塑造出宽敞的空间感。
Makio House is a corner lot unit located in a guarded neighbourhood of Kuala Lumpur. The client wanted a minimalistic and comfortable home to suit his family and personality. The concept was derived from the original space–to embrace the light and views, then heighten spatial experience through materiality.
▼空间概览,overview
设计旨在通过实木板材的包裹将原空间中的元素统一起来,在原空间的基础上增加了楼梯和夹层。醒目的楼梯占据了房屋的中心位置,连贯的材料一直延续至上方夹层,在起居区四周形成一条画廊,拓展了现有空间。
The idea was to unify the original architecture elements in the house through the wrapping of solid timber panels to connect the stair to the first-floor mezzanine. The prominently positioned stairway, curated as a centrepiece of the house. The continuity of the material was carried through to the upper mezzanine with an addition of a galleria that extends the existing floor plate to wrap around the periphery of the double volume living spaces.
▼起居空间,living space
▼看向岩石庭院,view of the rock garden
▼开放厨房,open kitchen
▼醒目的室内楼梯,the prominently positioned stairway
▼楼梯与平台,platform and the stairs
▼楼梯通向夹层空间,stairs leading to the mezzanine
木质走廊将架子、窗与储存空间整合为一体,尽头角落处的学习床仿佛悬浮于树冠之中。改造后的花园中布置岩石雕刻,提供了一处平静的庇护所。
This space serves as a walkway with shelves, windows and storage. At the end nook, lies a daybed/study area that floats close in view of the treetops. The garden was transformed into a rock sculptured garden that provided a calm refuge.
▼楼梯上的视角,view on the stairs
▼夹层空间,view on mezzanine
▼角落的学习区,a daybed/study area
主卧通过与现有卧室合并使空间得到拓展,回应了开放空间的概念。窗户特意设置在较低的高度以使自然光得以渗透进整个房间,明亮的氛围放大了人们对空间的感知。
The master bedroom was enlarged at the expense of another existing bedroom to form an open space concept. The interior walls here were intentionally built below ceiling height to allow the light to diffuse throughout entire the room. This bright atmosphere amplifies the expansion perception of the space.
▼主卧,view on mezzanine
▼衣橱区,walk in wardrobe
▼浴室,the bathroom
设计将儿童房打造成一处捉迷藏的立体空间,3层床铺的底层装备了抽屉床。通过对现有天窗的改造,新的平台使空间可以从墙体探出并延伸至街区中。
The kid’s bedroom was reimagined as a hide and seek play of levels — a 3-tiered bunk bed with a pull out bed and an alcove to peek out into the neighbourhood through an existing clerestory window.
▼儿童房,the kid’s bedroom
总体来看,枫木、大理石和白色的材料与现有元素和自然相互作用,营造出一个和谐宁静的居所。
Overall, echoes of maple, marble and white interplayed with the existing elements and nature to offer an environment of balance and serenity.
▼室内灯光,lighting view
光井中的铁质楼梯通向屋顶平台,抬高的室外起居平台提供了一处面向城市天际线的观景点。
A steel stairway was added in the lightwell leading up to the roof level. Here, a platform is raised over the roof and acts as a viewing deck to emulate an outdoor living room overlooking the city skyline.
▼屋顶平台,roof terrace
▼露台夜景,night view
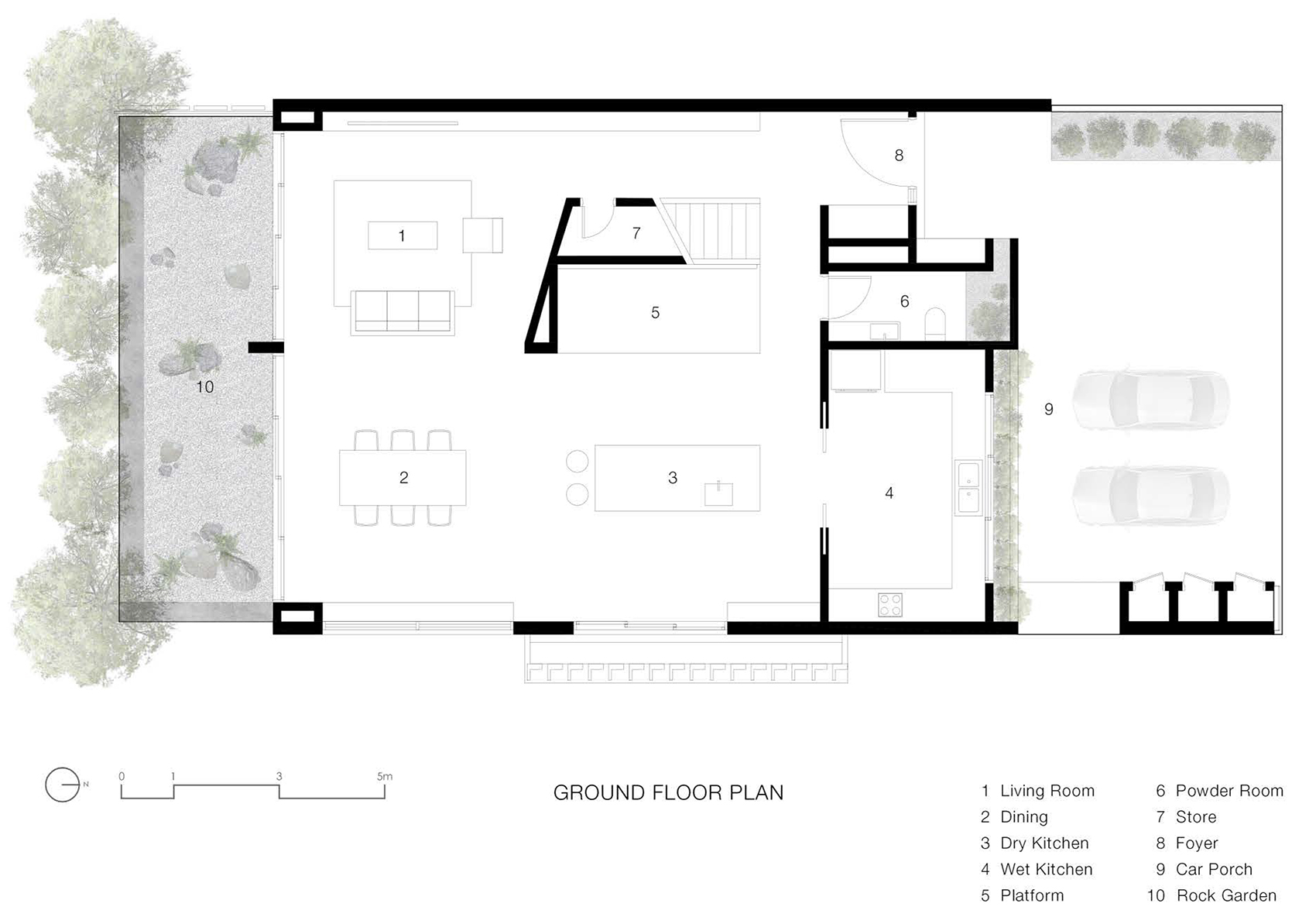
▼首层平面图,the ground floor plan
▼夹层平面图,the mezzanine floor plan
▼二层平面图,the first floor plan
▼屋顶平面图,the roof plan
▼剖面图,sections
Project title: Makio House
Architect: Fabian Tan Architect
Built up Area: 4376sqft
Location: Kuala Lumpur, Malaysia
Photographer: Ceavs Chua of BricksBegin
客服
消息
收藏
下载
最近



























