查看完整案例

收藏

下载
这套可以俯瞰海滨和市中心全景的豪华顶层公寓由Bureau Fraai设计。公寓所在的建筑曾为办公楼,现在已被改造成高端住宅楼。为了让这套顶层公寓的每个位置能享有180度的全景视野,设计师决定在室内引入独立的橡木体量,以创造出开放的空间平面,避免传统隔墙布局遮挡理想的景观视野。
Bureau Fraai designed a luxurious penthouse with panoramic views towards both the seaside and the city centre in a former office building, that had been transformed into a high-end residential building. To maintain the 180-degree views from every spot in the penthouse Bureau Fraai decided to introduce free-standing oak volumes creating an open floor concept instead of a traditional layout with walls blocking the view.
▼项目概览,overview
该公寓面积近300平方米,天花板高度达4.75米,设计旨在尊重并充分利用周边的自然与人文环境,一侧拥抱大海,另一侧拥抱城市的美丽全景。这些迷人的景色沿着整套顶层公寓的外立面延伸,从地板到天花板的大面积开窗构成了外界环境的景观画框。为了保持甚至最大化本项目的景观优势,设计团队决定不在室内空间中设置任何可能阻碍视线的隔墙。独立的橡木体量与开放式平面布局,保证了立面的开放与通透。这样,周围的环境就能够完美渗透到顶层公寓的每个角落,让居住者充分意识到季节的变化,观赏到不同的潮汐、日出与日落美景。
▼分析图,axonometric drawing
For the casco penthouse of nearly 300 square meters with a ceiling height of up to 4,75m, Bureau Fraai was asked to make a design that respected and fully embraced the beautiful panoramic views of the sea on one side and the city on the other side. The facades framing these mesmerizing views consist of window frames from floor to ceiling along the whole width of the penthouse. To maintain and even maximise these views Bureau Fraai decided to not introduce any obstructing walls. By designing an open floor plan with free-standing oak-wood volumes the façade was kept clear. This way, the surroundings are always present in every part of the penthouse making you fully aware of the changing colours of the seasons, the tides and of the sunrise and sunset that are never the same.
▼客厅,the living room
▼开放式平面没有设置任何可能阻挡视线的隔墙,open plan without any partition wall that may block the view
公共区域主要被规划在建筑的短边一侧,即公寓的西南侧,平面成平躺的T字形,包括:架高的客厅、媒体/休息室、用餐区和厨房。这些区域均直接连接到室外露台。为了进一步加强室内空间与周围环境的联系,建筑师为公寓地板、天花板和现有的墙壁选择了白色和浅灰色的中性色调。独立的空间体量则以浅色橡木呼应了海滩以及沙丘的色调,进而与空间中其他的中性色调结构元素形成对比与平衡。同时,这些木制空间单元也以明快的颜色、细腻的纹理和精致的细节创造出温暖而自然的触感。厨房和餐厅则采用了朴素的灰色,呼应了现代城市的天际线,同时也与室内的白色与木色形成和谐的对比。
At the short end of the penthouse the common areas are organised as a tripod containing the elevated living room, the media & lounge room and the dining area and kitchen. These areas are directly connected to the outdoor terraces. To strengthen this relation with the surroundings the architects chose a neutral basis of white and light grey colours for the floors, ceilings and existing walls. In a well-balanced contrast to these neutral colours the free-standing volumes on the seaside are relating to the colours of the dunes and beaches and therefor materialised in a light oak wood. These volumes create a warm and natural touch with its colour, texture and refined details. As a contrast, in the kitchen and dining room the sober grey colours refer to the modern city skyline.
▼厨房餐厅,kitchen-dining
▼地板、天花板和现有的墙壁选择了白色和浅灰色的中性色调,
neutral basis of white and light grey colours for the floors, ceilings and existing walls
▼媒体/休息室,the media & lounge room
公寓平面的中心,天花板高度达4.75米,建筑师在这里引入了矩形的中央体量,以容纳技术和储藏室、卫生间,以及第二间浴室。体量的顶部与天花板之间形成夹层,进而创造出额外的存储空间,同时也创造出独特的空间布局,将周围天空不断变化的色彩引入室内空间之中。
▼剖面图,section
At the core, with a ceiling height of 4,75 meter, a rectangular central volume is introduced accommodating the technical- and storage room, toilet and second bathroom. On top of this volume a mezzanine creates extra storage spaces and at the same time provides a look-out to the unique interior and ever-changing colours of the surrounding skies.
▼矩形的中央体量创造出夹层空间,the rectangular central volume creates mezzanine and extra storage space
▼由私人区域走廊看向日间生活区域,viewing day area from the hallway of private area
▼橡木体量中容纳了私人区域,the oak volume accommodates private areas
▼木制空间单元创造出温暖而自然的触感,
the wooden space units create a warm and natural touch
▼细部,details
独立的木制体量中容纳了一系列私人空间,如:主浴室、步入式衣柜、桑拿房和办公空间。同时,这些体量大致上也将公共区域和走廊与两间卧室“分开”。如果需要,一系列整齐地收纳在木制体量中钢制滑动门可以完全关闭,来实现各个空间的独立与分离。在夜间,卷帘和无玻璃门可以在视觉上将卧室与公寓的其他部分隔开。
The free-standing wooden volumes accommodate private functions such as the master bathroom, the walk-in closet, the sauna and the office space. At the same time these volumes roughly ‘separate’ the common areas and hallway from the two bedrooms. If needed a physical separation can be made by closing fully glazed steel sliding doors that are integrated neatly in the wooden volumes. During the night rolling blinds and non-glazed doors can visually close-off the rooms from the rest of the apartment.
▼卧室,the bedroom
▼浴室,bathroom
▼桑拿房,the sauna
▼客厅夜景,night view of the living room
▼露台夜景,night view of the terrace
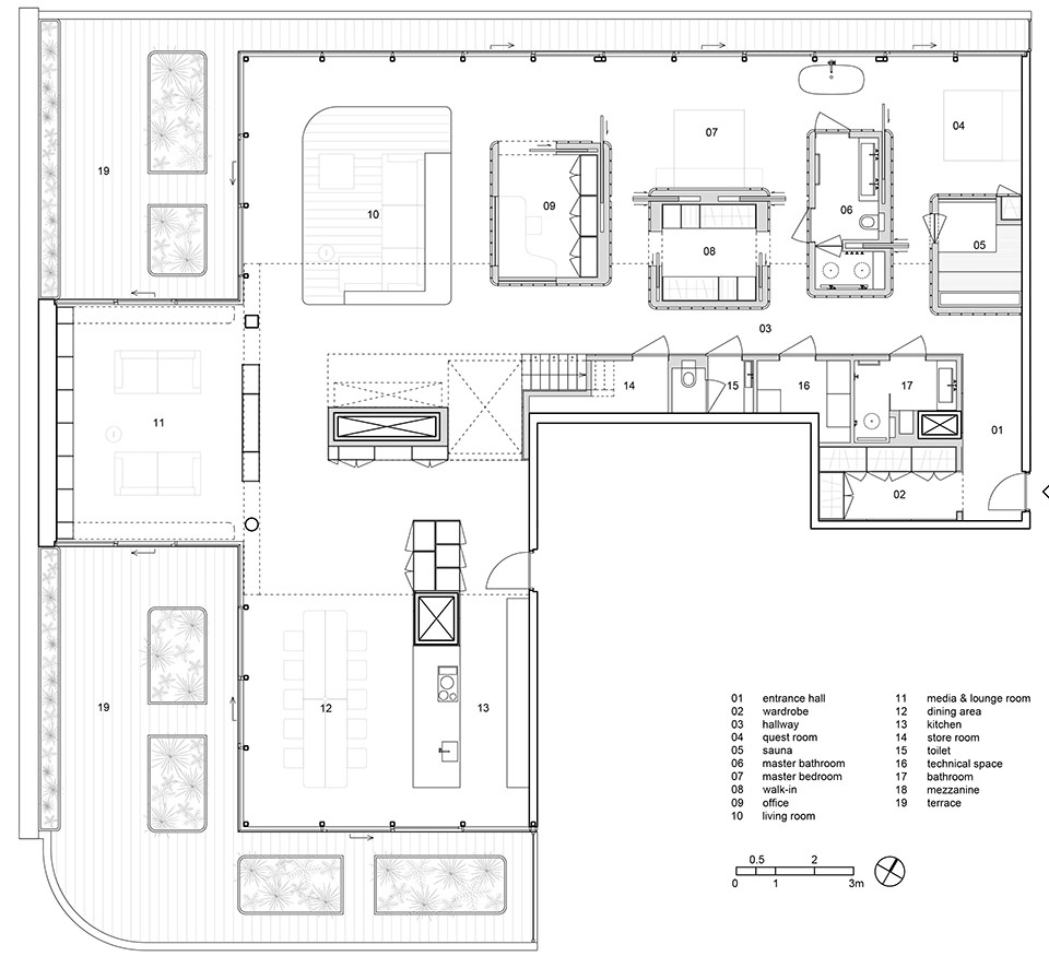
▼平面图,plan
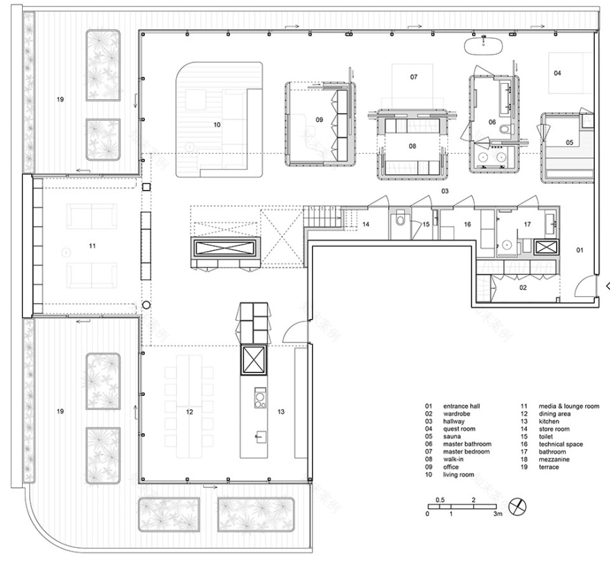
▼屋顶平面图,floor plan
Project info: Status: Completed 2022
Client: Private
Location: The Netherlands
Architect: Bureau Fraai
Interior builder: Metnils Interieur Maatwerk
Contractor: Meerland Bouw
M&E Installations: Metico, Van den Burg & Van Schaik
Construction management: Van Reisen Bouwmanagement & Advies
Lighting consultant: Van Dijk & Partners Licht + Advies
Landscape architect: Joost Emmerik
Sanitary consultant: Sjartec
Sauna specialist: Saunabouw Wilton
Sound & Media consultant:
All4Control
Project furnishing: Bigbrands & Siersema
Photography: Flare Department – Mart Goossens
Products: Steel doors: De Rooy Steel Doors
Elektrical switches and sockets: Jung
Sanitary ware: The Watermark Collection, Geberit, Tece, Frost, Jee-O
Library ladder: Juvama, MWE
Floor finishing: Senso
Furniture: &Tradition, Ligne Roset, Vitra, Herman Miller, Gubi, Auping
Lighting: Foscarini, Tonone, Deltalight, Modular, Zumtobel, Flos, Marset, Lumina
Soundsystem: Omniwave, Lyngdorf, Roon
客服
消息
收藏
下载
最近

























