知末
知末
创作上传
VIP
收藏下载
登录 | 注册有礼

猫和老鼠游戏民宿 | 北京怀柔水关长城边的奇幻体验

2023/03/14 10:26:20
查看完整案例
微信扫一扫
收藏
下载
游戏民宿
B&B and Games
2020年底,北京怀柔水关长城附近,我们同时为小喜民宿设计了三个院子,比起叫民宿也许乡间旅店更为贴切。
At the end of 2020, near the Great Wall at Shuiguan in Huairou, Beijing, we designed three projects for Xiaoxi B&B simultaneously, perhaps it is more appropriate to call them rural hotels than B&Bs.
▼视频,Video
我设计也开过此类旅店,会喜欢能够“脱离日常”居住体验和具有“此时此地”生活方式的。而作为载体的房子,首先并不是“家建筑“,因为鲜有主人的真实生活与记忆,却更像是具有上述特点的“主题乐园”,在真实与幻境间抽离往复的游戏罢了。
既然是游戏,必然有规则,业主要求简明,尽量保留现有房屋的前提下三个院子三个模样。而具体的玩法,我们来编。
▼项目一瞥,Preview
猫和老鼠游戏民宿 | 北京怀柔水关长城边的奇幻体验-8
I have designed and run such hotels before, and I would love to have a unique living experience of “breaking away from daily life” and a lifestyle of “here and now”. Architecture, as a carrier of this conception, is not a “home building” in the first place, for it holds little real life and memory of the owner, instead it resembles a “theme park” with the characteristics above, a reciprocating game between reality and fantasy.
Since it is a game, there must be rules. The owner’s requirements are simple: to keep the characters of the three existing houses. And we will make up the rules.
▼三个院落与长城位置关系,Location map
猫和老鼠游戏民宿 | 北京怀柔水关长城边的奇幻体验-12
危险长城
The Great Wall and the Danger
场地难得,明长城近在咫尺,强烈的特征成了不可忽略的吸引,反而使得我多少有些排斥。
我的习惯是找这事跟人的情感关系,而长城何以动人?恰因其超人的存在。它并不源于埃及金字塔,纳斯卡线条那种人类与神对话的情由,长城是由“危险“而来。因对“危险”的恐惧,而择选了最“危险”的山脊,这足以改变大地维度的能量和勇气,即使我们从小熟知,但当亲身所处,仍会被情理之中的意料之外所不禁动容。
The site is unique with the Great Wall from the Ming Dynasty close at hand. The strong characteristics have become an attraction that cannot be ignored, which makes me more or less reluctant.
My habit is to look for the emotional relationship between things and people. Yet how is the Great Wall touching? Through its superhuman existence. It does not originate from human’s willings to talk to God like the Egyptian pyramids or the Nasca Lines. The Great Wall comes from “danger”. Out of the fear of “danger”, we chose the most “dangerous” mountain. This energy and courage powerful enough to change something as great as the earth, even though we have known it from an early age,still fantasize us by this expected surprise when we face it.
▼长城,The Great Wall
猫和老鼠游戏民宿 | 北京怀柔水关长城边的奇幻体验-20
▼危险关系概念图,Concept
猫和老鼠游戏民宿 | 北京怀柔水关长城边的奇幻体验-22
因此,在安身为本的建筑中制造些许“危险”挑拨,倒是让我提起了兴致。是否会带来不同的刺激和力量呢?我不知道,但好奇。
于是便把这场游戏设定为关于“危险”三出戏。
Therefore, to create a little “danger” provocation in the construction of settling down architecture makes me interested. Will it bring some different stimulation and strength? I don’t know, but I’m curious.
So we set the game as three small attempts about “danger”.
▼三场戏,Three acts
猫和老鼠游戏民宿 | 北京怀柔水关长城边的奇幻体验-28
第二出戏 《猫和老鼠》
Act II:Tom and Jerry
生物多样
翻过鹞子峪堡北面山梁,来到二道关村口,遮天蔽日的核桃树林使人一下凉爽轻松了许多,而第二出戏的院落正在树林后探头探脑。第一次进入院中,7、8只小猫正在嬉闹,2只土狗摊懒在阳光下,一点没有看家护院的意识,几只母鸡倒挺精神,来回溜达着无所事事。
这番场景让我想到动画片《猫和老鼠》中,貌似危机四伏实则共栖共游的奇妙画面,换个当下的词,“生物多样性”嘛不就是。而年轻人的共居空间似乎有着类似属性,尺度上的亲密,时公共时私密,忽远忽近,撩拨着彼此的危险关系。
▼场地现状,Site photo
猫和老鼠游戏民宿 | 北京怀柔水关长城边的奇幻体验-35
▼改造后的院落,The courtyard after renovation
猫和老鼠游戏民宿 | 北京怀柔水关长城边的奇幻体验-37
胡同森林
而如何建立这种多样共有的生态呢?学习我所熟悉的北京胡同也许是个办法。
胡同中,几百年前的古建,几十年前的违建,近几年的新建交织在一起;光着膀子下棋的大爷,上班求学的知识分子,探店摆拍的网红小姐姐皆是时空伴随者,这里的所有貌似鱼龙混在,但若真正居住其间,感受到的却是丰富生命活力下的宁静,似森林大海包容共生。
胡同居住空间尺度较小,人们之间的距离感私密性慢慢模糊,外向的空间属性也使得人们的性格越来越外向,慢慢形成了“北京人都特能聊”的群体画像。虽不绝对,但确有此种空间改变行为甚至性格的因素在,而这,恰恰成为我们试图营造亲密热络的空间原型之所依靠。
▼胡同森林,Hutong forest
猫和老鼠游戏民宿 | 北京怀柔水关长城边的奇幻体验-43
尺度缩小
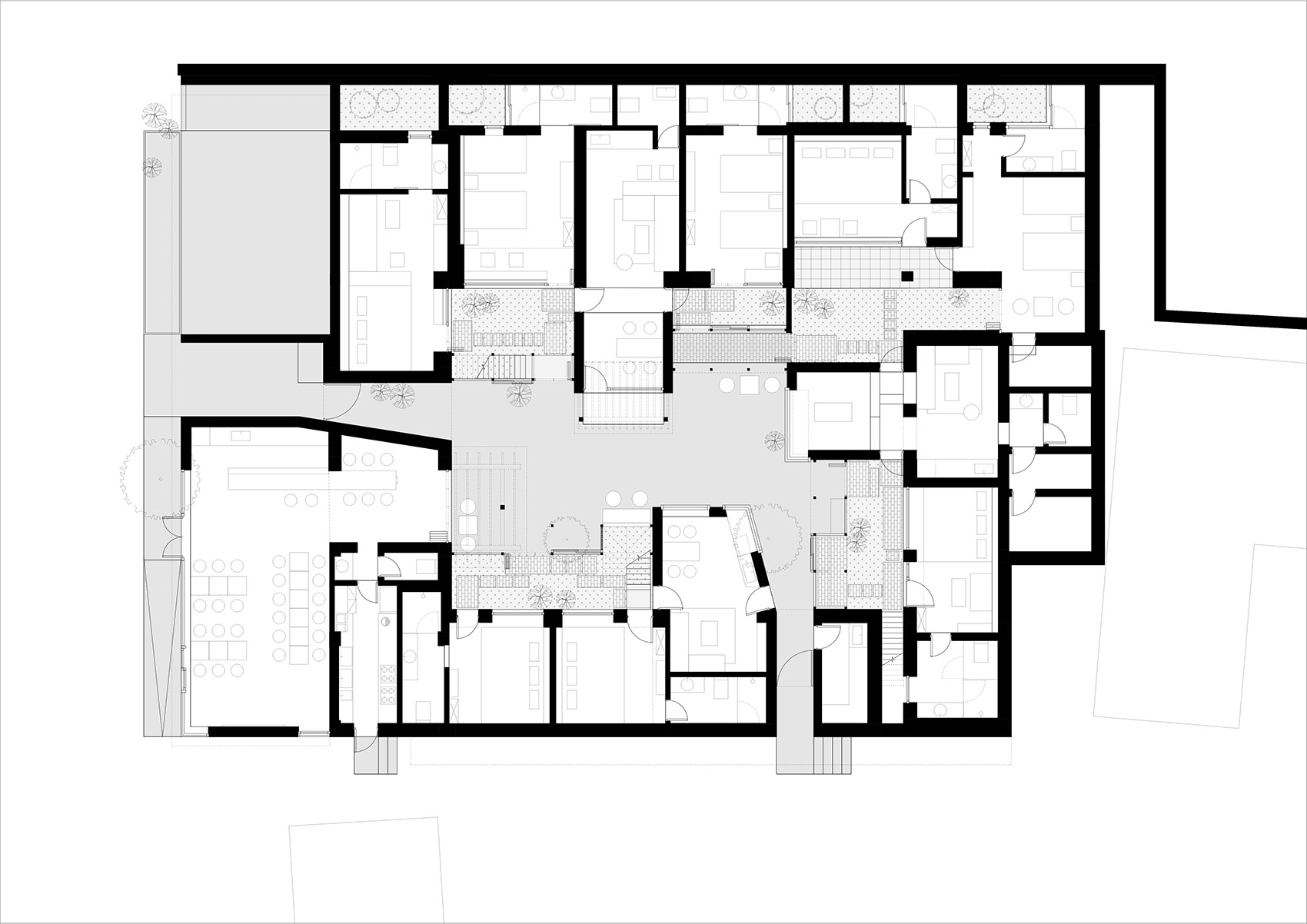
院落占地近600平米,原有房屋全部保留,加建活动室后,建筑面积400多平米。在此并不宽敞的空间内,我们细分出13个院落27个房间,容纳20来人的生活,使得居住密度逼近胡同大杂院的极限尺度关系。
在此基础上,以“拼贴式”的建构来营造无控制的时间感,同时多个层级系统彼此嵌套,统规于某种复杂关系下的亲密和宁静,是细致操作后渴望获得的空间氛围。
▼二号院总平面图,Master plan
猫和老鼠游戏民宿 | 北京怀柔水关长城边的奇幻体验-48
▼项目鸟瞰,Aerial view
猫和老鼠游戏民宿 | 北京怀柔水关长城边的奇幻体验-50
▼项目外观,Exterior view
猫和老鼠游戏民宿 | 北京怀柔水关长城边的奇幻体验-52
▼左:分院空间分析;右:公共到私密的过渡空间分析,Left: the seperated yards; right:  transition space from public to private
猫和老鼠游戏民宿 | 北京怀柔水关长城边的奇幻体验-54
▼中心院落,The central courtyard
猫和老鼠游戏民宿 | 北京怀柔水关长城边的奇幻体验-56
▼户外空间,Outdoor space
猫和老鼠游戏民宿 | 北京怀柔水关长城边的奇幻体验-58
拼贴建构
第一级,公共餐厅,厨房,游戏室,中心院落。与院外核桃林相接,最为公共的区域。
▼公共空间,Public space
猫和老鼠游戏民宿 | 北京怀柔水关长城边的奇幻体验-62
▼餐厅,Dining area
猫和老鼠游戏民宿 | 北京怀柔水关长城边的奇幻体验-64
▼吧台,Bar
猫和老鼠游戏民宿 | 北京怀柔水关长城边的奇幻体验-66
▼厨房和用餐区,Kitchen and dining area
猫和老鼠游戏民宿 | 北京怀柔水关长城边的奇幻体验-68
▼连通的室内外空间,The connected outdoor and indoor spaces
猫和老鼠游戏民宿 | 北京怀柔水关长城边的奇幻体验-70
猫和老鼠游戏民宿 | 北京怀柔水关长城边的奇幻体验-71
▼游戏室,Play room
猫和老鼠游戏民宿 | 北京怀柔水关长城边的奇幻体验-73
第二级,居住空间划分为三个可拆可合的组团,各有相对私密的活动室,小庭院,露台,卧室。其中不同形态的活动室均对中心院落敞开。红砖与水泥板的墙体;木板和红砖的地面;钢柱与木梁的骨架,波纹铝板的屋面,或躲避树木或收纳风景的各异窗口,共同组成了开放而放松的形象。
▼露台,Terrace
猫和老鼠游戏民宿 | 北京怀柔水关长城边的奇幻体验-76
▼红砖与水泥板的墙体,Walls of red brick and cement panels
猫和老鼠游戏民宿 | 北京怀柔水关长城边的奇幻体验-78
▼鸟瞰,Rooftop view
猫和老鼠游戏民宿 | 北京怀柔水关长城边的奇幻体验-80
▼庭院夜景,Courtyard night view
猫和老鼠游戏民宿 | 北京怀柔水关长城边的奇幻体验-82
猫和老鼠游戏民宿 | 北京怀柔水关长城边的奇幻体验-83
第三级,中心院落周围散落着5个小庭院,他们半遮半掩的把卧室包裹起来,像窗帘一样达成灵活变化的私密。相较于起到遮蔽隐私的实用性,我们更希望他们来打破秩序,无忌传统,肆意生长出丰富而自由的气息。
▼小庭院,Small courtyards
猫和老鼠游戏民宿 | 北京怀柔水关长城边的奇幻体验-86
▼灵活变化的私密性,Flexible and changing privacy
猫和老鼠游戏民宿 | 北京怀柔水关长城边的奇幻体验-88
第四级,8间卧室,形态各异。相邻墙体由灰色吸音毡包裹,对面墙体则用波纹金属板引入变化的光影。桦木多层板墙裙刚刚中和了些温度,定制设计的一套金属和长虹玻璃组合家具又瞄准了冰冷的机械朋克,故意与屋外的温柔划清界限,格格不入。
▼从房间望向庭院,View to the courtyard from the guest room
猫和老鼠游戏民宿 | 北京怀柔水关长城边的奇幻体验-91
▼卧室,Bedroom
猫和老鼠游戏民宿 | 北京怀柔水关长城边的奇幻体验-93
▼卧室细节,Interior details
猫和老鼠游戏民宿 | 北京怀柔水关长城边的奇幻体验-95
猫和老鼠游戏民宿 | 北京怀柔水关长城边的奇幻体验-96
第五级,屋顶露台,三部分散在小院中的楼梯和屋顶种植划分出了不同区域,若即若离间群山环绕中的天空是共有的开阔风景。内院的逼仄与天台的放肆对比鲜明。人们的距离和情绪也在这种变化间得到释放和升级。
▼屋顶视角,Rooftop view
猫和老鼠游戏民宿 | 北京怀柔水关长城边的奇幻体验-99
▼楼梯,Stairs
猫和老鼠游戏民宿 | 北京怀柔水关长城边的奇幻体验-101
▼顶棚结构细节,Pavilion structure detailed view
猫和老鼠游戏民宿 | 北京怀柔水关长城边的奇幻体验-103
▼屋顶露台,Roof terrace
猫和老鼠游戏民宿 | 北京怀柔水关长城边的奇幻体验-105
▼露台被自然景观围绕,Roof terrace surrounded by natural landscape
猫和老鼠游戏民宿 | 北京怀柔水关长城边的奇幻体验-107
猫和老鼠游戏民宿 | 北京怀柔水关长城边的奇幻体验-108
眼神交流
迷宫一样的循环空间,边界感模糊消失,胡同般亲密的尺度和随性的建造,人们的情绪似乎在上下内外间,不停被动的接收刺激而转化着,而人们的关系又同时主动转变着距离感。就像我们相互近距离凝视对方的眼睛时所得到的勇气,打破陌生,建立信任。
▼院落生活,Life in the courtyard
猫和老鼠游戏民宿 | 北京怀柔水关长城边的奇幻体验-112
▼夜景,Night view
猫和老鼠游戏民宿 | 北京怀柔水关长城边的奇幻体验-114
猫和老鼠游戏民宿 | 北京怀柔水关长城边的奇幻体验-115
▼一层平面图,Ground floor plan
猫和老鼠游戏民宿 | 北京怀柔水关长城边的奇幻体验-117
▼屋顶平面图,Roof plan
猫和老鼠游戏民宿 | 北京怀柔水关长城边的奇幻体验-119
▼二号院立面1,Elevation 1
猫和老鼠游戏民宿 | 北京怀柔水关长城边的奇幻体验-121
▼二号院立面2,Elevation 2
猫和老鼠游戏民宿 | 北京怀柔水关长城边的奇幻体验-123
▼二号院C剖面,Section C
猫和老鼠游戏民宿 | 北京怀柔水关长城边的奇幻体验-125
▼二号院G剖面,Section G
猫和老鼠游戏民宿 | 北京怀柔水关长城边的奇幻体验-127
地点:北京 怀柔
时间:2020-2021
业主:小喜民宿
面积:用地590m2, 建筑428m2
造价:210万(含景观及软装)
设计:大料建筑
建筑/室内/景观:刘阳,段琦,胡蓦怀
结构:高雪梅,李平
电气:侯延铭
水暖:果海凤
视频:朱雨蒙工作室
照片:朱雨蒙工作室,熹游迹工作室,大料建筑
《Tom and Jerry》
Location : HuaiRou, BeiJing
Time: 2020-2021
Owner: Xiaoxi B&B
Area: 590m2 of land and 428m2 of buildings
Cost: 2.1 million (including landscape and interior decoration)
Design: DL Atelier
Architecture/interior/landscape: Liu Yang, Duan Qi, Hu Mohuai
Structure: Gao Xuemei, Li Ping
Electricity: Hou Yanming
HVAC: Guo Haifeng
Video: Zhu Yumeng
Photo: Zhu Yumeng , Xi Youji Studio, DL Atelier
南京喵熊网络科技有限公司 苏ICP备18050492号-4知末 © 2018—2020 . All photos and trademark graphics are copyrighted by their owners.增值电信业务经营许可证(ICP)苏B2-20201444苏公网安备 32011302321234号
客服
消息
收藏
下载
最近