查看完整案例


收藏

下载
人生需要很多把钥匙,而托幼中心是开启人生的第一把钥匙。它就像是梦想的发源地,孩子们可以在这快乐地成长并开启他们的创造之旅!
本案位于东营市,用地面积400平方米,是一处由别墅改造而成的托幼中心。
游戏和奇思妙想是儿童的一种天性,我们希望通过设计把一个美好世界带入儿童的现实,这既是园长希望传递的美好教育价值初心,也是我们从设计角度进行的全新创意。整体空间设计健康环保中又处处透着关爱、兼具自然艺术感的文化氛围,让托幼中心成为孩子们的第二个家。
▌项目概况:
项目类型:托幼中心
设计地址: 东营市滨河北路与香山路交汇处
项目面积:400㎡
设计单位:本原设计事务所
01
一层公区
FIRST FLOOR PUBLIC AREA
一楼公区以活力治愈系的绿色,搭配阳光般的原木设计,取法自然,抒写空间之美。设置儿童玩耍区,能够减少初次入托的孩子内心的恐惧感,快速融入到托幼中心的环境中。
02
一层教室
CLASSROOM ON THE FIRST FLOOR
以原木色为主基调,色调简约、装饰图案形状柔和,自然而又富有朝气、可爱而又有活力。空间没有过多的装饰,适当的留白一方面让整个空间更加明亮宽敞,一方面也给孩子留下了创作的空间。
03
一层卫生间
FIRST FLOOR BATHROOM
温馨自然且充满童趣的卫生间,可以很好地消除孩子对陌生环境的恐惧感,激发孩子的想象力和创造力。自然光的引入,可以更好的营造温暖、舒适、明亮的氛围,给孩子们安全感。
04
二层教室
CLASSROOM ON THE
SECOND
FLOOR
摒除不必要的装饰采用简单纯粹的设计,渗透柔和的灯光与自然舒心的色调,为室内空间与户外世界之间建立横向关系和自然过渡,为孩子们创造一个平静而无限制的空间环境。
从孩子需求角度出发,没有过多的额外累赘,保有必要的功能性,满足孩子生活学习所需,在天然木色简约留白的视觉感里,最大程度呵护孩子专注力、激发创造力。
在色彩的选择上,相比于色彩明艳的托幼中心设计,我们选择了饱和度更低,也更为中性,自然的色彩,营造出静谧舒适的空间感受,也避免了孩子和老师们的视疲劳。
05
二层卫生间
SECOND
FLOOR BATHROOM
和谐的色调,搭配萌趣可爱的造型,从视觉感官上吸引儿童,培养自主如厕的好习惯。
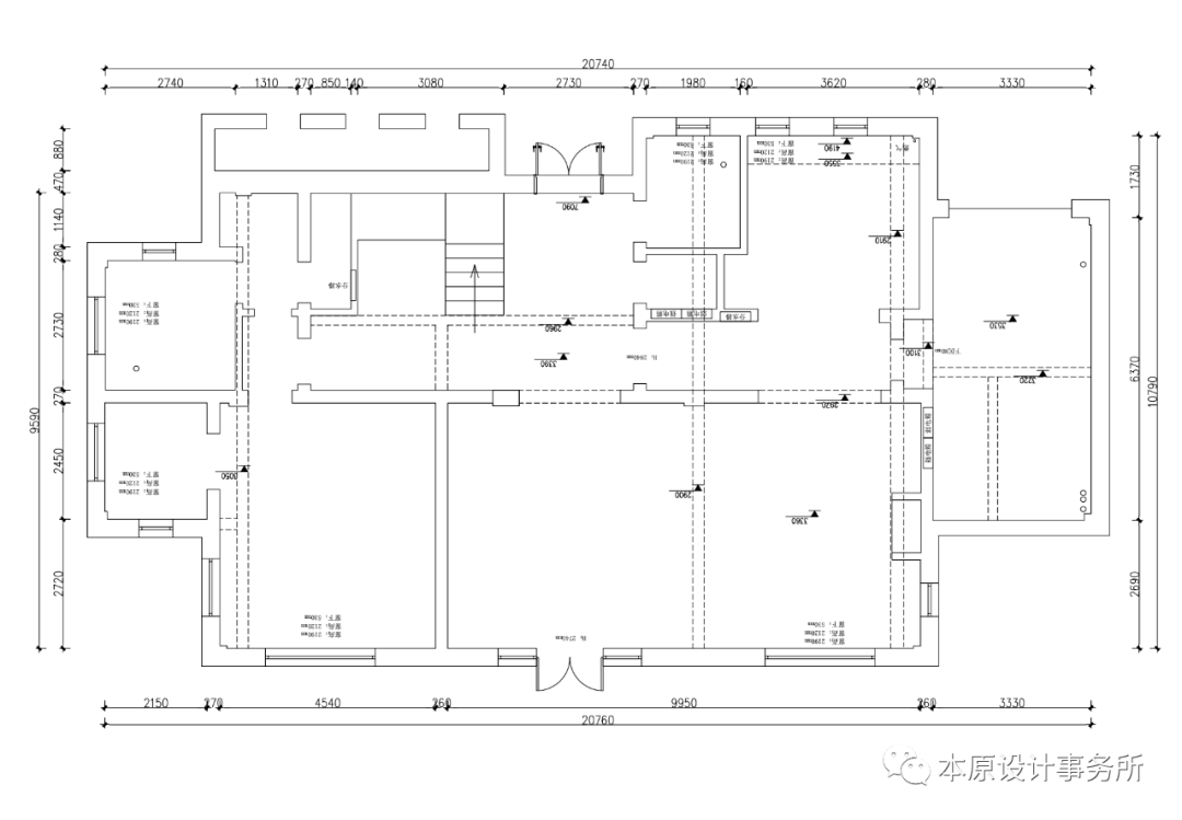
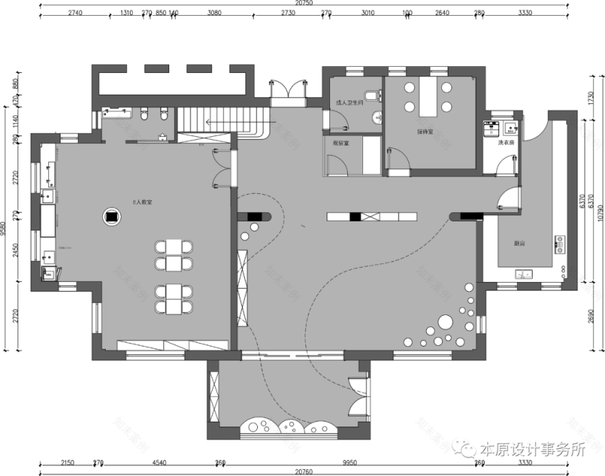
06
平面布局图
LAYOUT PLAN
△一层原始图
△一层平面布局图
△二层原始图
△二层平面布局图
戳原文,了解更多本原作品!
客服
消息
收藏
下载
最近


























