查看完整案例


收藏

下载
700㎡的大宅居室空間,軸線對稱布局,運用廊柱、雕花、大理石、灰鏡、皮革等元素,將法式美學的雅奢精髓及現代態度與「家」合為一體。恢弘氣勢中,盡是細節處的精致舒適。暖色白、高貴金以及靜謐藍為主調,形成淡雅與尊貴的視覺沖擊,空間層次豐富有趣,法式新貴般奢雅愜意的生活就此啟幕。
客 廳
餐 廳
廚 房
中 庭
主 臥
次 臥
次 臥
茶 室
影音室
項目名稱 | 福州 · 波爾多莊園林府
項目面積 | 600㎡
設計時間 | 2017年
設計風格 | 法式
設計單位 | 觀雲機構-雲事務所-木水空間建築事務所
主案設計師 | 陳鴻傑
深化設計師 | 魏文凱
三維設計師 | 張霖
測繪人員 | 魏文凱
陳設設計師:觀月美學陳設
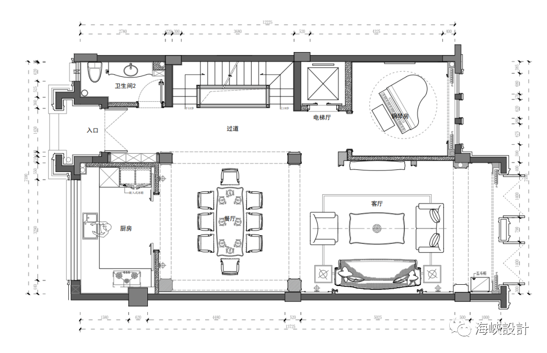
一層平面圖
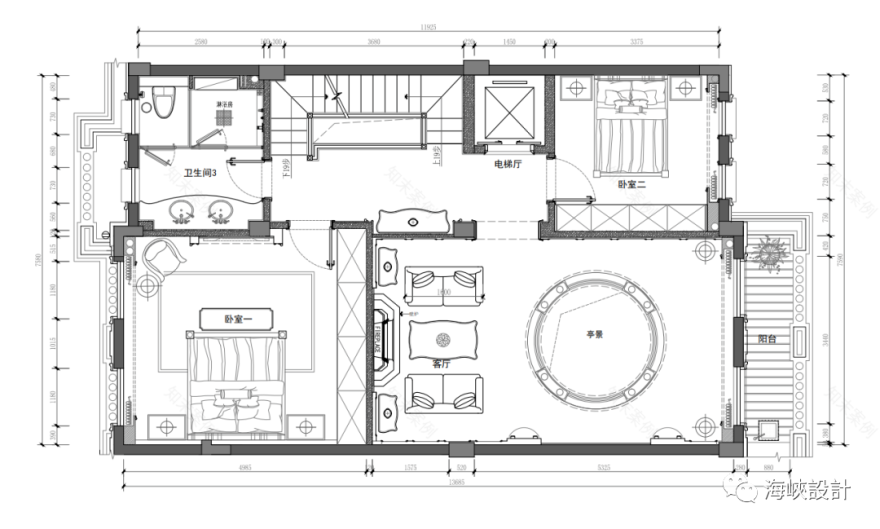
二層平面圖
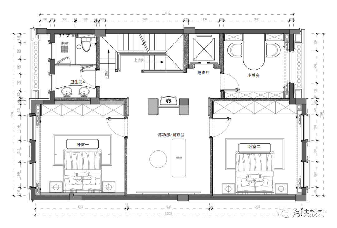
三層平面圖
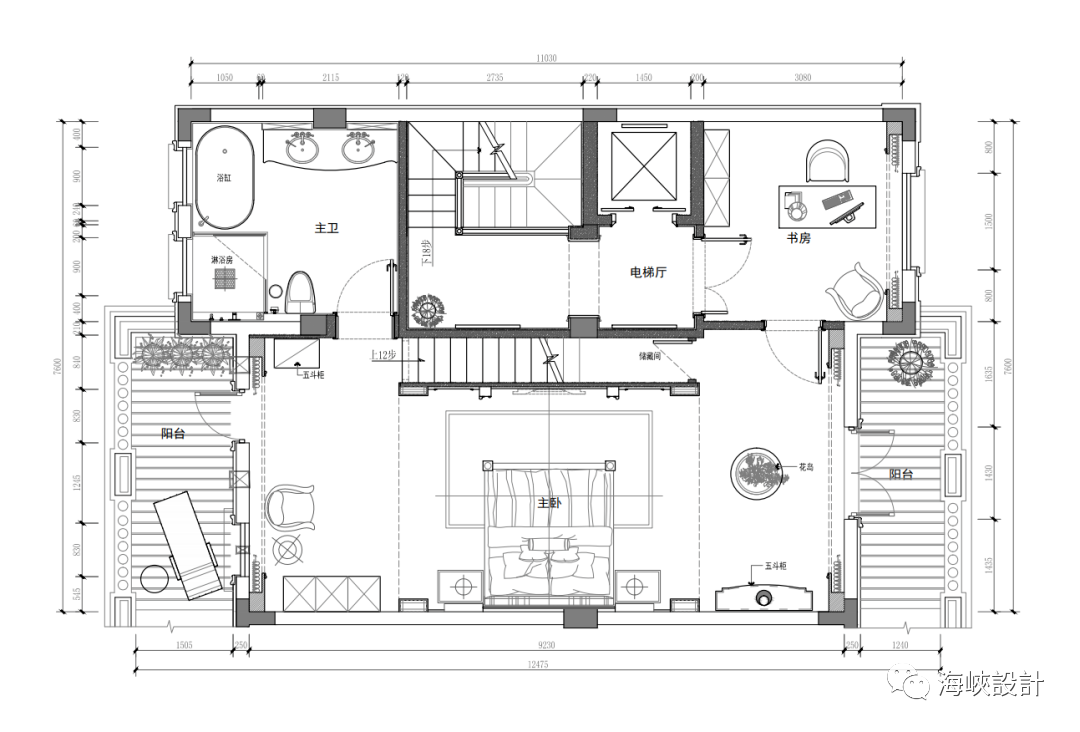
四層平面圖
設計
藝術
跨界
END
海峽設計
∣
一個有逼格的公眾號
手機:17326621923
任何想法、咨詢、供稿都可與我聯系
長按,識別二維碼,加關註
免責聲明:
1、以上圖片及資料內容來源於網絡,由我方整理,版權歸原作者及其公司所有;
2、本資料僅供學習研究之用,不得用作於商業用途,若侵犯到您的權益,請與我們聯系刪除;
3、本文章版權歸本公眾號所有,未經同意不得隨意轉載 ,若惡意侵權將追究其法律責任。
客服
消息
收藏
下载
最近

































