查看完整案例


收藏

下载
舒隅,一個可以讓心放松的角落。
我們從客群心理需求與差異品牌文化出發,將其定位為茶文化主題酒店。
在空間形象的設計中,用親近自然的大山茶文化體驗,來讓旅人收獲舒心與放松,並在觸覺、聽覺、嗅覺、味覺中延續茶的不同體驗感知。
外 觀
大 堂
過 道
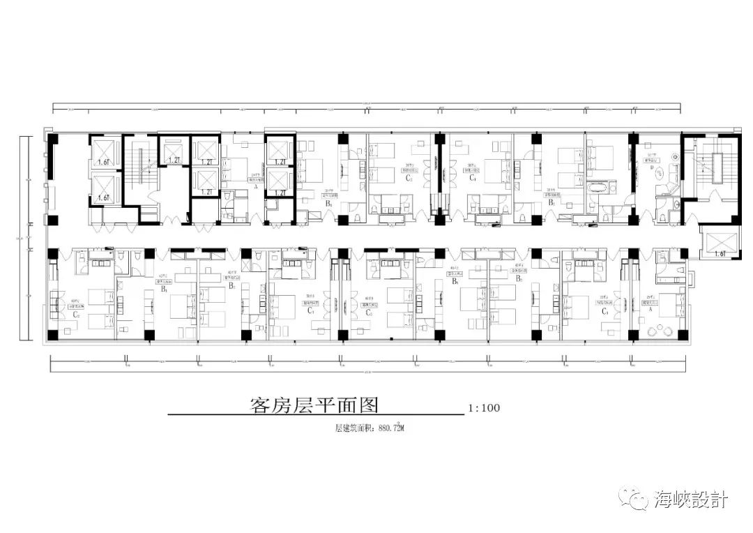
客 房 1
客 房 2
客 房 3
客 房 4
客 房 5
客 房 6
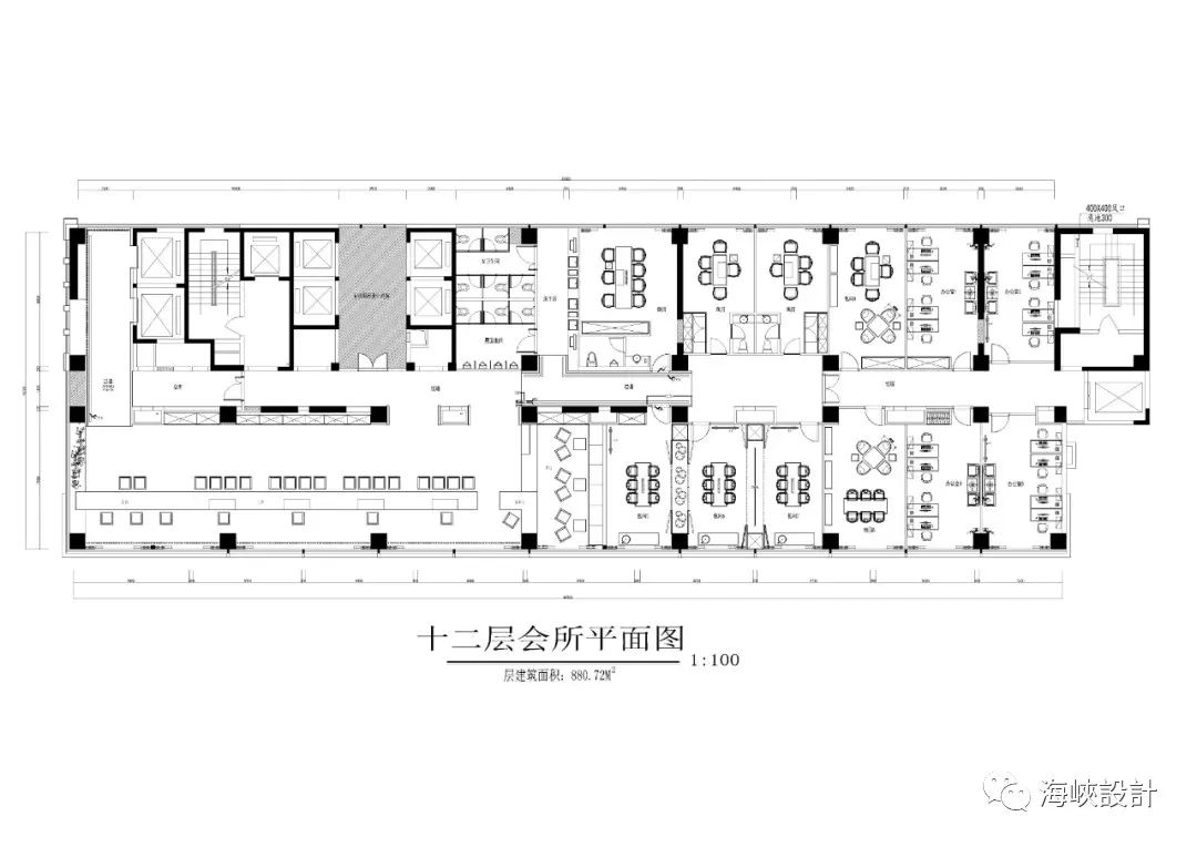
茶會所
茶會所
項目名稱 | 無錫·舒隅酒店
項目面積 | 6900㎡
設計時間 | 2012年
設計風格 | 新中式
主案設計師 | 觀雲機構-福建觀雲工程裝飾設計-林斌
深化設計師 | 觀雲機構項目服務部
三維設計師 | 觀雲機構項目服務部
測繪人員 | 觀雲機構項目服務部
陳設設計師 | 觀月美學陳設
設計
藝術
跨界
END
海峽設計
∣
一個有逼格的公眾號
手機:17326621923
任何想法、咨詢、供稿都可與我聯系
長按,識別二維碼,加關註
免責聲明:
1、以上圖片及資料內容來源於網絡,由我方整理,版權歸原作者及其公司所有;
2、本資料僅供學習研究之用,不得用作於商業用途,若侵犯到您的權益,請與我們聯系刪除;
3、本文章版權歸本公眾號所有,未經同意不得隨意轉載 ,若惡意侵權將追究其法律責任。
客服
消息
收藏
下载
最近



















































