查看完整案例


收藏

下载
项目地址:
香溢澜桥
项目面积:
400㎡
设计风格:
新中式
设计主创:
金工
精滤,定心,虚灵宁静,质朴无暇,回归本真,是一种境界,是一种生活态度。
本案业主是一位企业家,具有东方情节,喜欢茶道,收藏紫砂壶,对事物的认识有着自己清晰的判断,追求生活品质。
对
于房屋要求上更注重于会客以及接待作用,而新中式风格的儒雅古典与东方大气,正符合他的初衷▼
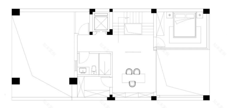
负一原始
负一平面
负一主要用于休闲、娱乐、接待作用,整体配套娱乐会所设施:影音、品酒、健身、棋牌等等,区域利用最大化。
房屋改造上,车库位置原本较小,设计师进行墙体改造,放大空间的同时安装智能门。
夹层平面
夹层的增添,增添了房屋面积利用率,客房得以满足,在视觉感官上,也更具有空间感。
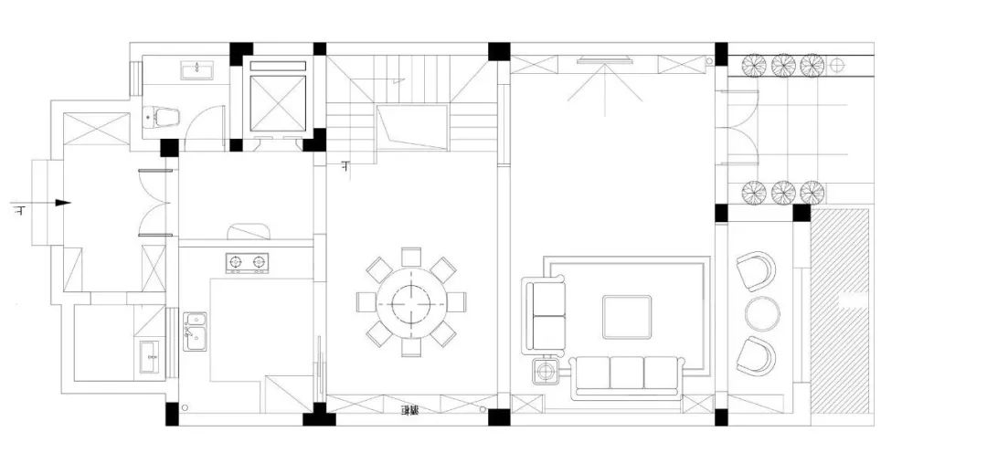
一层原始
一层平面
一楼改动较少,更注重与家人之间的互动交流,整体设计更温馨柔和。
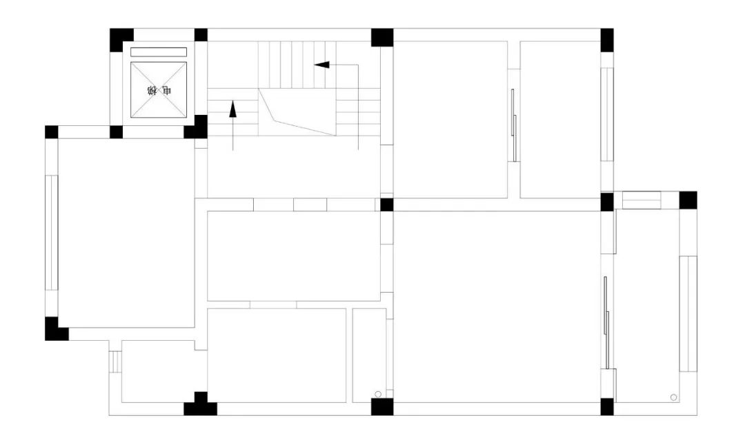
二层原始
二层平面
1、二楼由于墙体受限,使得卧室面积变小,通过墙体拆除,使得卧室空间更大。
2、卫生间也是如此,利用率更大,功能性更强。
3、开放式书房,让空间更加开阔。
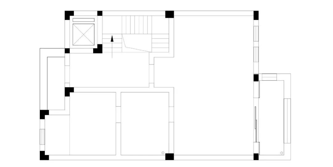
三层原始
三层平面
1、三层主要做了一个主卧式套间(衣帽间、休闲区域等),整体高端奢华,在房屋改造上,房门位置进行了转换,房间整体动线也得到了改善,床的位置变得更私密,而不是一目了然。
2、大卫生间的设计,功能性更强。
进入地下一层的休闲会客区,入口的奇石和静谧的低位照明在欢迎尊贵客人的到来。地下室被充分利用,打造出一个集休闲娱乐、品鉴和洽谈的私密空间。
会客区顶部挑高,
使空间富有层次感之外,错觉向上延伸,更显
矗立
。
配以线灯装饰酒柜,更显尊贵奢华。绿植元素点缀,让空间更具活力感。
客厅主要做了通顶以及线灯的处理,灯光视觉效果更佳,房屋明亮具有空间感。
开放式书房,给予空间层次感,实木格栅引入视觉的第一步,隔而不断,含而不露,软化了直视书房设计带来的“棱角”。
装饰柜元素,整齐排列,彰显气势恢宏的景象。
餐厅做了人造背景的处理,
艺术灯饰与背景墙画在简约气质下,给人宁静安逸的质感。
中式元素圆桌,形成其乐融融的景象。
纵使风尘仆仆归家,落座共餐,时间恰好。
返璞归真便是卧室的真谛,暖色系让空间更具温暖气息。悬挂的装饰画大片留白,软装设计金色的银杏叶犹如植物标本般静静地停留在页面上,纺布灯饰、瓷器,木色调赋予了空间韵味流转的“本能”。
整个空间更多体现的是“方圆”的概念。
选用皮、
棉麻,加入些许丝,呈现中式的现代与精致
。
平面视觉挂画,让整个画面呈现立体美感。
听雨落,看花开,白日浮沉,喧嚣闹市,瞬间远离。
莫兰迪蓝与木饰面的结合,让空间更具柔和气息,增添空间的意境感。金属吊灯作为点缀,更具轻奢时尚。
卫生间采用连体式台盆,实现无死角连接,空间更具延展性。独立式马桶,干净卫生。浴缸氛围灯光,更具温馨感。
书房静室,雅致的书柜,一方实木书桌,一管湖笔,是必备的心爱之物。中式书桌椅的选用使整个空间的格调再上一层。
东方主题的室内设计,或淡雅如君子,或贵气如帝王;
或轻描淡抹,或浓妆重墨,各具风骚,不一样的格调,却一样的精彩!
金新鼎邦 | 260㎡ | 现代轻奢
弘阳广场 | 197㎡ | 现代
世贸香槟湖 | 现代港式 | 160㎡轻美式
AWARD RECORDS
化龙巷2018年度十大受欢迎装修公司
2016年常州装饰装修行业 会员单位
2016年度常州装饰材料行业协会 副会长 单位
2018年荣获设计委员会专业大奖
2017年度住宅装饰优质工程工程设计金奖
2017年度国际空间设计“艾特奖”最佳公寓设计入围奖
2018年IDA年度颁奖盛典 设计委员会大奖华东区家居设计中坚人物
2014年江苏省重质量守信誉诚信施工单位
2014年优质诚信绿色环保装饰示范企业
土巴兔装修品牌榜2015-2016最受业主信任的互联网装修口碑品牌
2018年常州广播电视台中国常州设计师盛典优秀青年设计师、优秀设计企业
..........................................
关
注
雅 盛
地址:天宁区同济桥万都广场B座8楼
点击下方阅读全文,查看更多
↓↓↓
客服
消息
收藏
下载
最近





























