查看完整案例


收藏

下载
来源:居住进化
现如今,随着各个地域的房屋售价不断攀升,并且长期处于只升不跌的趋向,使得许多的工薪阶层对于大户型空间望而怯步,而小户型则成了众多家庭的不二之选,但是面对规格如此小的居室,该如何装修呢?
下面是小编给大家整理的小户型装修设计案例▼
设计案例
装修面积:86.5㎡
原始户型:两室两厅一卫
房屋所在地:上海
家庭成员:5口之家(爸爸、妈妈、儿子、女儿、住家保姆)
改造难点:房间和卫生间不够用,无法满足5口人生活基本需求。
改造要点
1
房主诉求:
房主一家五口人,夫妻两人,外加两个孩子,一个男孩一个女孩,还有一个住家保姆,可是,原始房屋户型只有两个房间!
解决方案:
北阳台改造成儿童房,供家里男孩子住,次卧做成上下床,家里女孩子和保姆住一间房间。主卧依旧是夫妻二人使用。
2
房主诉求:
家里卫生间只有一个,5口人使用非常不方便,还想要有浴缸泡澡。
解决方案:
调整了原来的马桶位置,实现了两个干湿分离区,以及双马桶配置、淋浴区和泡澡浴缸。
3
设计痛点:
北阳台空间比较吵,开发成房间会影响睡眠体验。
设计师解决办法:
更换了更好的窗户,经过测试,噪音情况立马改善,卧室变得安静舒适。
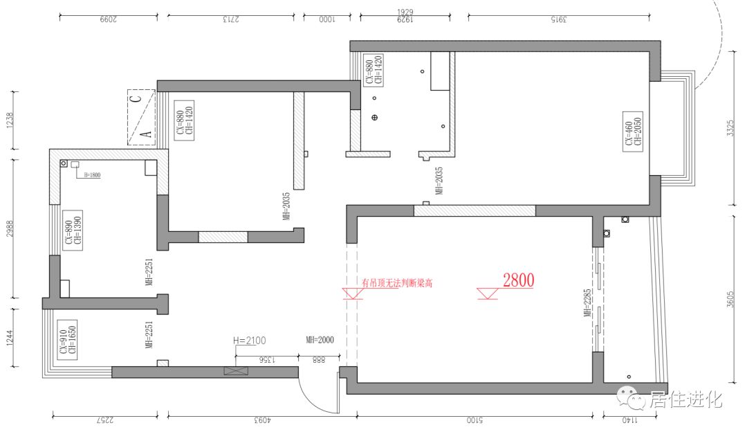
原始户型图▼
改造后户型图▼
全家人的活动区,保持空间平静的同时增强功能性
实际效果图▼
满足基本生活需求,更要有人性化设计亮点
实际效果图▼
保持原有的大空间,高端大气有格调
实际效果图▼
床区也追求简单舒适的风格,没有过多装饰。家具灯具和装饰品的风格跟客厅保持一致,床体也细心地选择了软靠背,从根本上解决舒适度的问题。
女儿和住家保姆的房间,解决五口之家刚需
实际效果图▼
次卧是女儿和住家保姆生活的房间,上下床的连接用的是缓坡的柜子楼梯,保姆年纪大了,这样上下床更轻松,同时小抽屉柜也能增加房间的收纳功能;另外,贴墙放置一些矮柜,用来放书和玩具,可以作为女儿平时娱乐看书的独立小空间。
北阳台改造,多出一间房
实际效果图▼
北阳台的隔音差是个很大的问题,改造成卧室家里人担心会影响孩子的睡眠质量,我们经过实地研究发现,窗户质量差是造成噪音污染严重的关键点,所以在设计中用了质量好的隔音窗,解决了这个问题。
设计出来的房间效果,也让家里孩子看了,看过后都很喜欢和满意,床旁边留出空隙,放置一些书籍,孩子们都需要有自己独立的空间来学习和独处。
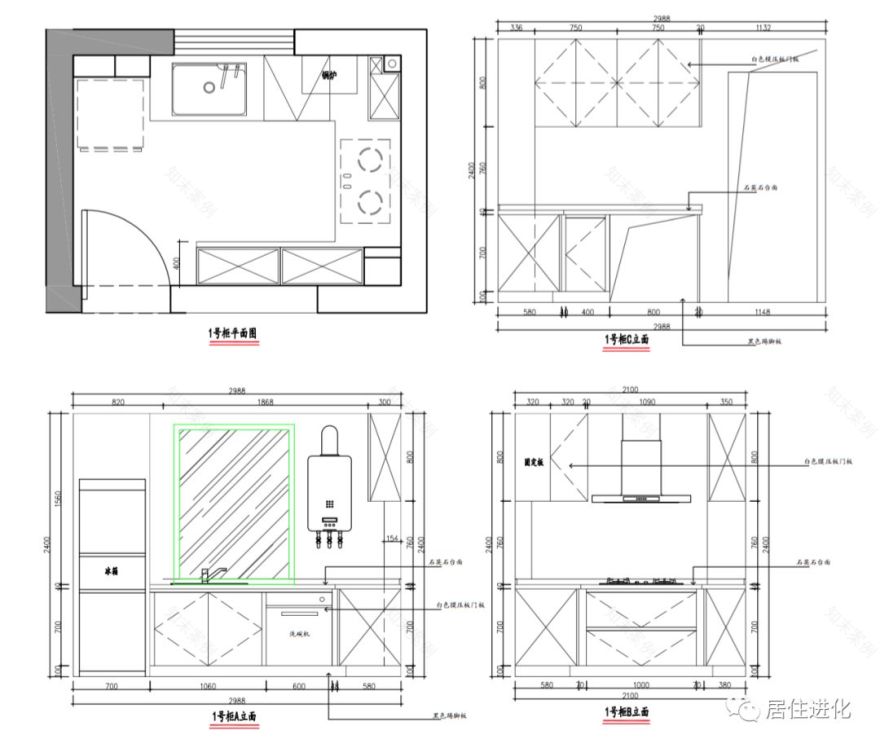
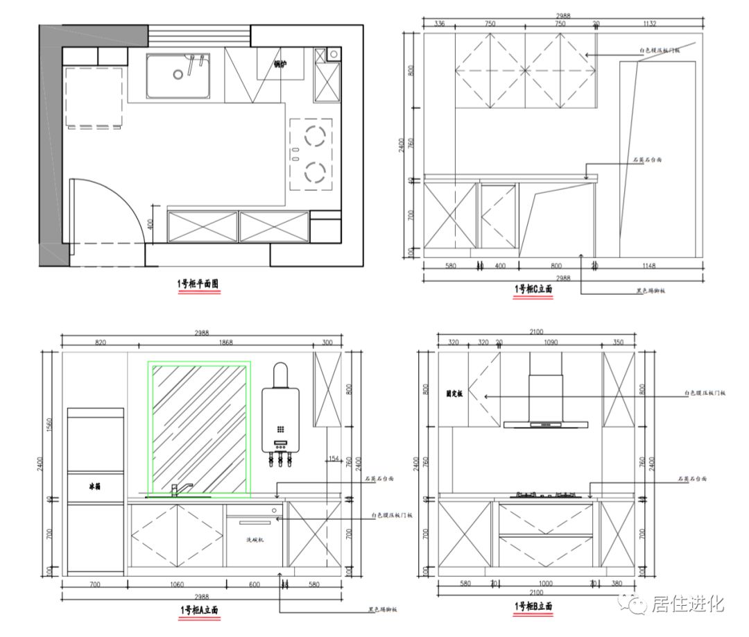
U型厨房,洗切烧一站式解决
实际效果图▼
厨区的白色膜压板门板,石英石台面,色调与其他空间的元素相匹配。台面下方留出空档放置小推车和垃圾桶,使用更灵活。
厨柜尺寸图▼
没有美丽餐边柜的餐厅不是好餐厅
实际效果图▼
木色的柜体在入户的视觉上有一个过渡,与餐厅和客厅的风格一致。因为餐区面积不大,没安排太多墙面收纳,加了个餐边柜,缓解餐区收纳压力。
餐边柜尺寸图▼
需要多多注意一下家具之间的摆放关系,不能有任何家具过大过宽以及不必要的棱角和装饰,这样会导致动线不畅。
/总结一下/
房间少、卫生间小、阳台多,都不是你住不好的理由,办法总比困难多!
好的设计的灵魂是以人为本,用专业创造功能合理、舒适优美、满足人们物质和精神生活需要的室内环境。这个空间代表着你的居住方式,影响和改变着你的生活方式。
-------[END]------
公交路线▼
戳原文,更有料!
客服
消息
收藏
下载
最近



































