查看完整案例


收藏

下载
如果没有想到传达的对象,
设计则不成设计,只是样式罢了。
站在目标受众的角度思考,
是设计的第一步。
If you don’t think about what you’re communicating,
design isn’t design, it’s just style.
Thinking from the perspective of the target audience
is the first step in design.
Name|项目名称:LU XIANG YUAN|露香园-方案设计提案
Location|项目地点:Shanghai, China|中国上海
Area|设计面积:265㎡
“露香园”并不仅仅是一个楼盘的名字,也是一个时代的印记。曾作为“明代上海三大名园”与豫园、日涉园并驾齐驱。
明嘉靖年间卸任道州太守顾名儒,购城北黑山桥地筑万竹山房,其弟顾名世在万竹山房东西开辟旷地,凿池得石,上有“露香池”三字,据说还是赵孟頫的手迹,便称此园“露香园”。
"Lu Xiang Yuan" is not only the name of a real estate, but also the mark of an era. It was once one of the "three famous gardens in Shanghai in Ming Dynasty", along with Yu Garden and Rishe Garden. During the period of Jiajing in the Ming Dynasty, Gu Mingru, who retired as governor of Dao Prefecture, bought heishan Bridge in the north of the city to build Wan Zhushan House. His younger brother Gu Mingshi opened up an open land on the east side of Wan Zhushan House and cut a pond and got a stone. It was said to be zhao Meng ð« « Lu Xiang Pond, which was written by Zhao Meng ð ¯, so it was called this garden "Lu xiang".
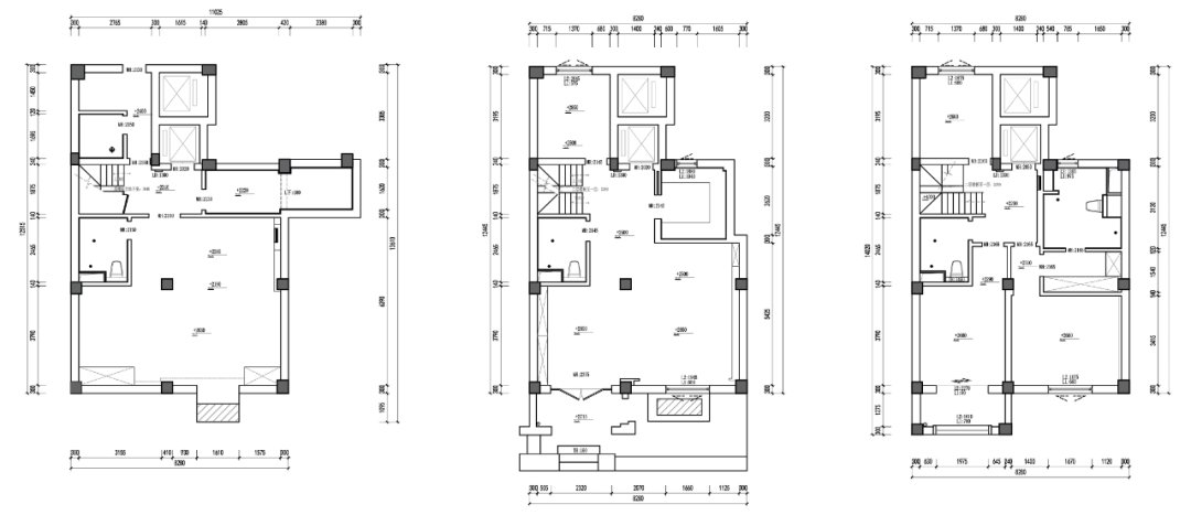
△ 之前 |原始结构图 BEFORE | Original structure
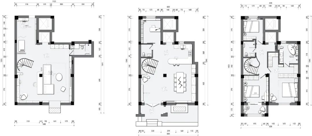
△ 之后|平面方案图
AFTER|Plane figure
地下室及一层主要为娱乐会客区域。整体空间规划收放自如,更注重了功能关怀。地下室的空间将娱乐、收纳、健身、会客等功能融为一体,同时满足了空间美感与功能;一层将空间主要划分为餐厨与书房空间,增加了餐厨的功能使用性,将餐厅扩充为中西餐厅,满足了不同场景的使用。厨房为开放式厨房并拆分为了中西两大部分,衍生岛台可用于早餐场景或品酒场景等。二层空间主要还是为休息区域,主卧及客房的平面规划上还是尽可能的满足了日常的收纳与居住的舒适性。
The basement and the first floor are mainly recreational areas. The overall space planning is free, and more attention is paid to functional care. The space of the basement integrates the functions of entertainment, storage, fitness and reception, and satisfies the aesthetic feeling and function of the space.
▼地下室
Basement
The space on the first floor is mainly divided into kitchen and study space, which increases the functional use of kitchen and expands the restaurant for Chinese and Western restaurants to meet the use of different scenes. The kitchen is open and divided into two parts, the derived island can be used for breakfast scene or wine tasting scene.
The second floor space is mainly for the rest area, the master bedroom and guest room plan is still as far as possible to meet the daily storage and living comfort.
#客厅|Living room
客厅|Living room
客厅|Living room
客厅|Living room
喜欢日落,当黄昏落在身上,没有烟火,没有杂尘,只有光和希望。
Like sunset, when the evening falls on the body, no fireworks, no dust, only light and hope.
▼一层
First floor
# 玄关|Hallway
#餐厅
| Din
ing room
秋风落叶,秋雨绵绵,愁心上秋,只为你。
Autumn wind leaves, autumn rain, the heart of autumn, just for you.
▼二层
Second floor
# 主卧
| Master room
# 儿童房
|
Children room
#楼梯间
Stairwells
每当家像一个概念一样浮现于我的记忆之上,它的颜色是深沉的。
When home comes to my memory like a concept, its color is deep.
本期方案设计分享结束,期待我们下一次的见面^
木梵设计是一个成立于上海的独立设计团队,我们主要从事设计住宅空间、商业地产、创意办公、服装店面、别墅空间和一些奇怪的东西。
我们是一个充满生机和活力的团队,有新鲜的血液,三木成林的团队凝聚,多变而层出不穷的灵感,无限的创作力和无限可能。
Mufan Design is an independent design team founded in Shanghai.
We mainly design residential Spaces, commercial real estate, creative offices, clothing storefronts, villa Spaces and some strange things.
We are a full of vitality and vitality team, with fresh blood, three trees into a forest of team cohesion, changeable and endless inspiration, infinite creativity and infinite possibilities.
Add:中国·上海静安区沪太路 671 号 19 幢 215 室
M:17621673753
往期精选
设计源于生活,细节成就品质
——MODERN
《一缕·暮光》
用极简的线条勾勒出最具灵性的空间。
——
MODERN/《流·年》
形式追随功能
——
MODERN/《境 · 透》
- End -
客服
消息
收藏
下载
最近




















