查看完整案例


收藏

下载
他们在商场中植下一片森林:修行于都市 Planting a Forest in the Shopping Mall: Urban Cultivation 到广阔的天地中去聆听大自然的教诲——布莱恩特 Go out into the open world and listen to instructions of nature.——Bryant
如果说对自然山野的向往是人之常性,那么播种一片森林则是将人的理想世界根植于现实。在人流熙攘的恒隆广场中,南筑设计团队倾力打造了一方自然意向的空间,让久在樊笼的人们不必远游即可畅享自在的身心。
If the desire for natural mountains is natural and normal for humans, then planting a forest is to root our ideal world in reality. In bustling Plaza 66, the design team from NONEZONE did their utmost to create a nature-oriented space, which enables those who have been confined in the urban life to enjoy their relaxed mind and body without having to travel far.
“小隐隐于野,大隐隐于市”,一味追求远离都市、隔绝尘嚣只是盲目淡化了人的社会属性,将人从正常的工作与社交生活中解构出来。而真正的设计智慧,是在尊重原有生活的同时,找到能够改变现状的途径。
设计团队巧用原木与石材,糅合光影与气流,打造出一个有拥有四时晨昏的「会呼吸的空间」。
The ‘lesser hermit’ lives in seclusion in the country, while the ‘greater hermit’ does so in the city. Keeping seeking to stay away from the city and be isolated from the world only blindly fade the social attributes of people, and hence people will be separated from their normal work and social lives. The true wisdom in the design, however, is to find ways to change the status quo while respecting the original life. The design team uses wood logs and stones skillfully, and mixes light and airflow, to create a "breathing space" reflecting the changes of four seasons and twilights.
曲径通幽,光影交叠。在封闭空间实现晨昏变幻。
Winding paths with alternating light and shadow. Changes of twilights are achieved in the enclosed space.
由于项目选址在商业广场中,缺乏自然光线与气流的导入,所以团队将设计重点放在光照与阴影、空间与隔断的谋篇布局上。
The project is located in a commercial plaza, the lack of natural light and airflow facilitates the team to focus on the layout of light and shadow, space and partitions.
项目大范围使用二次反射光,依照各空间的不同功能调节色温与亮度,打造出森林间光影错落的视觉体验。让消费者或沐浴晨曦冥想,或身披晚照律动,或斜倚林荫小憩,眼前虽无草木,却像置身于自然之中。
The project uses secondary reflected light on a large scale, adjusting the color temperature and brightness according to the different functions of each space, creating a visual experience of scattered light and shadow among the forests. Consumers will meditate in the morning light, or wear in the rhythm of the afterglow, or reclining in the shade to have a rest, although there is no vegetation in front of them, they seem being immersed in nature.
木石为盟,返璞归真
以设计展现空间流动
Combination of Wood and Stones,returns to their original nature
To show the airflow by design
普拉提的核心理念是“把身体放在正确的位置上”,意为通过运动提升身体核心力量与柔韧度,使肌群和骨骼恢复到最健康的状态。
“Right position”, which means to build your core strength and flexibility of the body through exercise, and restore the muscles and bones to their optimum health.
顺应这一观点,设计团队也深入思考如何让装饰元素恰如其分地铺陈,通过设计语言将舒适自然的精神内核传递给每一位访客。
In line with this point of view, the design team also thought deeply about how to make the decorative elements properly laid out, and passed the comfortable and natural spiritual core to every visitor through the design language.
“婵柔”是一种独特的脊柱螺旋运动方法,广泛运用于运动及医疗领域,能帮助人们建立身体的内在空间感,使身体局限得到极大改善。
“Chan Rou (Gracefully soft)” is a distinct method of exercise with a spiral movement of spine, widely used in sports and medical fields, which can help people to develop a sense of inner space in their bodies, and to greatly improve the physical limitation.
Blossom Pilates 设置了婵柔教室,购置进口婵柔器械,也对设计团队提出了更高的要求:传递婵柔内蕴,通过设计手法引领消费者参悟婵柔真谛。
With arrangements of the classroom and purchase of imported equipments for “Chan Rou”, Blossom Pilates also puts forward higher requirements for the design team: They should transfer the implication of "Chan Rou", and assist customers to understand the true essence of "Chan Rou" by means of the design method.
肇于这个要求,设计团队将质感灰选为主色,搭配利落的几何吊灯,融入器械自身带来的力量感。
Due to this requirement, the design team selected the high quality grey as the main color, with a neat and tidy geometric hanging lamp, and incorporated a sense of power from the device itself.
而高色温的光照以及圆弧形的隔断屏风则是点缀在其间的柔性元素,与来此锻炼的消费者相呼应,凸显出人的肌体之柔,将“婵柔”的精神内涵回归到「人」本身,成为项目整体的点睛之笔。
And the daylight with a high color temperature and the circular partition screen are the flexible elements integrated into the design, and it echoes with the consumers who come here to exercise, highlighting the softness of the human body. It therefore returns the spiritual content of “Chan Rou” to “human” itself, which becomes the finishing touch of the whole project.
打破了都市与自然的边界,在商业区域中种下一片隐居静修的森林,定义了一种全新的使用方式。
It defines a whole new usage: to break the boundary between city and nature, and plant a forest of secluded retreat in the commercial area.
如今,许多顾客 7 点多就会来到店内“晨练”,沐浴着晨光与微风打坐冥想,伴随轻快的音乐净化身心,在都市中静享“日出而作,日入而息”的自在生活。
Now, many customers come to the store after 7 o’clock, to do their "morning exercise". They sit in meditation bathed in the morning light and breeze, accompanied by light music to purify the mind and body, quietly enjoying the free life of "work with the sun and sleep with the day".
▲分析图
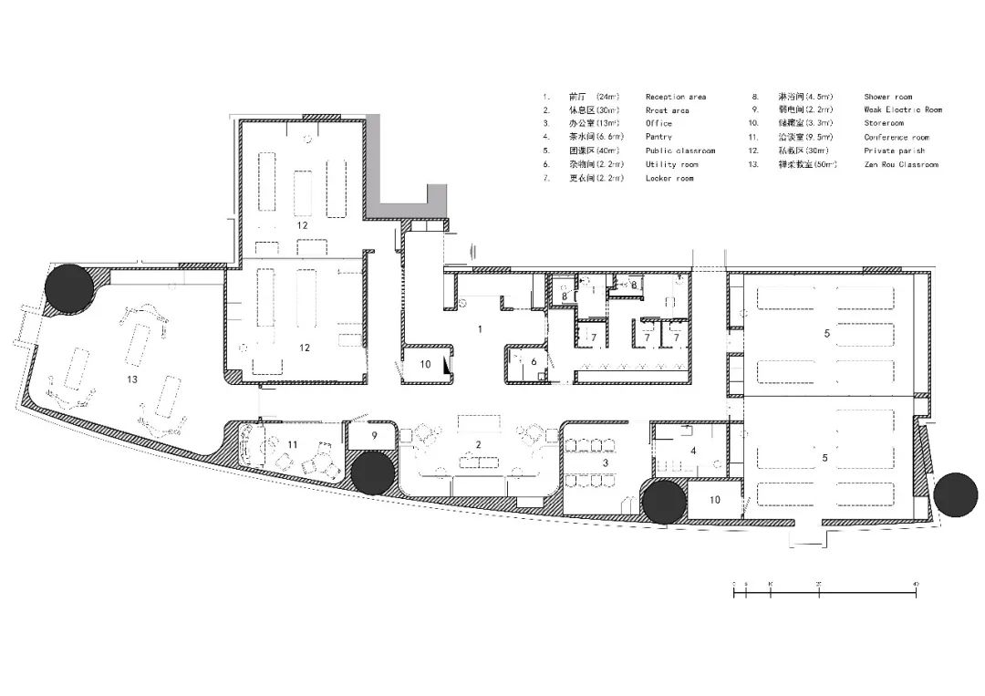
▲平面图
Project Name | 项目名称 BLOOSOM PILATES
Location | 项目地址 无锡 恒隆广场
Area | 项目面积 450㎡
Design Director | 设计总监 苏阳
Chief Designer | 主创设计师 王海
Design Company | 设计公司 南筑设计事务所
DesignSupervision | 设计监管 康诗林
Decoration Designer | 软装设计师 程征、徐玮雯
Photography | 摄影师 形在空间摄影 Herespace
文字/图片:南筑设计事务所
DESIGNER
设计师介绍
南筑设计团队
南筑设计致力于空间的人文场景与体验营造,具有服务各类地产、商业及办公空间的软、硬装设计的专业经验。目前在上海/无锡/成都三地设立办公室,与一线地产企业保持长期的合作关系,服务业主包括:万科、龙湖、融创等知名房企,为客户提供创新研发与复制等多项设计服务,设计作品屡次斩获行业内知名奖项。
欢迎投稿作品
不忘点击“”
客服
消息
收藏
下载
最近


































































