查看完整案例


收藏

下载
关键词:差异化、冲浪感、体验感、记忆点、大胆、轻松
Good health is the best wealth.
当代人们都有的健康困惑:鲜果汁是否等同于真正的水果?
鲜榨果汁的字眼常出现在许多简餐or减肥餐的食谱中,对于工作繁忙且又关注着健康的消费者来说,果汁无疑是节省咀嚼时间最好的选择。
马成时代广场是深圳市福田区石厦村改建成的大型商业项目,定位是为福田中心区提供配套服务的商业综合体。作为福田中心南片区最大的体验式消费中心,当然少不了赫赫有名的野萃山分子果汁!
HOPE 与野萃山马成时代的碰撞
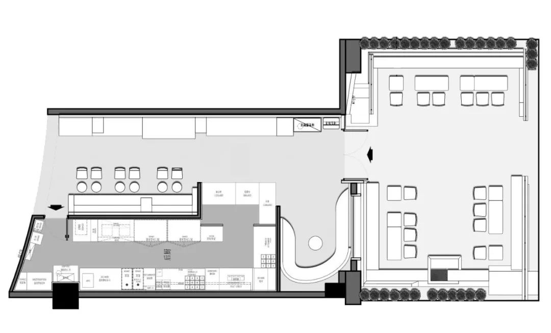
由于提供的空间小,HOPE便利用起“小”空间如何体现出它的
差异化
。不同于其他商铺的常规做法,HOPE使用了一种冲浪感,做成了一个筒仓圆形的空间。就如马成时代广场“以梦为马”的主题,创造出一个富有梦想色彩的奇幻世界一样;HOPE希望在这小小空间也能让客户有
体验感
和
记忆点
。
不同于广场的色彩斑斓,HOPE提用蓝色为主题色,以轻松减压的生活拾趣空间,为体验者提供一个不一样温度的氛围感:一道冲浪文化,一种生活态度。
将生活和冲浪文化相结合,与深圳的快节奏形成对比,让来到店里的每一位顾客都感到轻松自在,用最单纯的感受堆叠出审美观,打造出生活态度。
为了让顾客享受轻松氛围,HOPE特别为店内规划成海岸格调,以木质与大量的拼接尼龙纤维营造海边冲浪小木屋及海岛度假村的自在感。整体的室内空间是由面围合而成的,因此在空间规划设计中,流线的组织亦是很重要的,通过流线设计分割空间,从而达到划分不同功能区域的目的。
从格局到陈设,比起四四方方的空间设计,HOPE在该空间对弧形的运用,反而能在一定程度上柔化空间棱角,为空间注入温度。而弧形元素的运用,改善了部分阳角和阴角的设计,以一种流动且灵活的方式,减少死角产生,增加顾客访问的便利性。
小空间里避开中规中矩的设计,柔和和流动的弧形反而能够引起人们一种新奇的视觉体验,增添空间趣味性,满足人们对生活的追求。设计需要创新,也需要合理,HOPE根据空间风格和配色,来决定弧形设计的形式和结构,使其能更好融入空间,营造和谐的美感。
“室内设计中,元素的运用并不浮于表面,而是融于空间,成为空间的一体”,HOPE就是秉持着这样一个理念,就如同设计本身,并不拘泥与一种形式,灵活且多变;予人以深刻的视觉记忆和品牌联想。致力于“商业空间品牌化”,将品牌理念和产品特性关联到每家不同的店面设计中,“与其更好,不如不同”。
项目信息
项目名称:野萃山马成时代店
项目位置:深圳,福田
设计面积:70平方米
完工时间:2021年5月
设计公司:HOPE DESIGN 尚希设计
设计总监:LUKE HAN 韩薛
主案设计:叶芳顽、张明远
设计团队:陈晓雯、李薇、常康红
项目文案:王诗茵
项目摄影:贺川
客服
消息
收藏
下载
最近


























