查看完整案例


收藏

下载
DESIGN CONCEPT
苏州曾有一园,名“也园”。主人是个姓熊的布商。明清鼎革之际毁于兵燹。关于此园的文字止偶然散见于明遗民的随笔之中。有些名气,盖因此园虽不及拙政园、沧浪亭规模,但小而精雅之故。人初不知园名何意,主人乃告:苏州的园林,大多非富即贵,不敢与之比。蜗居虽小,也勉强算得一园,故名“也园”。有如此幽默精神的人,一定不是奸商,也肯定不是所谓“儒商”,那是伪君子的同义语。知堂公曾讲,即便明人一无可取,其狂也足以让人钦佩。此公应厕身此例。
丽丰棕榈彩虹花园的样板房项目,属于联排别墅。虽称别墅,面积不大。在性质上属于“也园”一类,因此不妨称其为“也是一墅”。
只是在设计层面考虑,如果仅仅是按照样板房完成设计,固然无可厚非。但是样板房在设计的角度而言,实际是一种展示。既然作为展示,仅仅当做一般的室内设计,其过程对设计者而言,自然如嚼木屑,结果也无法打动任何参观者。
因此设计师在接手项目的时候,首先考虑的是设计一个剧情。针对未来可能的使用客户,设计一组相应的人物角色——年龄大概在三十岁上下,有一定的经济能力,家庭条件比较富裕,可能有过留学的背景。两口之家,父母不常在身边。追求时尚和表象的西式生活,但还没来得及建立属于自己的品味——这是一个年轻时代的缩影——对一切都好奇,对一切都想尝试,一个逐梦的年龄。设计师希望通过这种情节代入的方式来设计一个居住空间,使之完成后具有“人居”的气息,有人的痕迹,而不是一个单纯的样板房。
表现这一切,首先要有一些合适的物来体现主人的生活状态。作为一个联排别墅的主人,不能让他车库里停放着几部超跑的可能。因此设计师采用了摩托作为描述这个影子主人的主要手段。Harley或者Triumph都不太符合我们主人的气质——一个太悠闲,后者太沉着。那么就用一辆Ducati吧。凌厉而张扬的“大鬼”,能赚取足够回头率的“大鬼”。然后再放一个3D打印的美式机车模型——那意味着年轻人不可捉摸的小小的贪心。还需要些代表所谓时尚的东西做些铺垫,于是在墙上有了一个Nomon的挂钟,B&B的女人躯体躺椅,都是“牌子”,当然,还要那么一两个现代艺术雕塑。有了这些,主人的大致形象已经能描绘得出来了。一个小小的脚本安排好了,空间的设计也有了方向。
对于整体空间的设计,设计师以黑白调子为主,但是纯粹的黑白关系会使住宅环境给人以冷冰冰的感受,因此设计师同时将变幻的黄色和灰色调子作为穿插,既让空间流畅简洁,又赋予其温馨的居住气氛。一方面通过使用灯光和材质的变化营造同一色系和不同色系的微妙变化,一方面通过相应的线条将立面和天花作不对称切割,将灯具作为能够活泼空间关系的点和线融入到空间当中,也赋予空间活泼的趣味。
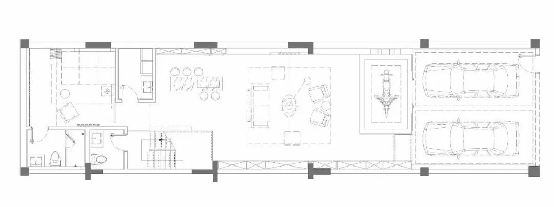
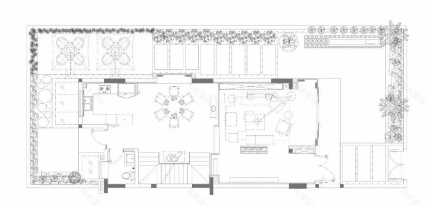
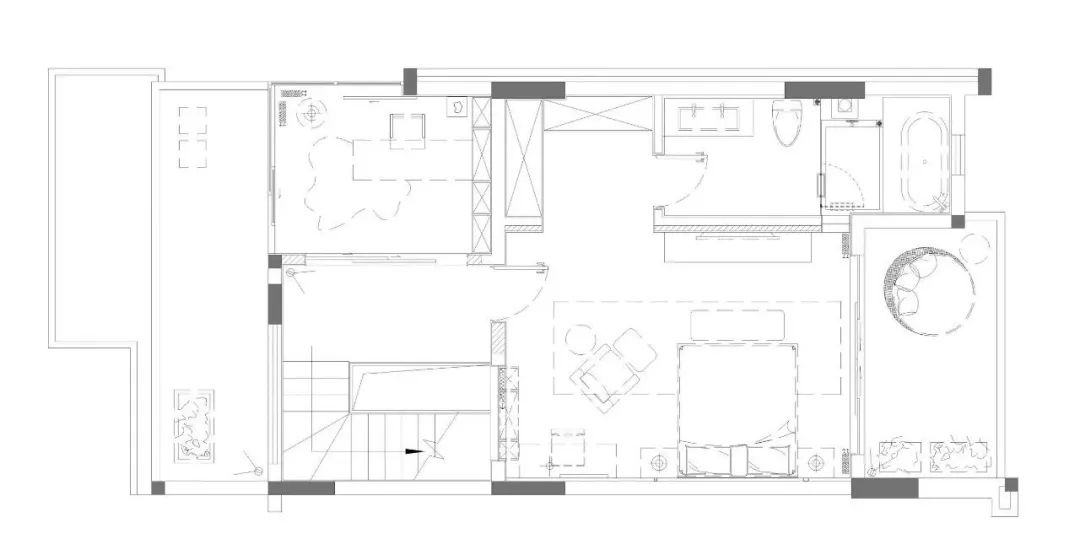
设计师在设计的过程中,首先对建筑的原平面作了一些小改造:一楼的客厅外扩了一部分;三层的大露台截取一部分做了一个阳光房;负一层与车库打通,将原建筑的工人房拆除,将之移至负一层最靠里的翼侧,形成一个带天窗的多功能房,而将整合后的部分,以如琥珀一般将一辆红色的Ducati“大鬼”包进大玻璃罩为视觉和空间氛围的重点,改造成一个带有娱乐性质的玩赏空间。
该项目的设计,设计师并没将它当作可以炫耀的作品去完成,而是试图通过对业态的思考,做针对性的设计。通过对居住环境设计使用的经验,建筑本身的特点等诸多因素综合考虑,最终取得一个相对平衡的结果。居住空间的设计,最终是为了使用者本人服务。而样板房作为一种商业性质的展示,不仅仅是为了销售房子本身,设计师通过它,更是对一种生活方式的可能性的讨论——在假想中建立一个模型,在现实中这个空间会存在居住的多样性。设计师仅仅只是表述其中一种可能,但这种可能是建立在对人和生活状态分析的基础之上。
主案设计 |
彭征、谢泽坤、许淑炘
设计团队 |
马英康、高颖颖、朱云锋、李永华
设计单位 |
广州共生形态工程设计有限公司
企业网站 |
项目地点 |
广东中山
设计面积 |
388M²
设计时间 |
2016年10月
竣工时间 |
2017年10月
主要材料 |
大理石,木饰面,灰色烤漆,墙布硬包,清瓷水泥板
主要品牌 |
意大利Ducati杜卡迪机车、意大利B&B沙发、西班牙Nomon 极简挂钟、西班牙BD Monkey茶几、本土创造家具&灯具、意大利Alessi Juicy Salif外星人摆件
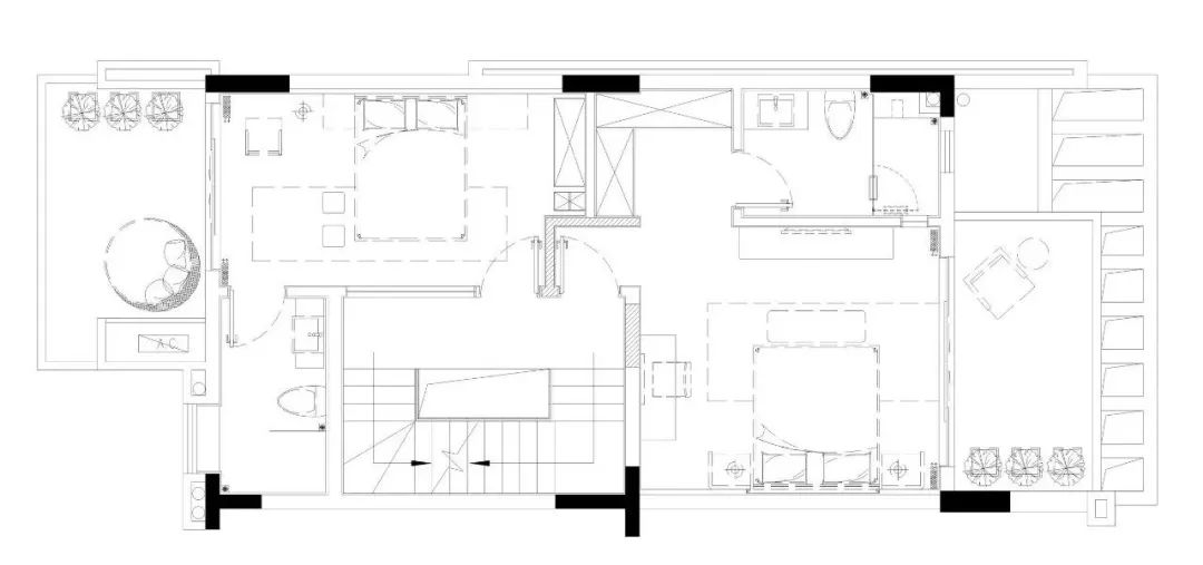
设计图纸呈现
负一平面图丨©
共生形态
首层平面图丨©
共生形态
二层平面图丨©
共生形态
三层平面图丨©
共生形态
设计公司概况
Peng Zheng | 彭征
彭征,共生形态(C&CDESIGN)创始人、设计总监,高级室内建筑师。2001年毕业于广州美术学院,并于2002年考取艺术设计硕士学位,现为广州美术学院建筑艺术设计学院客座讲师、实践导师,CIID广州专委会理事,中国房地产协会商业地产专委会商业地产研究员。
Design Director, Founderof C&C DESIGN,Senior Interior Architects. Graduated from the Guangzhou Academy of Fine Arts in 2001, and received a master's degree in art and design in 2002, taught in SouthChina university of science and design institute. Now guest lecturers and college tutor of architecture design institute , Guangzhou Academy of Fine Arts. Special committee director of China Institute Of Interior Design Chairman Guangzhou Design Studio .
Real estate researcher of Chinareal estate association.
彭征先生关注城市化进程中的当代设计,思考和实践“共生”的设计形态,从事建筑、室内、景观等多领域的设计实践,设计作品具有较强的建筑感和现代简约的风格。代表作品包括南昆山十字水生态度假村、时代地产“时代·家”体验店、美的地产企业总部、广州亚运会景观创意装置“风动红棉”等。
Focus on the contemporary design in urbanization process, advocate "symbiosis" design philosophy, and engage in the practice of architectural design, interior design and landscape design, and his works feature strong sense of building and international style. Representative works include: The Crosswaters Ecolodge& Spa, Times Property’s Timing Home Experience Center, Midea Property Corporate Headquarters ,Guangzhou Asian Games Landscape art installation.
设计作品曾蝉联德国iF设计大奖、德国红点设计大奖、美国室内设计杂志Best of Year Awards年度最佳大奖、意大利A‘Design Award设计大奖、香港亚太室内设计大奖等国际顶尖设计竞赛奖,2017年获德国iF设计室内建筑金质奖最高荣誉。
Design works have continue woniF Design Award(GER), Red Dot Award (GER), Best of Year Awards-Interior Design Magazine(USA), A’Design Award(Italy),Asia Pacific Interior Design Awards(HK) and other international top design awards, and won the highest honor iF Gold Award 2017 in interior architecture category.
-END-
感觉不错关注,点个“
”,转给同事、朋友们
欢迎给我们“
留言
”
客服
消息
收藏
下载
最近
















































