查看完整案例


收藏

下载
最
爱
夕阳里
这
金色的城市,
每道霞光都在
唤
醒心中的无限向往
。
最好的世界就藏在我心里,
有
时
就像光芒掠
过
浮
现
在
脑海
里
。
About Room
房屋信息
设计|Design:
集韵
设计
主创|Leading creatot:韩佳
李超
摄影
|Film
:任东
地址|Address:
龙
湖-
西安
面积|Area:
160
㎡
用材|Material
:冰
岛
灰石材、爵士白石材、KD木
饰
面板
、防指纹电镀不锈钢板、鱼肚白地砖、
木
纹砖
这是一套建筑面积约
160
平米的花园洋房,房屋整体共有
9
层我们设计的这户位于
8
层。房间南北通透,南北向都有阳台。业主夫妇
35
岁有一个上小学的女儿标准的
三口之家,
父母也会偶尔来住。
业主希望能在现有的面积中充分利用空间增加储物和收纳,所有的收纳空间都要隐藏起来;在设计风格上体现现代简约。这套房子的设计我们遵循“
Less is more
”的设计理念,“少”不是空白而是精简,“多”不是拥挤而是完美。
全屋中所有的收纳柜体都隐藏进墙体之中,打造出空间与收纳的完美结合。地面选用一种材质两种表情,在入户和餐厅、厨房我们采用鱼肚白大理石地砖;
柔光面的鱼肚白石村地砖在清洁上也非常容易,特别适合用在餐厅和厨房。客厅、走廊、卧室我们选用的是木纹砖,一方面木纹砖和灰色木纹墙板形成材质的统一;同时木纹砖的导热效率高特别适合有地暖的房间。全房我们在踢脚线的处理上采用了嵌入式的地脚线,这样做踢脚线和墙面成一个平面,家具能够紧贴墙面不会过多占用室内空间。
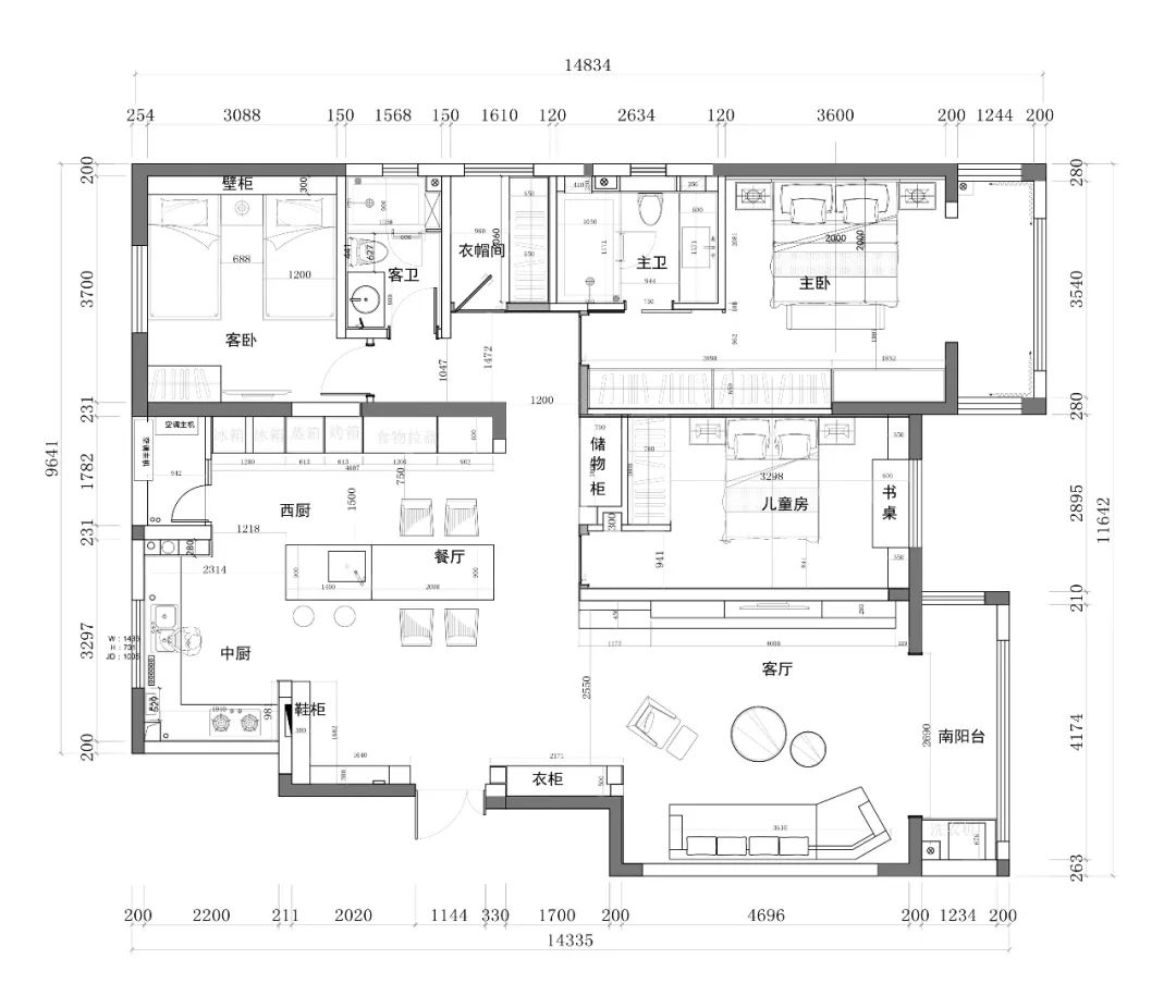
原始户型 ORIGINAL
平面布置图 PLANE
玄关效果图 PORCH
餐厅效果图
DINING ROOM
客厅效果图 LIVING ROOM
玄关实景 PORCH
进门右侧设计了一组开放柜和挂衣柜,用来放刚进家门后手里的车钥匙、手机等物品,挂衣柜用来收纳外套和手包。
餐厅
实景
DINING ROOM
餐厅,中厨、西厨设计为开放式,将西厨和餐厅融为一体形成环形动线。西厨高柜中嵌入烤箱、蒸箱、冰箱。
这面高柜还有一个功能,我们给它起了个名字叫“一秒见客”功能。下图中有一个开放式的层架和餐边柜,其实这个餐边柜是有一个可以打开的门板,并且这个门板打开后可以插入柜体两侧实现“隐形”。
餐厅在平时生活中不一定时时刻刻都是整洁的,如果有客人来访就可以将这个门板关闭这样就能实现“一秒见客”啦!
因为餐厅和厨房都在房屋的北向自然采光较差,所以我们选用鱼肚白大理石地砖来提升采光度。
厨房
实景
KITCHEN
开放式厨房对中厨油烟的控制相当重要,因此我们采用大吸力的集成灶来解决这个问题,
用不锈钢板做墙面方便日后的清洁。
客厅
实景
LIVING ROOM
利用墙面做悬浮书柜,从视觉上体现轻盈感。
白色收纳柜中间用4mm钢板做成电视墙。
利用墙体的厚度与挂衣柜之间的夹缝设计成开放式的钢板书架。
墙面爵士白石村与灰色石村地台形成对比,三盏吊线灯完成点线面的构图关系。
主卧
实景
Master BedRoom
主卧的床头背景选用硬包材质,让空间显得更有质感。
主卧有一面衣物收纳柜,这个柜体的是将原有主卧和儿童房的墙体打掉后,将柜体做成隔墙来提升主卧的收纳面积。
衣柜里安装了带有感应开关的条形灯在打开柜门的瞬间衣柜即可亮起来。
儿童房
实景
CHILDREN'S ROOM
客房
实景
GUEST ROOM
客房设计成两张单人床,主要考虑父母偶尔会来住。父母年龄大了睡眠质量差,所以设计分床避免互相影响。
客房定制的床和吊柜增加房间的收纳量。
主卫
实景
MAIN DEFENSE
-END-
感觉不错关注,点个“
”,转给同事、朋友们
欢迎给我们“
留言
”
客服
消息
收藏
下载
最近










































