查看完整案例

收藏

下载
茶事,
不是一般的请客吃饭,
应酬寒暄。
而是结合茶道理念,
把人融合到整个过程中的精致活动。
“喝茶当于瓦屋纸窗下,
清泉绿茶,
用素雅的陶瓷茶具,居二三人共饮,
得半日之闲,
可抵十年尘梦”
鲁迅在《喝茶》里这样形容喝茶的情境。
空间与茶与人建立一种默契,
喝茶才愉快。
生活无处不是茶的道场,
对资源的重视和妥善运用,
在到达茶室之前集中精神,
舍下烦恼私欲,
闲意不在远,荼十方寸间。
平和之美利于日常,
低调内敛留有余地,
不求锋头才符合茶空间格调。
布局开放交流,
独坐私密都可以和谐的出现在互动空间里。
于景于境,自然恬淡,
本来如此。
繁花似锦与干枯的枝条都有着别样的魅力,
生命的全程都弥足珍贵。
“茶人往往因茶而群,
却也往往因茶而孤。
群居借由茶的聚众能力在人世间作大修行,
孤处则可以检藏内在,
梳理生命。”
李曙韵《茶味的初相》
看似平淡无奇的注水,
出汤、
喝茶,
也会有期待
、牵挂。
借空间解构引入茶的意境,
如呼吸吐纳一般,
感受天地精神,
山川景象。
UTIEN ARCHITECTURE
▼
分解说明
▼
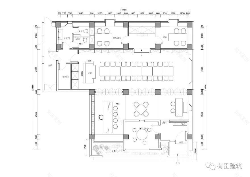
平面图
往期作品:
UTIEN|雲水瑶
UTIEN
|
鹿 与
UTIEN ARCHITECTURE
项目名称
|
荼十 茶空间
项目地址
|
辽宁 沈阳
完成时间
|
2019
设计公司
|
有田建筑工程设计有限公司
客服
消息
收藏
下载
最近
















