查看完整案例

收藏

下载
陆家嘴,上海中心边上,王思聪家隔壁,顶楼俯瞰黄浦江,这些条件和头衔只能说明房价很高,而真正的空间是属于家里的每个成员的,面积有价,空间情感却是无价的,生活的空间本该简简单单,舒适自在。
上海的最明显的地标无外乎是外滩和陆家嘴了,那里的黄浦江,气势磅礴,百舸争流,虽然我作为在上海很多年的人,不会带着朋友也不会自己主动去参与“游客们”的陆家嘴路线,但是说实话,每次经过陆家嘴,看着三件套,看着对面的外滩美景,也是忍不住想多看几眼。
越是喜欢越是留念,越是心有灵犀般的,2017年我们结束了外滩边的L7酒吧的设计,去年就接触到了一个紧靠上海中心边上的项目。
第一次大家去看现场,就是各种的“哇”,因为景色太美了,透过窗户就可以看见上海中心,眼睛视力好点甚至可以看到忙碌工作的楼里的人,项目位于盛大金磐顶楼,一共三层,顶楼露台可以俯瞰黄浦江全景。
第一次看到的项目露台美景
此居住空间面积大约600多平米,居住的是一家六口人,父母和四个孩子,三个女儿一个儿子,我们第一次见面是和母亲以及大女儿,女儿的气质非常好,母亲也是平易近人,对于家他们更希望的是舒适就好,不想花里胡哨,我们当时的感觉就是已经不需求太多装饰了,因为不管是空间外围的风景还是空间本身都是很有装饰性的,整个三层空间原本就是一个弧形楼梯连接,楼梯顶端就是一个大天窗,都能想象当阳光洒进来的样子有多美,在聊天中,得知女儿们都喜欢芭蕾,还有练芭蕾的,我一下想到这个楼梯,旋转的样子不正和芭蕾一样,一个亭亭玉立的美丽舞者在翩翩起舞,踮起脚尖......
舞者,优雅,质感,舒适就是我们的空间和关键词,满足基本需求的同时
营造的就是一种舒适质感
空间。
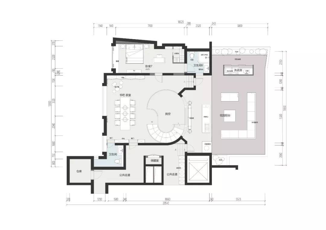
一层平面功能图
二层平面功能图
三层平面功能图
考虑到家里经常会来亲戚,业主对于卧室的要求比较多,还希望是套房的方式,互相不打扰,所以空间中我们做了七个卧室,在尽量多的私人空间中,除了客厅餐厅以外,我们让中间的楼梯空间也能够成为大家相遇和短暂交流的地方,楼梯的通透性和趣味性能够影响到他们的行为。
连接一至三楼的旋转楼梯
客厅与休闲吧台
休闲吧台细节
旋转楼梯顶部
旋转楼梯
顶层天窗
部分小景
建造施工过程
北窗视角-上海中心
一杯茶,依靠窗边,黄埔岸—南窗视角
第一次来现场是下午,临近晚霞,天气非常好,但是当我们来拍空间的那天,下起了雨,天气阴沉沉,边上的上海中心都被埋在云雾中,拍照拍了一天,当我们一直在这里的时候,我们发现其实外面景色再好,有时候只是一眼或者一个放松时的调节剂,更多的时间其实是低下头看手机,看书,工作中,因为
当我们作为短暂的停留者时候,更多的时间是用来看“外面”,而作为真正空间所属者,其实更多时间是用来感受“里面”,所以一开始的 简单,舒适 贯穿始终,不管是视觉上也好,还是功能性上也好,就是一个居住空间,一切以解决问题为前提,更好的满足舒适质感的整体方向,其他也没什么特别的,也没什么说法,让空间所属者住进去能够更好的生活,成为一天疲惫后的一个舒适港湾就是最好的表达。
这么好的户外景观怎么能少的了呢 虽然确实也没什么,就是好看而已
最后把方案效果图po上来(注配音是“院长”所配,请忽略.....哈哈
)
UDstudio(unoduestudio)是2013年在意大利米兰成立,UDstudio致力于原创设计,设计类型以商业空间和精致型定制私人空间为主,我们用心对待每个项目,让空间因为设计而体现最重要的价值。
承接建筑设计,室内设计(商业空间设计,酒店设计,餐饮设计,展厅设计和精品住宅等空间)方向业务
UD工作室地址:上海市静安区愚园路579弄27号前门
客服
消息
收藏
下载
最近

























