查看完整案例

收藏

下载
“空间改造一定要适合居住的人的生活习惯,以及培养他们更好的生活方式。”
五年前我们曾经参与了北京卫视《暖暖的新家》最后一期(
北京卫视《暖暖的新家》节目
),对于电视节目型的改造项目可以说是体验了一把,改造类的基本问题是
面积小,问题多,要求苛刻且变数多,
过程则是艰难而刺激,当然也会碰撞出意想不到的火花和结果。
这次我们UDstudio李诚默应邀参与了上海电视台新闻综合栏目《筑家有道》,一起探讨关于房子的硬伤等先天性问题。
说到房子的先天性问题,能够想到的就是户型,尤其是
小户型
,在面积不够的情况下又要将很多空间功能保留并能够分隔开,其实也是比较考验设计能力的,我们在之前的项目中也曾经
接触过一些小户型改造。
分享的第一个案子是我印象比较深刻的一个案例,去看现场的时候就感慨好奇葩的户型,虽然不是跑道房,
却是个“走廊房”
。
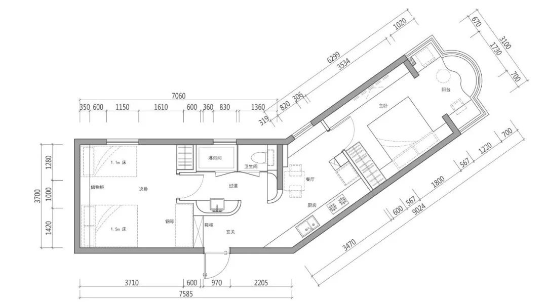
原平面
卫生间和厨房在房子的中间连着两端的房间,并且过道又窄有没有任何功能,打柜子就会影响过道宽度。这样的问题相信很多小户型都会有,尤其是这种
“长形的户型”
。
原平面走廊
我们设计的重点也在中间这个区域:卫生间和厨房,第一如何让空间使用舒适,第二如何保证空间功能属性。小空间最重要就是面积,空间面积大小决定了行为的舒适度,再合理的布局,如果是小于人体极限的空间尺度,相信都只是看上去好看的一个平面而已,
所以空间要被打开并将功能叠加,这样子可以既保证舒适度也保证功能性。
改造后平面
玄关区域也是相对独立,卫生间的干区洗手台区域即是通往次卧的通道也是干区的站立区,原先的过道空间变为开放式厨房区域,虽然看似开放式厨房,从空间尺度上来说,卧室门一关基本都属于厨房区域。
改造后平面
因为这个小项目是做了一个概念方案,所以只是简单出了一个SU模型,没想到业主还原的还是比较好的,最后施工完后住进去也收到了业主最真挚的感谢,这也是我们最能够感受到价值的一刻,
让空间变得更好更有价值。
概念视频效果
业主装修过程中拍玄关以及卫生间干区
开放式厨房区域
回到《筑家有道》
,这是一档针对各种设计和装修施工中的很多见的问题进行求助和解答的家装服务类节目,这次委托人是陈小姐,她和她的先生居住于上海老式小区的一室一厅的房子中。他们在生活的同时因为空间问题产生了很多烦恼。
《筑家有道》节目
陈小姐家问题:
1.入户门开启之后直对洗手间和厨房间的门。起初存在美观问题,陈小姐在门口放了个衣柜来阻挡部分视线。虽说门对门的问题从视觉上看似避免了不少,但是在添加衣橱后,玄关处起来变得更加局促和拥挤。希望解决入户门正对洗手间和厨房的户型硬伤问题。
2.内开入户门开启后和鞋柜产生冲突,造成换鞋不便的问题。同时,进门后没有放随身物品的地方,希望增加玄关收纳。
陈小姐家里现场情况
看完原户型图问题:入户门打开就是对着卫生间的门,厨房和卫生间的门紧挨着,没有餐厅,没有玄关。
对这些硬伤,我们UD团队给出了四个方案:
方案一
厨房与客厅融合
客厅空间加大空间叠加多元:玄关+客厅背景墙 吧台+中岛+餐桌 洗手台区域+过道
参考意向图
方案二:
西式聚会式客厅布局
吧台兼餐桌
客餐厅一体
开放式厨房与社交客厅结合
公共区域自由开放
聚会式社交客厅 卡座与厨房关系
方案三
无界卫生间空间
酒店式卫生间做法
干湿分区并合理重复利用过道空间
视频效果
方案四
客餐厅一体并融合
玄
关柜和电视背景墙
融合
过道和卫生间融合
餐桌形成一个围合空间
客厅沙发也可以做成转角卡座
或者一排书柜和卡座的结合
视频效果
解决了陈小姐家的难题,对于房子的硬伤基本集中在层高矮,柱子多,门对门等。对于这一类问题,我们也有一些看法和解决方式。
门对门的设计在一般小户型是常见的。
“建筑层面上只是解决空间问题,但在室内层面上要解决的是功能的问题。”以前的建筑设计只用墙去区分空间,但要让空间互通,只能用门。之所以有门对门的问题是因为只能门来开洞让墙与墙之间的空间互通。因此我们需要考虑门的洞应该开在哪儿,怎么开,能不能开,和好不好开洞等一系列问题。居家空间中尽量避免门对门,尤其是入户门对着其他空间的入口,可通过改变门的位置,或者门的开启方式以及使用功能等,例如隐形门或者推拉门等方式。
小户型的层高比较低
层高在小户型的舒适度中占到了很大的影响。我们可以通过利用层高差,灯光,色彩设计或者墙面比例划分来解决。巧妙运用层高差;采用无主灯设计来增加层高(尽量在层高矮的地方不用吊灯,反而使用更多的射灯或者落地灯形成光源让空间更加温馨);通过色彩设计使用加灰度的色彩,例如,中灰,浅灰,或者米灰偏暖色;在墙面的比例划分上使用不同比例,例如顶部的一部分高度跟顶部一起走,从而拉高整个空间的横向视觉效果。
小户型的空间通常有立柱或梁柱,同时柱子多
面对粱或者承重柱,需要把它们好好保护起来,并且做到柱子和装饰互相融合。烟道也是如此,有的烟道经过改造可能横在屋子的中间,这时候需要将它装饰起来,并且与整体的空间结合。
这些是对于问题的一些解决办法,不过空间的设计还是需要整体系统全面的去考虑,结合空间主人的本身情况,结合空间所属者的生活需求和生活习惯所设计和改造,最终需要解决的是基本问题,但同时还是能提高空间主人的预期,让他们在原有需求基础上真正住进空间后有更好的体验和感受,相信这时候他们就可以感受到有价值的空间的真正魅力。
完整上海电视台节目视频:
最后谢谢
新浪,谢谢倪导,
谢谢陈导,
还有
各位小伙伴
!
节目录制现场
UDstudio(unoduestudio)是2013年在意大利米兰成立,UDstudio致力于原创设计,设计类型以商业空间和精致型定制私人空间为主,我们用心对待每个项目,让空间因为设计而体现最重要的价值。
UD工作室地址:上海市静安区愚园路361弄50号前门
客服
消息
收藏
下载
最近





















