查看完整案例


收藏

下载
案例简介
Case description
家居空间的展现形象来源于居者生活方式且随之而变,以人为本依需而行,完善当下空间的家居使命。
在本案中,我们将一楼的公区完全打开,使空间更加开阔通透,功能区规划重组,基本实现动静分区。相对独立的入户区,将归家的仪式感拉满,吧台区的一抹亮眼的红色更是诉说着居者对生活的热情,挑空的客厅简洁大气,上下悬浮的电视墙、透明的亚克力隔断,无一不在诠释着空间的灵动与曼妙。
本案常住人口为两人,屋主希望将餐厨区设置在二楼,我们便转换思路,利用房屋独特的建筑结构塑造出一个清新典雅的烹饪区和用餐区。除此之外,我们还赋予楼梯浓郁的艺术气息,让它不只是串联空间的通道,更是洗涤心灵、修身养性的场域。
以别具一格的现代手法,将色彩的和谐与张力如细雨般自然呈现,在比例、平衡性上体现结构、线条、比例的理性,在互相对比中传达整体的协调性,诠释协调对比的设计魅力,只愿为居者的家居生活创造更多的幸福与可能性。
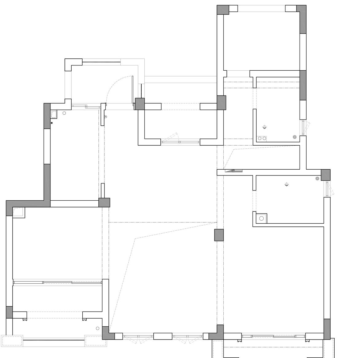
一层原始图
一层平面图 1、摒弃传统的客餐厨一体式的格局,原有的餐厨区设置为吧台,宽敞的过道畅通无阻 2、吧台后方的卫生间采用干湿分离式设计,并与多功能房相邻,为客人留宿提供便利 3、把楼梯完美地展示出来,在一旁打造书房,并将阳台外移,使书桌有安放之地 4、将主卧设置在一层,调整卧室门位置,创造更为合理的洄游动线
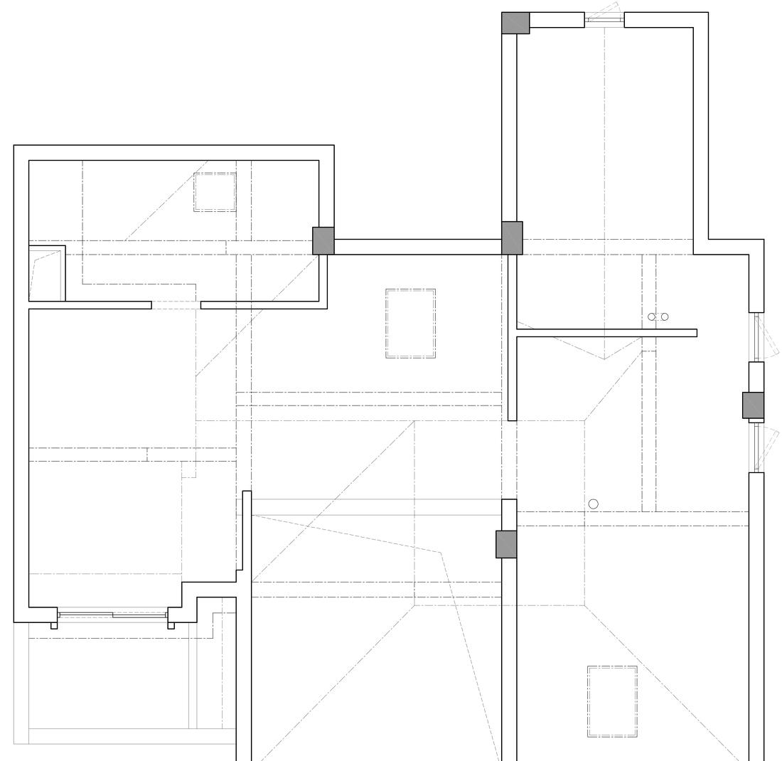
二层原始图
客厅上方挑空,视觉上更加开阔,使人在精神上感觉到舒缓、放松,有效地释放压力。沙发背景墙下方用木格栅点缀,自带质朴气息,流畅的线条感及有序的排列,勾勒层次丰富的视觉空间。 #客厅 #空间 #软装#沙发 #地毯
客厅上方挑空,视觉上更加开阔,使人在精神上感觉到舒缓、放松,有效地释放压力。沙发背景墙下方用木格栅点缀,自带质朴气息,流畅的线条感及有序的排列,勾勒层次丰富的视觉空间。 #客厅 #空间 #软装#沙发 #地毯
客厅地面铺贴人字拼木地板,并行排列的曲折纹样极具现代的时尚魅力,让空间温柔又灵动,搭配一张绿格子地毯,多种材质呈现不同的肌理,为居者营造一片城市滤镜,感受宁静与放松。 #客厅 #人字拼 #软装#沙发 #地毯
通过体块的衔接堆叠打造的悬浮式呈现出轻盈质感,空间隔而不断,光线肆意穿透,视野也可无障碍穿梭,为居者创造自由随性的生活空间。 #客厅 #空间#电视背景墙#电视墙
白色边框将黑色的电视包裹,色彩碰撞带来精致的艺术盛宴,电视侧边用黑色钢板打造开放格,凹凸有致的造型让空间更具层次美感。 #客厅 #空间#电视背景墙#电视墙
客厅整体的色彩选择都十分温和,纯白色与可可蛋奶色加上原木色的点缀,恬淡自然的肌理与富有变化的木质纹理相互融合,巧妙地保留了空间原有的魅力。 #客厅 #空间#地毯#茶几#沙发
简单的吊顶走边将中央空调隐藏其中,透露出本真朴实又不乏清雅的审美感受,简单的软装搭配看起来极度舒适,加强了家的氛围感。 #客厅 #空间#人字拼#地毯#茶几
圆形的茶几造型低矮,但却更能让人放松下来,卸下一身的疲惫,享受难得的温情,窗边的纱帘在自然光线的烘托下,意境悠远,强化了自然纹理的细节质感,让空间更具韵律感。 #客厅 #空间#地毯#茶几#纱帘
将原有的餐厨区域完全打开,打造一方吧台,因为餐厨放在二楼,所以一楼设吧台满足饮茶喝水的需求,提高生活的便利。地面铺贴温柔的肤感砖,以材质的不同区分空间,一抹明艳的红色在整体清浅的色调中格外突出,点亮了空间的生动与活泼。 #吧台#柜#收纳#无主灯
吧台区左侧为楼梯间,抬高地面做成地台,承重柱与透明亚克力连接作为空间的隔断,让光影产生渐变折射的效果,别有新意。 #空间#吧台#楼梯#柜#收纳
亚克力隔断造型上的红色时钟与同色系的吧台椅形成呼应,打破单调的空间氛围,增添强烈的色彩冲击感,从而传递出居者热烈赤诚的生活愿景。 #空间#吧台#楼梯#柜#收纳
明艳的红色在大面积留白中格外耀眼,冷暖色调的强烈对比凸显出高级的娇俏与可爱,为空间打造出神秘优雅的视觉效果。 #隔断#亚克力#空间
吧台一侧的收纳柜将白色与浅焦糖色合理配比,自然地流露出时尚质感,赋予空间一丝暖意,无把手的设计干净整洁,让空间更为清爽与柔和。 #吧台#桌子#收纳#柜
圆润的吧台桌以一柱实心的稳固桌脚支撑,充足的空间可以舒适置脚,搭配一把红色的吧台椅,自然渐变的简约线条+巧妙点缀的温婉曲线,时尚个性提升空间气质。 #吧台#桌子#收纳#柜
吧台右侧为入户区,隔断墙内侧用浅浅的奶茶色勾勒出四分之一圆的造型,垭口一侧的墙面用白色+奶油色拼接而成,空间层次感不彰自显。入户区一侧放置同色系换鞋凳,保证空间的整体性,同时也方便进出时穿脱鞋子。 #吧台#桌子#灯#纱帘#采光
吧台后方过道可通往卫生间、主卧和多功能房,转角处墙面点缀线条,流畅的竖纹给人一种层层推进的视觉感,把空间渲染得简洁优雅。 #空间#无主灯#落地灯#过道#走廊
从吧台看向书房 我们将外侧的阳台空间压缩,为书房腾出一方宽敞自在的天地。透明的亚克力让视线一览无遗,增强光感的流动与空间的通透性,区域的自然衔接与和谐的空间语言,将细腻的情感缓缓传达。 #地台#书房#楼梯#书桌#采光
书桌紧靠电视背景墙,简约的造型含蓄而内敛,沉淀出浓厚的人文内涵,搭配一把黑色椅子,共同描绘出优雅舒适的办公氛围。 #书桌#采光#书房#纱帘
应屋主的需求,将楼梯的造型完美地呈现出来,楼梯扶手以纯净的白色包裹,轻盈而不失稳重的姿态激发了对空间与光线生态交融的前瞻性探索,传递出居者简雅不凡的独特品味。 #楼梯#扶手#楼梯设计#空间
楼梯的扶手以几何块面交叠而成,交叉的线条与客厅人字拼地板的排列形式有异曲同工之妙,多样元素在空间融为一体,诠释浪漫典雅的独特魅力。 #楼梯#扶手#楼梯设计#空间
纯白色的扶手中间是木质的踏步,材质与质感的交替,避免了空间感受的单一,在坚硬感与温润气质中繁复交迭,形成了极为丰富的空间层次。 #楼梯#扶手#楼梯设计#空间#踏步
蜿蜒的线条与弧度巧妙地柔化着空间转折的硬朗感,让生活的每一个角落,都萦绕着舒适、自然、温暖、和谐的气息。 #楼梯#扶手#楼梯设计#空间#踏步
沿着楼梯来到二层,玻璃护栏的质感在视觉上支撑空间、塑造层次,拉近了人与物的距离,创造出多元的情态。 #楼梯#扶手#楼梯设计#空间
餐厨区根据需求调配放置二楼,与建筑结构结合呈现有其特色的功能区,感受不同形态下的空间魅力。橱柜均选用清浅的绿色,与白色、灰色的墙面搭配,显得空间干净而淡雅。 #厨房#橱柜 #岛台 #地柜#动线布局
厨房采用L型布局,并增设一方岛台,一侧斜顶的小窗引入光线,大面积的浅绿色给人带来舒适和清新质感,给足了烹饪的仪式感。 #厨房#橱柜 #岛台 #地柜#动线布局
餐厅位于楼梯扶手一侧,整体的色系将稳重的中性色调与自然的绿色系相融合,餐桌上方垂落一盏飞碟造型的吊灯,遮光板与灯罩中间分离,使光源向四周散开,为用餐空间增添艺术气息。灰色与绿色餐椅相对而立,给餐厅带来了自然的气息, 使人身处其中时体会到一种诗意与悠然。 #餐厅#吊灯#餐桌#桌面
主卧睡眠区延续公区的色调和氛围,床头靠背处的背景墙内凹,搭载温暖的橘棕色,与大面积的白色和可可蛋奶色相融合,让人感到舒适与温馨。床头一侧打造整墙衣柜,横向内凹的拉手设计增加立面感,柜门下方采用波浪造型装饰,衬托出柔美浪漫的起居氛围。 #床头柜 #无主灯 #衣柜 #卧室#纱帘
在床尾一角布置梳妆台,兼具小书桌的功能,脏粉色+白色,不对称的抽屉设计显得颇有格调。悬浮式的设计不占地面空间,让卧室更加开阔,少了一些畸零角落,更方便打扫的同时也不容易积灰。 #书桌#台灯#桌面#收纳
卫生间采用干湿三分离的设计,以独具特色的现代手法保证空间的通透与干净,钻石型淋浴区两侧分别是马桶和洗手台,马桶一侧的转角内部则是独立的浴缸区。马桶后方墙面打造一扇拱形小窗,搭配百叶帘,增添一抹视觉亮点。 #卫生间#马桶#淋浴区#防水
客服
消息
收藏
下载
最近


































