查看完整案例


收藏

下载
于一室中
人猫共居
自得其乐
关于屋主:
本案屋主是一位可甜可酷的 95 后女孩儿,Lacey 是时尚博主也是收纳达人,一个人居住,有两只猫,希望我们为她打造一个属于自己的独处空间,享受在家的美好时光。
▼Lacey 的日常生活照
▼Lacey 的画和两只猫
左手艺术,右手生活,身份叠加,每一面的她,就这样,在自己的节奏里,积攒阳光。
房屋信息:
项目地址/中国·成都
项目户型/ 四室改两室
项目面积/ 100㎡
全案设计/吴晨· 何雨晴
项目造价/ 50w
设计时间/2020 年 07 月
屋主需求:
1. 一个人,两只猫,无需太多卧室,唯一的要求就是“空间一定要大”!
2. 喜欢给自己拍有意思的照片,希望家里空间灵活有趣。
3. 同时也需要考虑一个临时居住的空间,兼顾偶尔的客房功能。
4. 有收纳癖,不喜欢物品暴露在外面,想要家里可以随时保持整洁,也要方便打扫卫生。
5. 想要一个黑色的厨房。
■ 格局分析
▼ 改造前的原始结构图
1. 在面积 100 平的空间里,每个区域都很方正,但是四个卧室让每个空间都很局促,没有开阔的使用感。
2. 入户到客厅的过道有近 8 米长,狭长又闭塞,还很浪费。
3. 厨房不仅小,且需要通过生活阳台采光。
■ 户型改造
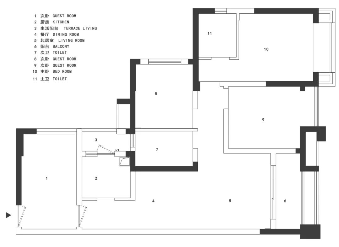
▼ 改造后的平面布局图
空间改造:
1. 将原有卧室、厨房及生活阳台合三为一,扩充了厨房的使用功能,采光也由二次采光变成了直接采光,同时合理解决了过道浪费的问题。
2. 以餐厅为中轴线,模糊了公共空间的边界,巧妙采用圆形的餐桌,弱化了从玄关到客厅近 8 米过道带来的狭长纵深感。
3. 多功能房与客厅、阳台休闲区相结合,将阳台纳入客厅,与多功能房一体做“L”形地台:当移门全部打开时,一个人在家可以自由切换不同生活状态;当移门关闭时,这里便是一个独立的空间。
4. 打通原有次卧空间,与主卧形成一个整体套房,满足了衣帽的收纳功能。
5. 两卫改一卫,舍弃原有主卫,扩大现有公卫的空间,让平时使用起来更方便。
【改造核心】:年轻人的家从来不被常规定义,我们的家慢慢从一个“给别人看的地方”,变成了“给自己住的空间”,不同功能之间会奇妙地自我调适,协调兼容,在它们之间创造对话。
■ 玄关+厨房
▲生活阳台,玄关及厨房平面布置
定制的弧形不锈钢削弱了柜体原本的尖锐感,搭配不同类型的不锈钢家居单品极具创意个性。
从入户到厨房,再到客餐厅,我们从材质和色彩切入,把玄关+厨房区域打造成一个立体的深色方块。
材质由冷变暖,色彩由暗转明,想要营造出一种“柳暗花明又一村”的感觉。
厨房改为开放式,加入岛台,形成玄关+厨房的洄游式动线:1.8 米的独立式开放岛台成为功能和视觉的中心,白色细腻的波纹板和纹理复古的玉石台面形成鲜明的对比。
▼石材选品
玉石的选品我们大概从十几种样品中选出来,最终选择了这块名为“老虎玉”的玉石,根据玉石整板的不同纹理,我们把它划分到了空间的各个区域。
把生活阳台移位以后,厨房空间变大,采光也由二次采光变成了直接采光。加入不同层次的跳色点缀,打破单一的视觉感,让空间格调满满!
厨房的设计我们也为 Lacey 考虑了充足的收纳空间,依照就近收纳原则,常用和不常用的物品都可以放进柜内,随时随地保持干净整洁。
从地到顶的不锈钢立柱,是原有的管道位置,空间纵向上,利用不锈钢镜面延伸,光影虚实之间,制造了空间的张力。
垂直和水平的线条配合的天衣无缝,在整体空间协调统一的情况下,每个元素都力求独特,尽可能地实现更多的细节变化。
岛台对面也增设了一排长 3.75*高 2.35 米的柜体,我们占用了 1.4 米的空间专门给 Lacey 的两只猫咪定制了猫爬架,作为它们平时嬉戏和睡觉的地方;其余部分全做了一柜到顶的柜门,不仅可以放置猫粮,猫的玩具,还可以作为玄关处鞋柜的补充,方便日常的打扫收纳。
■ 生活阳台
由于进门的便捷性,单独设计了一个日常换鞋的区域,紧挨着的是可以通往生活阳台的折叠门。
■
餐厅
以餐厅为中轴线,模糊了玄关、厨房及客餐厅区域的边界。圆形的餐桌使用,也弱化了从玄关到客厅近 8 米过道带来的狭长纵深感。
餐桌上的熔岩壁灯,是每个时尚弄潮儿都种草过的,巧妙地打破了餐厅整面白墙的单调。餐桌对面则采用近几年很火的亚克力展示架,里面可以放置一些 Lacey 平时拍的潮玩照片。
中古的三角椅和 Z 形椅,抽象的几何形态加上最纯粹的色彩表达,摆在这里本身就是一件艺术品。
■
起居
把客厅的沙发靠窗,用绿植当沙发背景,在一片素雅细腻的色调中,呈现出现代极简的舒适与惬意。
阳台纳入客厅,与多功能房一体做“L”形地台,靠窗给自己打造一个观景区,搭配百叶窗帘,光影绰绰,铺上坐垫,就是一个惬意的休闲角。
▼Lacey 捕捉的光影变化
电视也可以是一个扮演多种角色的家居单品,可移动的三星 Serif 画境电视,无论摆在家里哪个角落,都能完美融入。白墙的设计是多元化的,不看电视的时候也可以放置投影。
客厅的整个设计,它具象化了现代年轻人的生活态度:随性,不拘谨。
多功能室
半悬空的墙体完全可以隐藏下四联动的移门,错落有致的方形和圆弧叠加,在灯光的点缀下,颇具造型感。
一个人的时候,这里属于 Lacey 自己的私人空间,画画阅读、撸猫亦或是小憩,自由切换不同的活动状态。
多功能房通过四扇木制移门与客厅划分边界,当 Lacey 有朋友过来时,把日常收纳在柜内的床品铺在地台上,轻轻滑动木门,这里便是一个临时的居住场所。
地台上做了两排收纳柜:一侧深度为 0.6 米,刚好可以收纳进不常用的折叠床垫和其余大型杂物;另一侧深度为 0.3 米,作为 Lacey 日常的零食储物柜。
通往主卧的双开门和地台都有内嵌灯带,当夜幕来临,夜晚灯下的家,像温柔的妆点,浪漫不止,妙不可言。
■
主卧
一个人住的家,可以自由自在,给自己一扇高颜值的双开门,每天都可以享受这份仪式感带来满满的幸福感。双开门的位置,我们也是精心考虑。
▼从餐厅往卧室方向看
双开门打开之后,卧室别有洞天:深色柜体和乳胶漆将卧室一分为二,床头延伸出来的老虎玉玉石地台穿插其间,形成视觉上的趣意联通;同时借由卫生间原有管道,刷上色彩鲜艳的艺术漆之后,瞬间跳脱出来,成为另一个视觉焦点。
▼从餐厅往卧室方向看
弧形墙连接着卧室和衣帽间,我们将墙顶面统一色调,沿用厨房+玄关的的设计手法,激起观察者对居住空间的想象。
▼从卧室往餐厅方向看
与对面弧形墙相互呼应,弧度由左向右慢慢延展,像卷轴一般过渡自然,增加了居家生活的艺术美感。
奶油同色系的墙面和床头背板组合简单干练,整体呈现出的质感舒适,让人感觉很放松。
卧室除了深色带来的神秘感以外,老虎玉玉石作为床头柜也很有趣。
温暖的灯光通过墙体反射,带来了恰到好处的睡眠氛围,也是 Lacey 对品质生活的体现。
方圆之间,开放性的镂空圆洞设计,四面镂空的圆洞不仅拿取物品方便,更有充满建筑的美学之感。
看似不经意的几何凹缝,确是我们独特巧妙地细腻之处。
衣帽间
酷帅的黑色衣帽间,像极了 Lacey 爽朗的性格,可甜可酷,不被定义。
相比较于规规矩矩的格纹,经典棋盘格的两种色块交错组合,自由酷感以及充满了更多的塑造性和创造性的同时又兼具复古之感。
■
卫生间
黑色+奶油色,有被惊艳到,每天回到这样的卫生间洗漱,很快就会冲走一天的疲惫吧!
住宅设计 / 民宿 / 软装 / 商业 办公
▲/
喜欢可留言并转发朋友圈
/
/
/
#往期推荐#
点击查看往期作品
▶
:
95 后设计师的家
点击查看往期作品 ▶:留之沐楚
点击查看往期作品 ▶:凡塔式
点击查看往期作品 ▶:童罗梦,独享“无边界”的浪漫
点击查看往期作品
▶:MC HOUSE
点击查看往期作品
▶:影像中的表白
点击查看往期作品
▶:框景
点击查看往期作品
▶:阅宅
客服
消息
收藏
下载
最近




























































