查看完整案例


收藏

下载
学区房、老小区、六口之家、手枪户型、面积 55㎡、图书馆氛围、练瑜伽和舞蹈 等等 .....来看看我们是怎么改造的吧。
【关于屋主】:
1. 这个项目是位于广州越秀区恤孤院,这里保留了民国建筑,街道两边都是红砖碧瓦的东山洋楼。如今有很多年轻人来这里拍照取景,还有不少文创类小店、小型艺术展。这里也是优质的学区房,我们第一次来到这时,打破了以往对学区老房子的印象,虽然房子只有 55 平,但周围的环境氛围让人感受非常舒服。
我们沿路随拍的街景
2.因为是手枪户型加上需要居住 6 口人,并且是陪伴两位小朋友成长的环境,难度比较大。
屋主在找到我们之前,已经在广州本地咨询了很多公司,都无法理解和满足她们的居住需求。
机缘巧合屋主看到了我们在网上发表的小户型改造实景项目,
我们经过一系列沟通,屋主决定把人生中这件重要的事情交给了我们。
房屋信息
项 目 地 址 / 中 国 · 广 州
全 案 设 计 / 吴 晨 · 何 雨 晴
项 目 面 积 / 55 ㎡
项 目 造 价 / 35 W
设 计 时 间 / 2 0 1 9 年 08 月
【关于屋主居住需求】:
1.需要满足的居住人员:
夫妻 2 人,小朋友 2 人(女儿 5 岁、儿子 2 岁半),双方的母亲 2 人,双方父亲 2 人
(来住的频率极低,但也希望可以兼顾);
2.希望客厅是给孩子阅读、绘画的地方;
3.书籍很多,使用频率高的部分希望展示且方便拿取;
4.喜欢图书馆氛围,希望有一个大书桌陪伴孩子看书、学习、兴趣爱好等;
5.女主有练瑜伽的习惯,女儿学习舞蹈,希望有地方可以练习;
6.小朋友玩具多,需要收纳和玩耍区;
7.对厨房的功能使用和收纳要求高,在家做饭频率几乎一日三餐。
▼改造前的现场
我们拿到现场照片的状态已经是屋主找人拆至毛坯后的。
户型改造
▼改造前的原始户型
【原始结构】:
缺点和难点:
1.户型为手枪型,如果房间都是独立的,势必会形成很多单一的通道;
2.原结构的厨房需要通道卫生间外面的通道进出,卫生间的两根直径 110mm 排水管排污管,所在位置也是该户型规划时的难点之一;
3.居住人员卧室的划分也是非常大的难点。
户型优势:
房子的是朝东南,且窗外没有高楼阻隔,所以采光和视野非常好。
▼平面方案的 N 种可能性推敲过程
在平面方案的规划时,我们做了不下 10 种方案的可能性,最终细化了两个不同动线和使用状态的平面给屋主讲解,屋主根据自己的生活状态选择的我们看到的这稿。
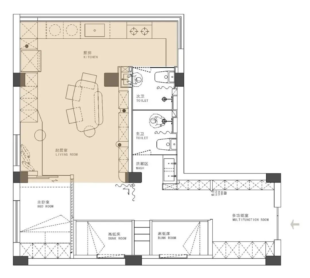
▼改造后的平面布局图
【设计核心/改造】:
1. 在整体改造时,没有单独的区域划分,但又有功能的区分,是这次改造的方向。
客餐厅+厨房
我们把全屋采光和视野最好的一整面,给了整个大空间。
厨房不仅和餐厅可以共融,小朋友可以从自己高低床区域,无障碍地去到客餐厅/厨房,家庭的互动性会非常强。
用餐、阅读、亲子互动、辅导功课、休闲、收纳、烹饪等,都在这个起居室里,这里是一家人每天都常呆的地方。
我们是选了屋主入住了一段时间,去现场拍摄照片,体验屋主住进去后的真实状态和感受。
窗外,近处可以看到周围的老建筑和绿植,远处能看到小蛮腰。广州天气极好,每天在家都充满了美好的氛围。
起居室与高低床区域之间采用 PVC 折叠门,解决私密性。
书柜上方预留了投影幕布槽,以便今后需要。
我们把卧室的收纳移至了公区一部分,和厨房收纳结合。柜内有衣物区、小怪物收纳、工具区、杂物区等,开放格则是两个可抽拉的隔板。
改造后的厨房台面长达 6 米,还可以欣赏风景。
屋主希望家里像图书馆一样,给小朋友们创造好的氛围,也可以在这里做手工、绘画等。
这里的 PVC 折叠门让空间可开可合,小朋友也可以自己拉动。
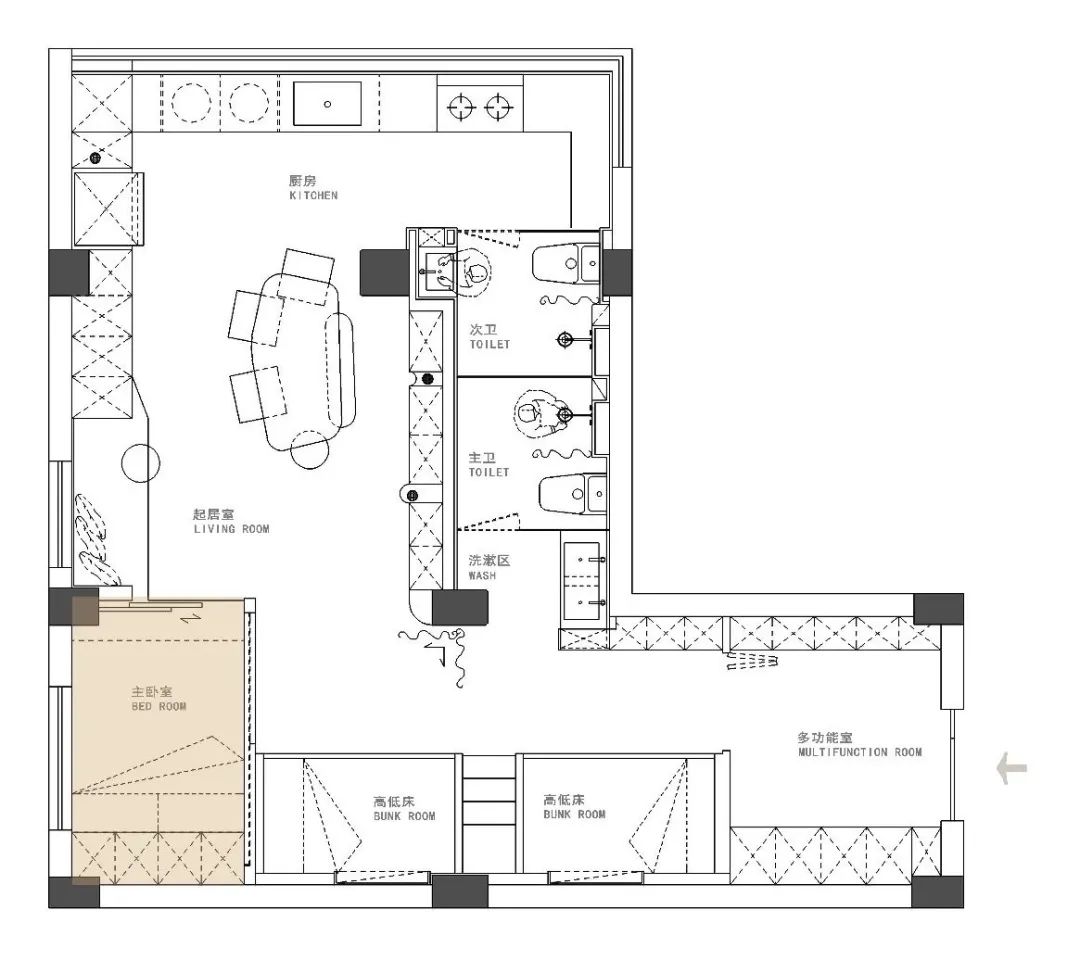
主卧
屋主的房间则设计了榻榻米地台,并且满足 1.8 米的床垫和收纳功能,用木制移门来解决私密性。
床头的收纳分三个区域:上面是可以挂衣物,中间镂空处可以放置手机和书籍等,下面床靠是由硬包和收纳柜组成(柜门有悬空台面板上翻即可打开,内部可以储藏大的杂物,深度 550mm)。
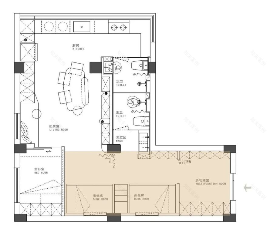
高低床区+多功能区
入户规划了一个区域作为复合功能,小朋友可以玩耍、可以练习舞蹈,并且两面有充足的收纳柜。
.小朋友和长辈的卧房,我们通过高低床形式,由三个睡觉区+一个玩乐角落(可放书桌、玩具、衣物)组成,高低床空间随着户型的走向而产生,像是一个游乐场,让一家人可以无拘无束。当需要睡觉私密性时,我们采用 PVC 折叠门解决问题,也不占用空间。
当居住人员偶尔多至 7-8 人时,高低床也可以临时满足睡觉的合理安排,也不影响空间大小。
入户一侧柜门还考虑了整面银镜,保证屋主母女瑜伽和舞蹈练习有全身镜,同样是 550mm 深度的收纳柜。高低床区域和这一面的书柜也是两个小朋友待得最多的地方,下面设计了开放格可以方便小朋友拿取绘本。
高低床区
房子的总层高是 3 米,高低床配置刚刚好。小朋友们可以在这里自由玩乐。高低床下方的弧形门洞里,是预留的可以增加挂衣区,黑板墙让他们尽情创作。蓝色和粉色的高低床中间,也增加了折叠门,今后成长起来也可以有私密性。
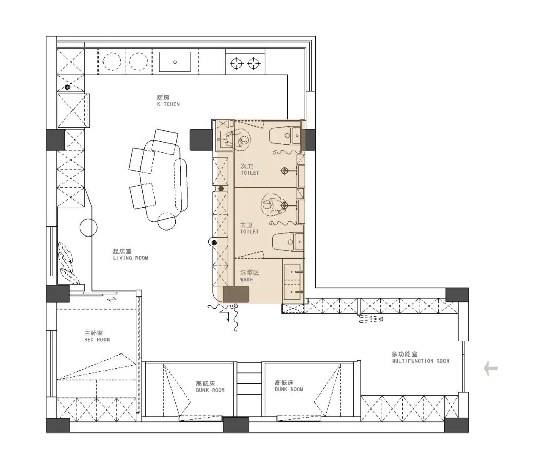
次卫+主卫
由于居住人员比较多,我们尽可能地考虑了两个卫生间,以便老人照料小朋友有单独的使用空间,屋主也有属于自己的使用环境。
次卫采用了双盆双龙头,台面定制的人造石一体盆,小空间大利用。洗手台右侧则是隔板,可以放洗漱用品。
设计师想说:
当我们拿到屋主需求时,面对诸多难点,我们更加坚定接受挑战,从不同维度去思考整个方案逻辑。从自我碰撞的 11 稿方案可能性,摒弃了一切隐藏式家具和可变形家具,到屋主非常满意定稿,以及整个一年多的异地远程沟通执行,中间经历了疫情。
异地的执行虽然花费大量精力,但我们和屋主更加同心协力,每个月几乎一半的时间都会一起沟通大小事宜。入住后的屋主也几次跟我们热情反馈,住的非常舒心。
屋主说:
项 目 摄 影 / 兰 辉
住宅设计 / 民宿 / 软装 / 商业 办公
▲/
喜欢可留言并转发朋友圈
/
/
/
#往期推荐#
点击查看往期作品
▶
:
MC HOUSE
点击查看往期作品
▶:影像中的表白
点击查看往期作品
▶:框景
点击查看往期作品
▶:温和的开放
点击查看往期作品
▶:空无边界
点击查看往期作品▶:阅宅
客服
消息
收藏
下载
最近


















































