查看完整案例


收藏

下载
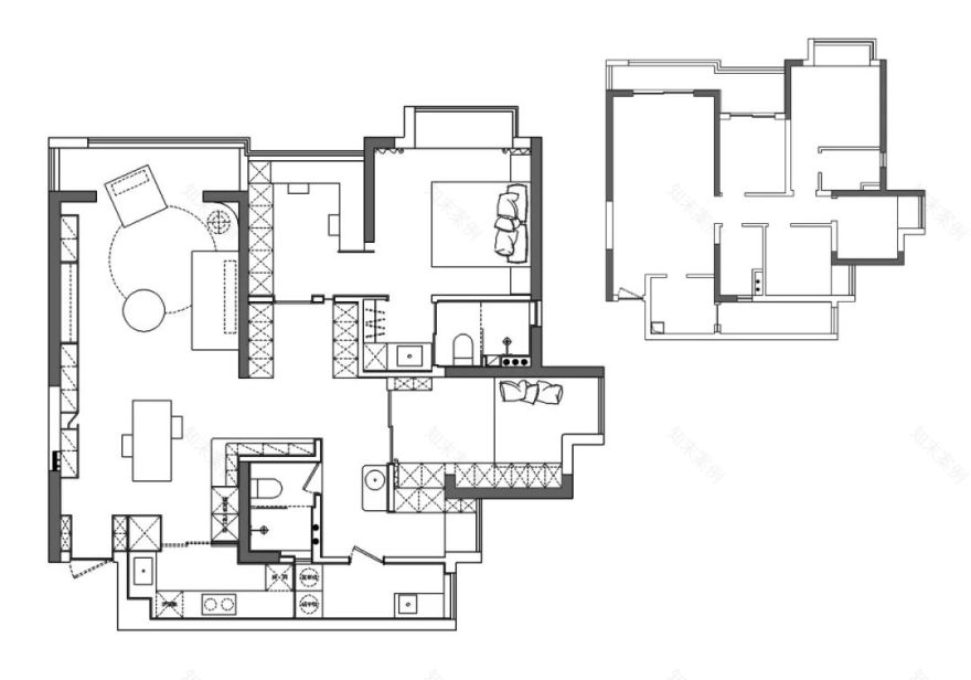
项 目 地 址 / 中 国 · 成 都
全 案 设 计 / 吴 晨 · 何 雨 晴
项 目 面 积 / 110 ㎡
设 计 时 间 / 2 0 1 9 年 1 1 月
施 工 进 展 / 木 作 收 尾 中
点 击 查 看
▶
施 工 进 展 更 新
方案改造平面图
本案图片需横屏
住宅设计 / 民宿 / 软装 / 商业 办公
▲
/
喜欢可留言并转发朋友圈
/
/
/
#往期推荐#
点击查看往期作品
▶
:
MC HOUSE
点击查看往期作品
▶
:框景
点击查看往期作品
▶
:温和的开放
点击查看往期作品
▶
:空无边界
点击查看往期作
品
▶
:阅宅
客服
消息
收藏
下载
最近



























