查看完整案例


收藏

下载
HELLO,
美术三原色会让"她"从油画中回到现实
生活本是一卷画布,我们能做的就是“绘画”出自己更好的模样
— 2019.04.10 —
故事从这里...
“滴……滴……滴……”
“嘿,张哥,你好你好。”
“凯利,哈哈,又要来找你设计了,最近忙不忙?”
“还好,又有啥新项目,铺子找了么?”
“要不见面说?现在有空么,岷山路和渭河路路口,国美电器。”
“OK,五分钟!”
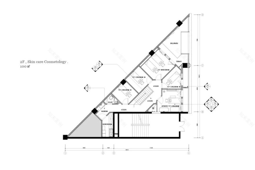
选址是家电卖场(1500+㎡)的分割空间,因业态重新规划,进行了分割出租。我们得到的是一个门面16+m,内部空间120㎡的三角形空间。
对该位置的基建情况进行了解后,确认在最初基建装修中,该区域是一个室内泳池,可下挖深度较深。所以我们规划对空间进行下挖,深度为600mm;那么原高度5300mm的单层,就可以按照一层2900mm、二层2800mm的高度来划分,并在进门处做了挑高处理。
该项目品类为女性美学集合店,业务领域包含:服装、美甲美睫、护肤美容、SPA等(集合店),同时需要兼具举办沙龙、艺术画展的社交空间属性(美学)。护肤美容、SPA相对私密且具有隔音需求,在纵向空间上就很自然的划分为一层动区、二层静区。
在整体建筑外观的概念上,我们提出了“花开打折季”的概念,利用铁板折弯工艺,将铁板造型排列成“水波”的姿态,并种植了蔷薇科的黄木香进行爬藤,配合时光\阳光\雨露等,让大自然将这一份惊喜送给大家。
让设计,自己生长。
往后的春季,花开,打折。
作为动区的一层,我们结合了三原色来进行视觉设计。
我们认为:生活需要调剂,用于调和出各种生活品质和情趣。而我们把作为颜料基调的三原色用在空间,希望在空间中的人们也可以找到适合自己的生活方式,调和出更美好的自己,过更好的生活。
# 三 原 色 #
相当于色环上的“父母”色,而不是通过其他颜色混合得到,他们的位置是平均分布的。
三原色是指色彩中不能再分解的三种基本颜色,有色彩三原色和光学三原色:
色彩三原色(CMYK)
品红、黄、
青(其实不是蓝,是青,蓝是品红和青混合的颜色,我们项目中采用了蓝而非青)
。
色彩三原色可以混合出所有颜料的颜色,同时相加为黑色,黑白灰属于无色系。
光学三原色(RGB)
红、绿、蓝。三原色同时相加为白色。
作为静区的二层,我们想“少即是多”,将二层空间想象成白色画布,而用户和店员们,就是绘成这幅唯美画面的“画笔”。
简单的石膏线条/模仿画布质感的硅藻泥墙面,配合圆弧门扇以及长虹玻璃。
顶面均采用无边框防眩光射灯以及定制花瓣造型主灯,
打开窄边框平开玻璃门就到了户外露台。
— 2019.04.23 —
房租时时刻刻都在计算,和张哥进行整体时间规划后决定,将设计周期和现场的拆除\下挖\搭建隔层等这类基建工作同步进行。
现场的基建工作进行的同时,我们也到现场进行复尺工作(再一次确认\测量各个细节位置,确保后期施工不出问题),发现原先作为整个建筑的水管井目前处于荒废状态,因内部空间都进行了分割出租,各自租户的上下水管都进行了统一的独立安排,在获得原建筑设计公司、物管、房东同意后,我们将该区域墙体进行了拆除,扩大相对应的储物空间与操作空间。
因为空间格局不规则,内部区域的墙体\楼梯位置放样也有了一定的难度。
我们均陪伴式驻场配合施工方放样。
站在脚手架上和师傅们讨论关于店招造型的承重与防水方案,为今后爬藤的黄木香做好准备;
对外的包厢都设置了露台 。
下挖的原因,也导致一层的排水高度低于市政排污管道入口,在设计之初我们在空间的最内端做了污水房(三角形最内部,往往该区域会被封闭,导致浪费),预埋 污水提升泵 ,并做了活动井盖便于检修。一层的排水仅为茶水间的下水,有它就够了。
对于空间内的定制设计方面,不仅在于弧形衣架\圆柱试衣间\亚克力柜\包厢房门等等。
在服装区的中心我们使用
水
波纹不锈钢与
羽毛
装置结合,定制了独有的灯具。
来体现
悦半里
想表达的女性柔の美。
— 一切,正在绽放…
—
项目信息
项目名称:
悦半里 生活美学SPA
项目地址:
宁波市北仑区岷山路945东侧
设计团队:
Yo Studio | 无中生有设计
设计总监:
王凯利
设计成员:
王肆岑、王新春
空间面积:
220㎡
设计时间:
2019.04
摄影团队:
单行线建筑空间摄影
感谢您的观看。
在未来,
让我们一起 成就 更好的我们。
Thank you.
您还可以点击下方链接,查看 Yo Studio x 2019 的其他作品
-
更多信息关注
无中生有设计
- Yo Studio -
| THANKS |
客服
消息
收藏
下载
最近

































