查看完整案例


收藏

下载
【项目
类型】
别墅
【项
目
地点】
南京·长乐渡
【建筑面积】
560㎡
【主案设
计师】
龙瑞 总监设计师 顾伟
【项目施工】
南京龙瑞装饰设计工程有限公司
诗情画意的居住环境,花草繁茂,绿树浓荫,不谈悲喜,不争朝夕,用一种怡然自得的生活态度,让奔波忙碌的脚步放缓,诠释平淡之中的另一种幸福。
·负二楼平面布置图·
·负一楼平面布置图·
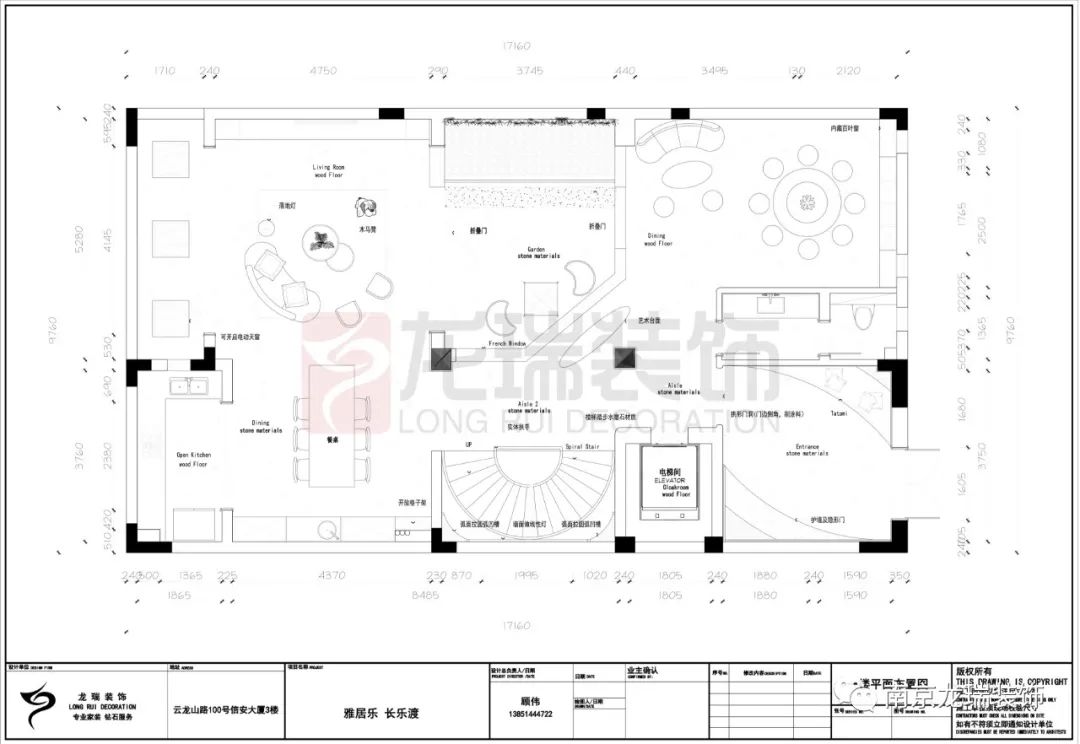
·一楼平面布置图·
·二楼平面布置图·
■
疾风怒雨,禽鸟戚戚
霁日光风,草木欣欣
可见天地不可一日无和气
人心不可一日无喜神
■
欲做一精一金美玉的人品
定从烈火中煅来
思立掀天揭地的事功
须向薄冰上履过
■
登高使人心旷
临流使人意远
读书于雨雪之夜
使人神清
舒啸于丘阜之巅
使人兴迈
■
夜深人静独坐观心
始知妄穷而真独露
每于此中得大机趣
既觉真现而妄难逃
又于此中的大惭忸
■
宠利毋居人前
德业毋落人后
受享毋逾分外
修为毋减分中
■
矜高倨傲
无非客气降伏得
客气下而后正气伸
情欲意识
尽属妄心消杀
妄心尽而后真心现
■
居轩冕之中
不可无山林的气味
处林泉之下
须要怀廊庙的经纶
■
本案设计师
▌
南 京 龙 瑞 装 饰 设 计 工 程 有 限 公 司
管家式装修服务
●
从事高品质的装饰事业
持 续 做 一 家 受 人 尊 敬 的 企 业
■
个人案例分享
【 长岛观澜 250平 新中式 】—— 清新淡雅,别有诗情
【 艺树家工坊 200平 现代极简 】—— 静敛霜眉
【 万科金域蓝湾 240平 现代简约 】—— 浮·生
【 雅居乐滨江国际 135平 现代简约 】—— “等”最好的未来
【 帝豪花园 450平 现代简约 】—— 林·夕
【 德基世贸 333平+天正滨江 235平 美式 】—— 有温度的设计
【 绿城玫瑰园 880平 法式 】—— 有这样一种法式浪漫
·
END
·
客服
消息
收藏
下载
最近























