查看完整案例


收藏

下载
张嘉佳说:
“故事的开头总是这样,适逢其会,猝不及防”。与本案业主的初识,源于龙瑞装饰竣工客户的一句无意之语。朋友之间的暖心关怀,让我们有了和他们一起对新家进行畅想的契机,也促成了我们在某个冬日暖阳后的相谈甚欢。
本案设计师
▼
项目概况
项目地址:
金鼎湾
·
状元府
项目面积:
175㎡
项目户型:
四室二厅三卫
装修情况:
毛坯
家庭成员:
夫妻二人,独生子女和老人
业主需求:
1、三间独立的休息空间 2、餐厅选用圆形餐桌 3、尽可能多的储物空间 4、相对精致的装修风格。
*
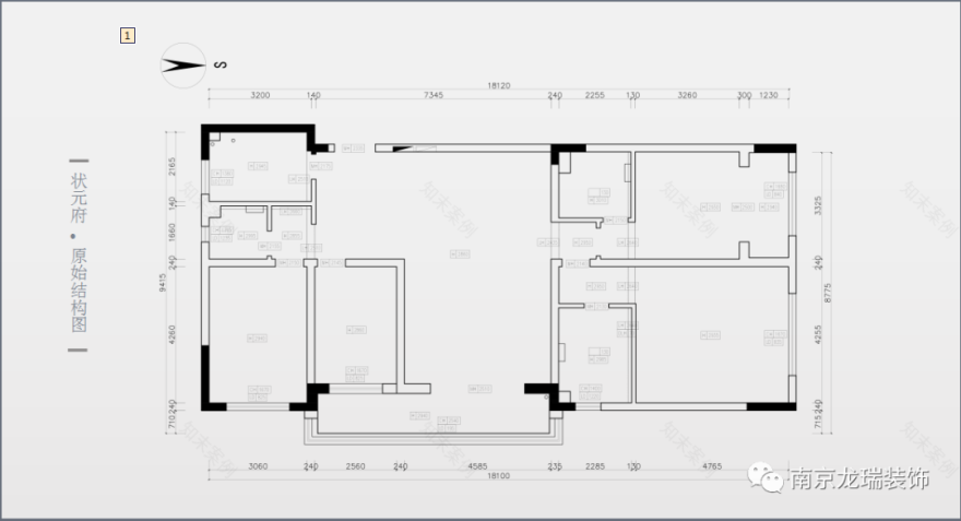
175户型原始结构图
*
☞
首先从
平面布置图
开始,它
是设计方案的第一步,也是最重要的一步,
要考虑得全面且合理
,让每一个空间都符合人性化设计
。
下面小编带您从以下几个方面,了解龙瑞设计师吕孝德,关于金鼎湾
·状元府175户型的一些设计想法。
1. 动线布局
一个方案
是否合理
要从总体分析,看整个方案的动线是否均匀
合理,
最好的动线是路径包围功能,
且符合人体的一些常规使用尺寸
。
2. 方案落地性
将原东北角厨房进门左边墙体向卫生间干区内退了
12公分,保证厨房放置冰箱后,橱柜台面侧边和冰箱门在一个平面上。考虑到立面的处理,厨房和卫生间的门套可采用对称处理。
客厅联通阳台
拆除
原书房的墙体
,
同时
将客厅区域延伸至
西
阳台,
原有的客厅空间即扩大成
50㎡左右的正方形区域
。
为了提高整体空间利用率,把
西
阳台一分为二,一部分连接客厅,
另一部分
作为洗衣晾晒区
,在满足业主晾晒功能的需求,也保证了客厅空间的整体性。
3. 采光性
在室内设计中
自然光
的引入,必不可少。基于
直接采光优于间接采光
的原则,设计师在设计过程中保留原有的采光区域,新增的隔断则尽可能地采用玻璃或透光材质的隔断处理
。
4. 空间风水
注重风水的家庭会关注方案中是否存在风水禁忌问题,特别是卫生间的位置与门开启的方向尤为重要。南次卧位于房屋的东南角即风水上所说的文昌位,把这个卧室定义为儿童房,再恰当不过了。
5. 空间布局
每一个空间根据使用功能的不同,需要进行不同程度的整合。
该私密就私密,该放开就
得
放开
。只有空间的各个属性明确,布局才能更相对合理。
6. 空间分配
每个独立空间在整个平面图中所分配的大小是否均匀
,也是设计中要考虑的重点。
比如不能出现厨房比餐厅大
,餐厅又比客厅大这种不合理的分配。
7. 家具布局
空间布局要合理,
家具
的
摆
放更要合理。
所谓合理就是大小和朝向是否合理
,
动线是否合理
。
摆家具也是一种艺术
,
同一个空间
,
家具的摆法不同
,彰显的气质也有所
不同
。
8. 空间的气质
空间气质的体现不仅仅在居住者身上,还与居住者的生活习惯和品味息息相关,要让存在即合理,合理即优越。
9. 整体
重新回到整体布局,看看空间内的家具样式、设计元素与设计风格是否连贯且整体。在同一个空间内平面布置与立面的呼应,立面与顶面的呼应,顶面与地面又是否有所呼应。
都说
“一千个人心中有一千个哈姆雷特”,每套房子都是独一无二的存在。
每个空间都应该具备
它
独有的气质,根据居住者的生活需求不同, 空间营造的氛围也就
各
不相同,这需要设计师去反复推敲和研究。设计师应当对每个设计
方案
都全力以赴
地去思考和创新
,
因为为业主营造一个家是件特别幸福的事儿
。我们的故事未完,待续......
*
诚邀十位业主·尊享私属定制
*
龙瑞装饰专门成立了【金鼎湾
▲
了解状元府更多装修信息
客服
消息
收藏
下载
最近
























