查看完整案例


收藏

下载
城市的紧张和忙碌构建了现代人的生活秩序,人们越来越渴望回归自然之境。理想家的打造,一定要与业主的精神气质相契合。本案受企业女高管委托,项目傲立湾区智核,毗邻都会缤纷生活圈。居所与山水联结,半隐于市,推窗可见塘朗山的绮丽风光,直面长岭陂水库的开阔湖景,举步即达生态休闲绿道,静享山湖连城环幕生态空间。
居室属于四室两厅三卫大户型奢享格局,居住、访客、家务三条动线简短清晰。设计以阔景规划理念打造客餐一体的流动空间,视线在空间里自由穿行。270°落地窗最大限度地让自然光线进入室内,让居住者随时拥有豁朗心境。
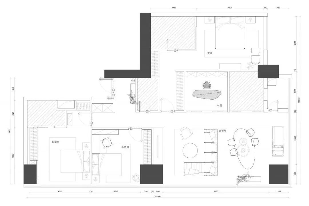
▲ 平面布置图
平和优雅、轻盈松弛,是人们对家最本质的精神渴求。在理想之城寻得一处栖息之地,生活的新诗篇由此展开。大道至简的廓形,从容的基底中透露着克制。玄关入境,灰色大理石和铜色镜面结合,冰冷材质的碰撞,营造理性的归家想象。
01
客厅
LIVING ROOM
▲ 客厅效果图
直线条的
墙体、木饰面、灰色纹路大理石三者以其简洁干练的块面关系,丰富着空间层次。米色L型布艺沙发搭配深灰色单人座椅,弧形茶几柔和了整体空间,打造一个明净通透的客厅。空间中人与人的交流随时发生,家人在此围坐,看四季变化,在温馨的生活空间里收获美好的记忆。
02
餐厅
DINING ROOM
▲ 客厅效果图
直线条的墙体、木饰面、灰色纹路大理石三者以其简洁干练的块面关系,丰富着空间层次。米色L型布艺沙发搭配深灰色单人座椅,弧形茶几柔和了整体空间,打造一个明净通透的客厅。空间中人与人的交流随时发生,家人在此围坐,看四季变化,在温馨的生活空间里收获美好的记忆。
03
主卧
MASTER BEDROOM
▲ 主卧效果图
一处美好的居所就像一幕精心排演的话剧,诉说着主人对生活的热爱以及对家人的关照。在这个精神与身体归属的空间里,呈现生活的本质。主卧以简约、雅致为基调,在L型布局的套房设计中嵌入步入式衣柜,有效利用空间。半围合式弧形床头,搭配白色蘑菇灯,点亮温柔的夜色,为主人的安眠营造一份静谧和安全感。
04
长辈房
ELDERLY BEDROOM
▲ 长辈房效果图
长辈房风格是一种富有情感且平静的极简主义,简洁的设计和柔和的色彩让空间格外宁静。墙面采用软包防撞的贴心设计,泡芙床饱满的线条,灵动简约的外观,打造云朵般的舒适感。脚感轻盈的米色地毯让空间多了一些温润的触感,让整个身心变得愉悦。
05
儿童房
CHILDREN S BEDROOM
▲ 儿童房效果图
儿童房将空间面积合理利用,根据使用者的身份设置为酷黑风格。
基于实用功效的考量,打造集衣柜、书柜、学习桌、悬浮柜等多元功能的一体式柜体,提供了充沛的收纳空间。多层次光源组合柔和了居室氛围,为孩子打造一方成长的天地,每天的起居都充满活力。
设计师链接不同居住者的需求,充分贴合实际使用的舒适度,通过中性色调与极简线条的呈现,为居住者打造一个有温度的家。
项目信息
项目名称 | 京基御景峯大平层
项目地点 | 深圳南山
项目面积 | 238㎡
软装机构 | 愉悦设计、高格软装
主案设计 | 谭 斌
固装单位 | 西克曼
项目文案 | 乐作企划
项目摄影 | 脚印
谭斌
东联设/联合创始人
愉悦设计/主理人
基于实用主义,以理性而系统的设计策略为空间统筹,由全局至细节,为使用者而设计。愉悦设计创始人谭斌深耕空间设计理论,综合用户体验、人居需求、功能细节等空间要素,佐以追求极简生活至上、侘寂艺术至上的生活美学态度,以此定义营造令人愉悦自在的居住空间。
客服
消息
收藏
下载
最近







































