查看完整案例


收藏

下载
CYAN-DESIGN
Location 项目地址:成都|蔚蓝.卡地亚
Project Design 主案设计:曹瑜 cyan
Effect of Rendering 效果呈现:CQ 制作 何宇轩
Customized Design 定制设计:Wilson
Detailed Design 深化设计:叶韬
Redact 文案编辑:曹瑜 cyan
Area 项目面积:383㎡
Design Agency 设计机构:上海胤尊
Project Time 设计时间:2021·12
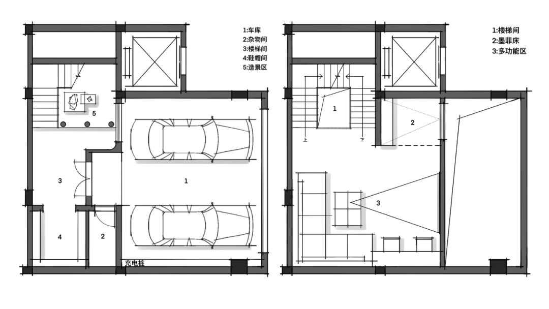
-1F STRUCTURECHART
-1FLAYOUTPLANS
GARAGE | 车库
车库是承载家居生活的重要板块,出行、游玩、储备、扩展,都是车库里的重要元素。所以理想的车库空间要满足工具收纳以及储物收纳,要有自己热爱的、热血的个性化的展示元素,要有全家出行游玩的装备室,同时也要与时俱进的预留充电设备。
Garage is an important plate carrying home life, travel, play, storage, expansion, are important elements of the garage. Therefore, the ideal garage space should meet the needs of tool storage and storage, personalized display elements with their own passion, equipment room for the whole family to travel and play, and also reserved charging equipment with The Times.
HALLWAY|玄关
入户设计内退的门厅,有效的解决了车子入库后与原本门位置紧贴的局促感,抬高的踏步也让入户的仪式感直接拉满。
Indoor design of the entrance hall, effectively solve the car into the storage and the original door position close to the sense of constraint, raised step also let the sense of ceremony directly pull full.RECREATION ROOM | 娱乐室
夹层打造家庭的娱乐空间,为居住者量身定制,闲暇时家人围聚看场温馨浪漫的电影,亦可和朋友组队"开黑"。
The mezzanine space creates a family entertainment space, which is customized for the residents. In spare time, families gather to watch a warm and romantic movie or play a game of "Play a game" with friends.
1F STRUCTURECHART
1FLAYOUTPLANS
GARDEN|花园
得天独厚的小区环境,使得整个庭院的自然气息可以纳入室内设计的一部分,让入户门和客厅转角整玻落地窗成为室内装饰的画框,庭院自然的景色为室内空间勾勒出一幅四季更替的背景墙。
Advantaged community environment makes the natural atmosphere of the whole courtyard into a part of the interior design, so that the entrance door and the corner of the living room whole glass Windows become the picture frame of interior decoration, the natural scenery of the courtyard outline a background wall of the four seasons for the interior space.
PORCH | 玄关
楼梯倒挂式拱形门洞的设计把入户的光“借”进夹层空间,弧形镂空隔墙的“柔”与楼梯结构线条的“硬”在房屋的 C 位承接而上。
The design of doorway of arch of stair hang type upside down enters the light of the door "borrow" interlayer space, of partition of arc hollow out "soft" and stair structure line "hard" undertake in the central position of the building and go up.
LIVING ROOM
|
客厅
休闲空间与庭院环境交换生活的气息,融汇贯通的把景色仿佛装进了家里,外景也似乎能够透过这一墙的玻璃窥探室内的温馨。
The leisure space and the courtyard environment exchange the breath of life, integrating the scenery into the home, and the exterior scene also seems to be able to peep the warmth of the interior through the glass of this wall.RESTAURANT|餐厅
餐厅旁的西厨操作台可以准备每日活力满满的早餐,充满饱腹感丰盛的午餐,以及可以煨汤的晚餐,周末若是与小朋友在此的烘焙活动也会变得趣味十足。
The western kitchen counter next to the restaurant prepares daily energetic breakfasts, filling lunches and soup-simmering dinners, and weekend baking activities with children can also be fun.
2F STRUCTURECHART
2FLAYOUTPLANS
MASTERROOM| 主人房
追剧的小爱好可以在自己的空间悠闲享受,与卧室追求放松的主题也能相得益彰。
The small hobby that pursues drama can be enjoyed leisurely in his space, the theme that relaxes with the bedroom pursuit also can bring out the best in each other.
CLOAKROOM| 主卧衣帽间
衣帽间的使用分区,以挂取为主来替换传统整理式的衣物收纳,保留隔间进行展示,就能更高效进行日常不同款式风格的搭配。
The use of the cloakroom partition should also be our focus to consider the plate, hanging to replace the finishing type of clothing storage, but also more efficient collocation to their own satisfaction with the style of daily travel.
TOILET| 卫生间
盥洗间梳理一整天的繁忙、尘土和劳累,洗护台面的扩展满足两人和谐的使用,墙排马桶方便打扫清洁,壁龛空间也可把洁物用品好好收纳。
The washroom is busy, dusty and tired for a whole day. The extension of the washing and protecting mesa satisfies the harmonious use of two people. The wall toilet is convenient for cleaning and cleaning.
DAUGHTERROOM|女儿房
女儿房的衣柜空间肯定是要为小公主思虑周全的,同时喜欢的手办盲盒也要有一席之地,采光充足的书写空间也能够让孩子的专注度也更强.
The wardrobe space of the daughter’s room must be thoughtful for the little princess, and the hand-made blind box should also have a place. The writing space with sufficient lighting can make the child’s concentration stronger.
SONROOM|儿子房
男孩房的空间留足活蹦乱跳的健身空间,预留的藏物壁龛也能让他随意发挥自己的想法。
The boy’s room is full of lively fitness space, and the reserved artifact niches allow him to express his ideas at will.
Customization
人与空间的动态关系,可以把日常生活勾勒成美好的电影场景.
The dynamic relationship between man and space can outline the daily life into a beautiful movie scene.
WeChaet:Jtncyc
ADD:四川省成都市锦江区德必川报易园
- END -
客服
消息
收藏
下载
最近



























































