查看完整案例


收藏

下载
C Y A N - D E S I G N
Location 项目地址 :
南充 | 万科.金润华府
Hardcover Designer 硬装设计 :曹瑜cyan
Soft Designer 软装设计: 邵楚乔
Photographer 拍摄: 普尤
Editor 编辑:邵楚乔
Home style 风格:现代简约
Area 项目面积 :128㎡
Project Time 项目时间 :2020 · 06
Design Methods 项目类型:
精装房.软装设计+局部硬装改造
- - - - - - - - - - - -
- - - - - - - - - - - -
「 关于屋主 」
屋主是90后大男孩 ,有着稳定的朝九晚五的工作,有好听的名字,笑起来很温暖.
和大部分这个年纪的男生一样,回到家后的他喜欢打游戏,喜欢看电影,喜欢做饭,不喜欢洗碗.
「 关于理想中的家 」
他希望从收纳上做到极致,整个空间看起来干净明朗 ,因为宅在家的时间很多,所以希望家是放松和享受的空间,不用太繁复的设计,追求简约的生活方式.
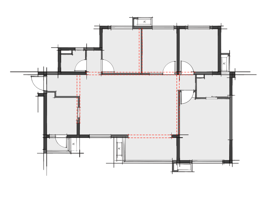
「 平面布置 」
化繁为简,在简化中创造空间的机能的层次变化是这套的改造重心.
因为大部分时间是独居,偶尔父母会小住,四个房间显得有些多余,所以我们将最小的两个房间打通作为了一个多功能室,集游戏区、观影区、客房及收纳为一体的房间,让原本鸡肋的房间变得出彩.过道的墙面开出一个条形窗 ,多功能房的景色透出来,犹如一幅框景,让内与外有了关联,空间有了对话.将阳台扩进客厅,尽量放大客厅的区域 ,透过若影的窗纱展现生活的面貌.
STRUCTURE CHART
LAYOUT PLANS
Because most of the time we live alone, occasionally our parents live in small houses, and the four rooms seem redundant. Therefore, we connect the smallest two rooms as a multi-functional room, which integrates the game area, the viewing area, the guest room and the storage into one room, which makes the original chicken rib room more colorful.
A strip window is opened on the wall of the corridor to connect the inside and the outside, and the space has a dialogue.
Expand the balcony into the living room to carry the connection of life with a space as open as possible. Every life moment can be explained here. If you live here, your words and deeds will be gentle unconsciously.
「 客餐厅 」
「 方寸之间,别有洞天.」
简约而不花哨,清冷而不失温度,浅浅淡淡的色调融化在阳光中,变得优雅随和温暖人心,本案以中性的豆沙绿为主色调,配上黑白以及原木色,相比于非黑即白的冷感空间,更多了一些清浅柔和,线条干净利落,结合了清爽与帅气的双重特质,也是符合了屋主的盐系气质.
Contracted but not fancy, cold and do not break temperature, shallow light color melted in the sunshine, the exquisite easy-going warm hearts, this case is given priority to with neutral red bean and green color, with black and white and the original wood color, in comparison with the cold feeling of black and white space, more some QingJian downy, line is clean, combines the dual qualities, relaxed and handsome is also in line with the owner of the salt is temperament.
「 主卧
」
「 多功能室
」
特此鸣谢: 赵涛 . 叶韬 . 赵卓义❤️
- END -
客服
消息
收藏
下载
最近




























